KT2 5JU - 3 bedroom detached house for sale in Bockhampton Road, King…

View on Property Piper

3 bedroom detached house for sale in Bockhampton Road, Kingston Upon Thames, KT2

Summary - 10 BOCKHAMPTON ROAD KINGSTON UPON THAMES KT2 5JU

3 bed 1 bath Detached

**Standout Features:**
- Detached Victorian home with period charm
- Three spacious double bedrooms
- Expansive open-plan kitchen/dining room
- Downstairs WC and utility room
- Generous 72ft secluded rear garden with outbuilding
- Huge potential for expansion (subject to necessary consent)
- Prime North Kingston location, moments from Richmond Park
- Chain-free sale

This beautifully presented Victorian home on Bockhampton Road blends character with modern living, perfect for families seeking both style and space. Offering approximately 1,300 square feet of living space, this home features an expansive open-plan kitchen/dining area that flows seamlessly onto a stunning south-facing garden, ideal for weekend gatherings and quiet afternoons. The bright and airy reception room, alongside three generous double bedrooms, makes it a comfortable haven for family life.

Located in a highly desirable area near Richmond Park, the home is well-connected to Kingston town center and excellent local schools rated 'Outstanding' and 'Good,' making it a perfect choice for families or professionals. Though there are no structural issues reported, potential buyers should be aware of the opportunity to enhance and extend the property further, securing future value. With its attractive blend of period style and modern conveniences, this delightful property won’t last long on the market—schedule your viewing today!

Property Details

Brochure Descriptions

Image Descriptions

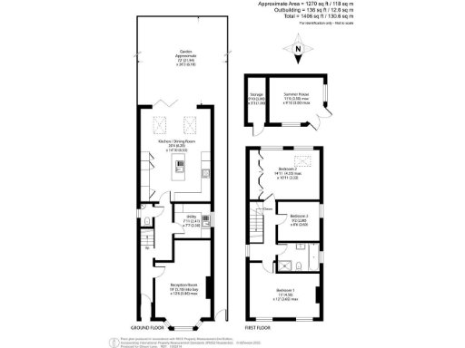
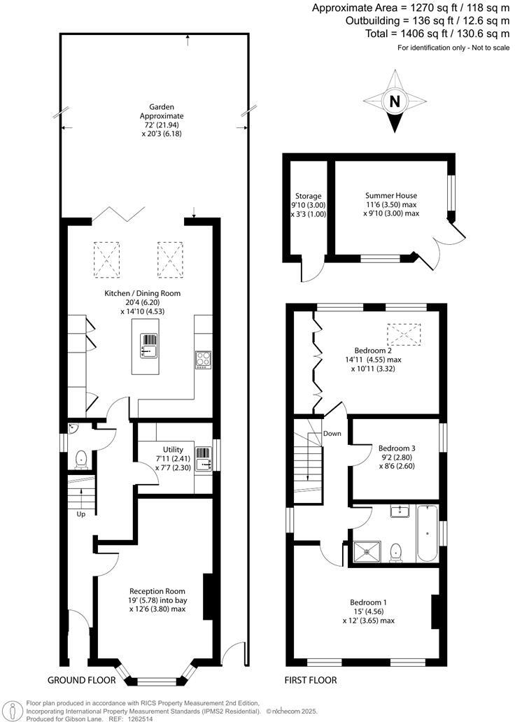
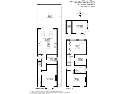
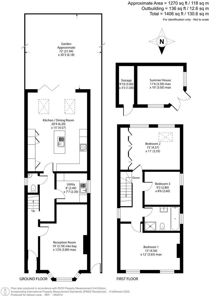
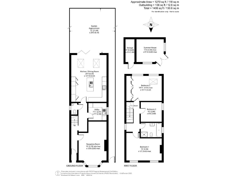
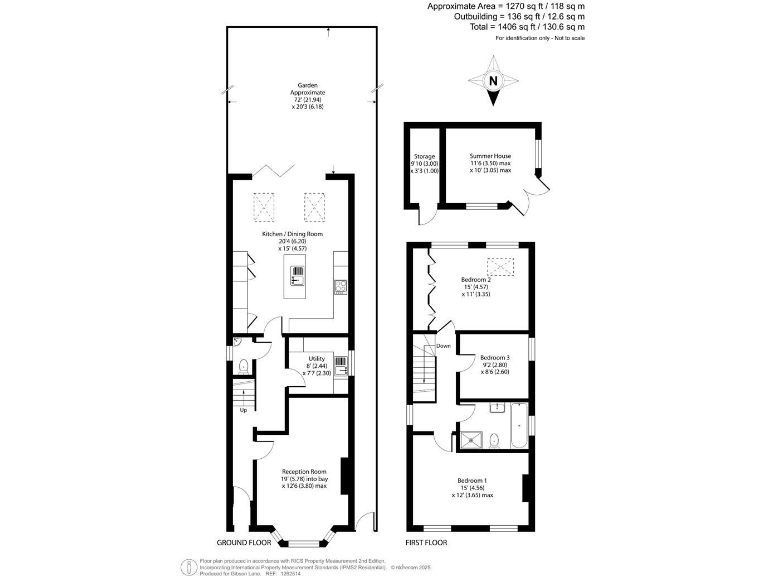
Floorplan Description

Rooms

Textual Property Features

Detected Visual Features

EPC Details

Nearby Schools

Nearest Bars And Restaurants

,,,,}

Nearest General Shops

,,}

Nearest Grocery shops

,,}

Nearest Supermarkets

,,}

Nearest Religious buildings

,,}

Nearest Medical buildings

,,,}

Nearest Airports

,,}

Nearest Leisure Facilities

,,,,}

Nearest Tourist attractions

,,}

Nearest Train stations

,,,,}

Nearest Bus stations and stops

,,,,}

Nearest Hotels

,,}

Tags

Local Market Stats

AirBnB Data

Similar Properties

Meta

High Res Images

Compatible Images

Low res Images

Thumbnails

Raw Images

High Res Floorplan Images

Compatible Floorplan Images

Low res Floorplan Images

FloorplanImages Thumbnail

Raw Floorplan Images