Fully renovated three-double-bedroom terraced house in Twynham catchment, minutes from Christchurch centre.
Three double bedrooms with ensuite to top-floor bedroom
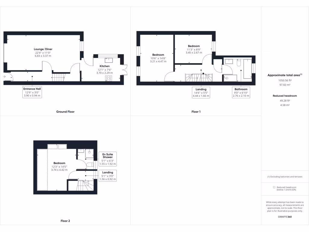
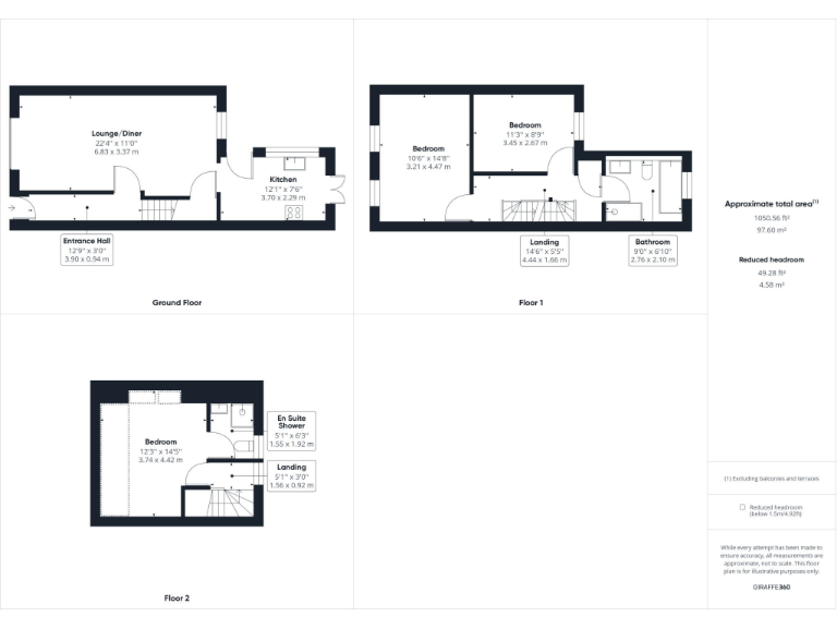
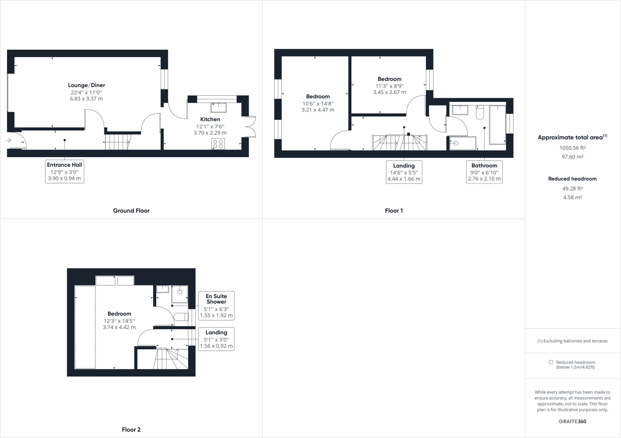
Beautifully presented three double-bedroom Victorian terraced house in central Christchurch, recently fully renovated and ready to move into. The ground-floor offers a bright, open-plan lounge/dining room and a modern fitted kitchen; two double bedrooms and a family bathroom occupy the first floor, with a third double bedroom and ensuite on the top floor. The property is freehold and benefits from double glazing, gas central heating and an efficient layout across approximately 1,051 sq ft.
Outdoor space is low-maintenance and well designed, featuring a small rear garden and a useful garden chalet suitable for storage or hobby use. Located in a quiet cul-de-sac about half a mile from Christchurch town centre, the house sits within the Twynham School catchment and is close to shops, cafes, transport links and the historic priory and quay. Broadband speeds and mobile signal are strong.
Notable negatives stated plainly: the plot is small and neighbours are close, reflecting its mid-terrace, town-centre setting. Local crime levels are reported as high for the immediate area, which may concern some buyers. While newly renovated throughout, the property’s period build and modest plot mean outdoor and parking space are limited compared with detached alternatives.
This home will suit buyers seeking a ready-to-live-in, characterful townhouse in a convenient Christchurch location — particularly families prioritising school catchment or investors seeking a well-presented rental property. The combination of modern refurbishment and period character gives immediate comfort with scope to personalise over time.
2 bedroom terraced house for sale in Stourbank Road, Christchurch, Dorset, BH23 — £350,000 • 2 bed • 1 bath • 805 ft²
3 bedroom terraced house for sale in Stour Road, Christchurch, Dorset, BH23 1JP, BH23 — £385,000 • 3 bed • 1 bath • 1141 ft²
3 bedroom semi-detached house for sale in Riverlea Road, Christchurch, Dorset, BH23 — £425,000 • 3 bed • 1 bath • 942 ft²
2 bedroom end of terrace house for sale in Christchurch , BH23 — £400,000 • 2 bed • 1 bath • 640 ft²
3 bedroom terraced house for sale in Christchurch, BH23 — £280,000 • 3 bed • 1 bath • 805 ft²
3 bedroom terraced house for sale in Hyde Mews, Christchurch, BH23 — £360,000 • 3 bed • 2 bath • 1023 ft²






















































