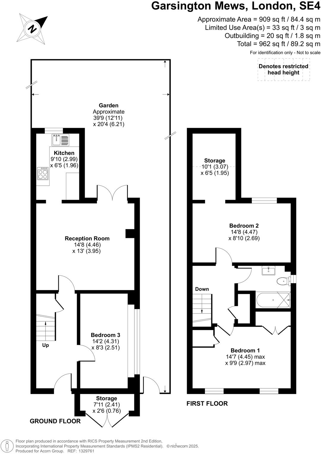
**Highlights of the Property:**
- **Three Bedrooms**: Including a convenient ground-floor option.
- **Well-Maintained Garden**: Perfect for relaxation or outdoor activities.
- **Excellent Location**: Just 0.4 miles from Brockley Overground Station, offering quick access to central London.
- **Size**: 909 sqft of internal living space.
- **Freehold Tenure**: Ownership without any lease concerns.
- **Chain-Free**: Smooth transition for buyers.
- **Parking**: Comes with a garage for added convenience.
- **Energy Efficiency**: Rated C, indicating reasonable operational costs.
Nestled in the peaceful Garsington Mews and located within the desirable Brockley Conservation Area, this semi-detached three-bedroom home masterfully combines charm with modern convenience. A spacious ground-floor bedroom offers versatile living options, whether as a guest room, home office, or playroom—ideal for families or professionals. The bright living room and well-equipped kitchen create an inviting atmosphere, while the two upper double bedrooms add comfort and space.
Transport links are exceptional, with Brockley Station just a short walk away, providing rapid access to central London’s vibrant lifestyle. Families will appreciate the proximity to several highly-rated schools, including outstanding primary and secondary options. However, potential homebuyers should note the local area's higher-than-average crime rate.
This property’s appeal lies not just in its beautiful layout and secure setting but also in its future potential. The well-kept garden presents opportunities for further landscaping or personal touches. With a guide price of £700,000 to £725,000 and the added advantage of being chain-free, this home invites discerning buyers to envision a lifestyle of comfort and exclusivity in a thriving community. Act quickly—this sought-after location won't stay on the market for long!
3 bedroom apartment for sale in Glensdale Road, London, SE4 — £750,000 • 3 bed • 1 bath • 970 ft²
3 bedroom apartment for sale in Glensdale Road, Brockley, London, SE4 — £775,000 • 3 bed • 2 bath • 1443 ft²
3 bedroom house for sale in Crofton Gate Way, London, SE4 — £600,000 • 3 bed • 2 bath • 1012 ft²
3 bedroom detached house for sale in Garsington Mews, London, SE4 — £1,950,000 • 3 bed • 2 bath • 1565 ft²
3 bedroom semi-detached house for sale in Upper Brockley Road, Upper Brockley Road, SE4 — £825,000 • 3 bed • 1 bath • 961 ft²
3 bedroom terraced house for sale in Harefield Mews, London, SE4 1LP, SE4 — £750,000 • 3 bed • 2 bath • 1326 ft²










































































