Four bedrooms, two ensuites and generous living in sought-after Kingfisher Meadows..
High-spec finish throughout, built 2021
Master suite plus second ensuite bedroom
Large kitchen/diner/family room and separate living room
Decent rear garden with driveway and integral garage
Within a mile of multiple Good-rated primary and secondary schools
Average overall size for price; practical rather than expansive
Council tax band above average — higher ongoing costs
No flood risk; excellent mobile signal and fast broadband
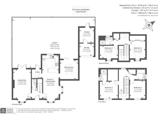
A well-presented four-bedroom detached house on the popular Kingfisher Meadows development, ideal for growing families who value space and contemporary styling. Built in 2021 and finished to a high specification, the house combines modern fixtures with practical living areas including a large kitchen/diner/family room and separate living room.
The accommodation includes a master suite plus a further ensuite bedroom, two additional bedrooms and family bathroom, arranged over three storeys to offer privacy and flexibility. Outside there is a decent-sized garden, driveway parking and an integral garage, useful for storage or secure parking.
Location is family-friendly: several good local primary and secondary schools are within a mile, with shops and amenities close by. Practical details to note — the property is average in overall size for its price bracket and council tax is above average, which should be factored into running costs.
This home will suit buyers seeking move-in-ready accommodation in a very affluent, well-served area. There is scope to personalise finishes if desired, but no major structural or flood risks are recorded.
4 bedroom link detached house for sale in Dark Lane, Witney, OX28 — £600,000 • 4 bed • 3 bath • 1624 ft²
4 bedroom detached house for sale in Witney, Oxfordshire, OX29 — £500,000 • 4 bed • 1 bath • 1242 ft²
4 bedroom detached house for sale in North Leigh, Witney, OX29 — £550,000 • 4 bed • 3 bath • 1294 ft²
4 bedroom detached house for sale in Townsend Road, WITNEY, OX29 — £495,000 • 4 bed • 3 bath • 1222 ft²
2 bedroom semi-detached house for sale in Kestrel Crescent, WITNEY, OX28 — £330,000 • 2 bed • 1 bath • 625 ft²
4 bedroom detached house for sale in Stanton Harcourt, Witney, OX29 — £750,000 • 4 bed • 3 bath • 1902 ft²










































