Large five-bedroom stone property with parking, yard and clear refurbishment potential..
- Five bedrooms arranged as two self-contained maisonettes (2-bed + 3-bed)
- Freehold tenure with off-street driveway parking and a decked yard
- uPVC double glazing and gas central heating throughout
- Scope to reinstate single family dwelling subject to planning consents
- Requires modernisation and updating; asking price reflects condition
- Likely system-built walls with no insulation (assumed) — energy improvements possible
- Area classified as very deprived; investor/cash buyers preferred
- No flooding risk; council tax band very cheap
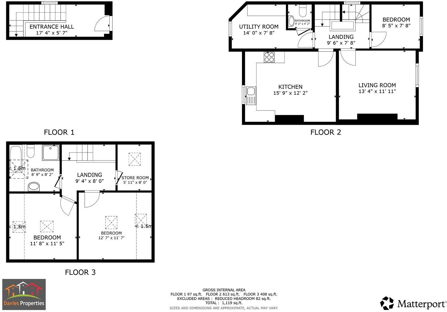
A substantial five-bedroom stone maisonette arranged as two self-contained flats (2-bed and 3-bed), offered freehold with off-street parking and a decked yard. Both units have uPVC double glazing and gas central heating; the present layout suits a landlord seeking immediate rental income or a buyer wanting scope to reinstate a single family home (subject to consents). The asking price reflects the need for modernisation across parts of the property, making it an economical purchase for a project or investment.
Accommodation is arranged over lower-ground to second floors, with two kitchens, two living rooms, four bathrooms and utility rooms, providing flexibility for letting, multi-generational occupation, or conversion back to a single dwelling. Room sizes are generally average to large for a terraced townhouse and the property benefits from a stone façade with bay window and good natural light in principal rooms. Practical extras include driveway parking and a rear yard with decked area.
Buyers should note material issues plainly: the building is dated (1950s–60s system-built walls assumed to lack insulation) and requires refurbishment throughout. Planning consent would be needed to alter the current two-flat arrangement. The location sits within a very deprived area classification, which may affect long-term resale values and tenant demand; cash or investor buyers are preferred. No flooding risk is recorded; council tax band is low, and broadband/mobile connectivity are good.
4 bedroom terraced house for sale in Hainworth Wood Road, Keighley, BD21 — £150,000 • 4 bed • 3 bath • 1032 ft²
3 bedroom end of terrace house for sale in Lauren Drive, Keighley, BD22 — £150,000 • 3 bed • 1 bath • 608 ft²
3 bedroom terraced house for sale in Lauren Drive, Keighley, BD22 — £150,000 • 3 bed • 1 bath • 607 ft²
2 bedroom town house for sale in Bracken Bank Grove, Keighley, BD22 — £120,000 • 2 bed • 1 bath • 583 ft²
3 bedroom end of terrace house for sale in Hainworth Wood Road, Keighley, West Yorkshire, BD21 — £150,000 • 3 bed • 2 bath • 1389 ft²
2 bedroom end of terrace house for sale in Victoria Road, Keighley, BD21 — £110,000 • 2 bed • 1 bath • 787 ft²














































































































