**Key Features:**
- 3 Double Bedrooms
- 3 Modern Bathrooms
- Generous Driveway Parking for Several Vehicles
- Spacious Rear Garden with Scenic Countryside Views
- Extensive Garaging
- Roof Terrace for Outdoor Enjoyment
- Solar Panels for Energy Efficiency
- Chain Free – Ready for Immediate Move-In
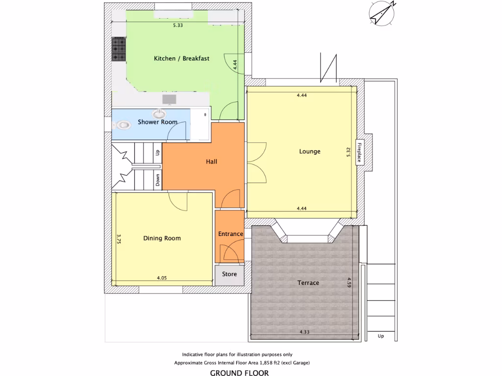
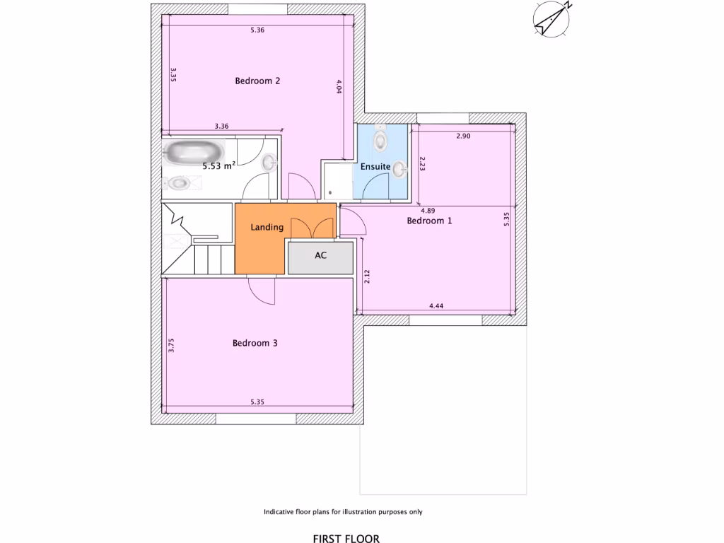
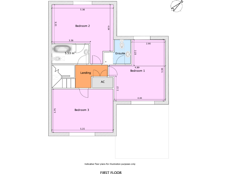
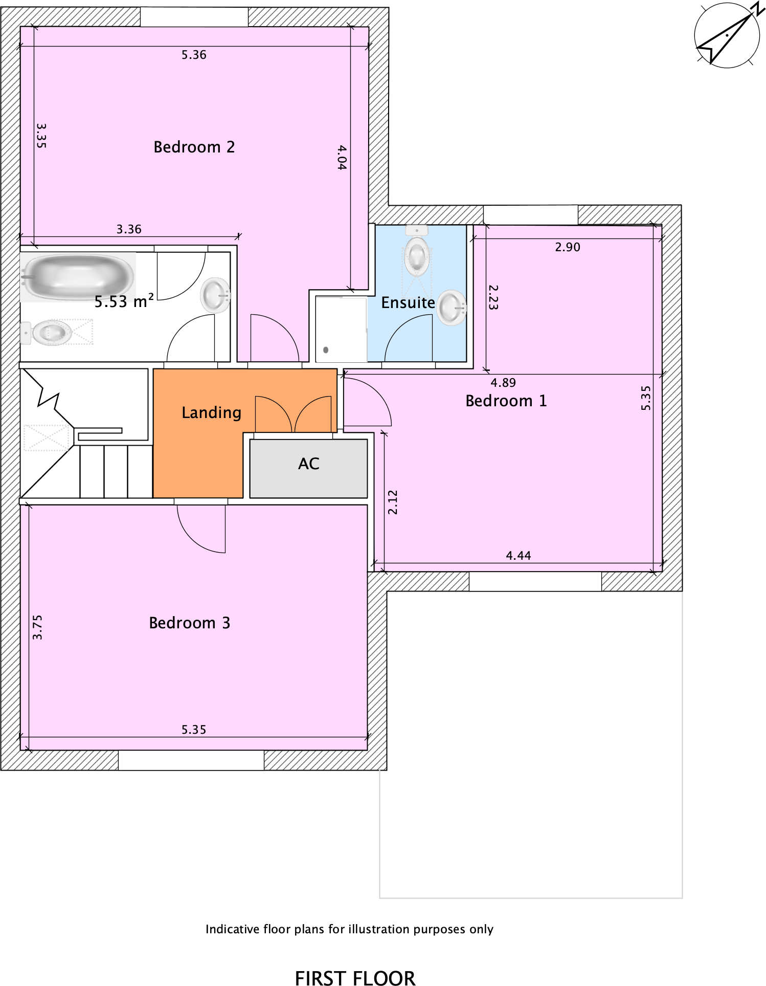
This impressive detached home, located on the edge of Stratford-upon-Avon, offers an exceptional opportunity to embrace countryside living without sacrificing modern conveniences. Boasting three spacious double bedrooms—each with ample natural light and equipped with three stylish bathrooms—the layout fosters comfort and privacy for families or individuals alike. Relax in the large lounge, featuring a charming wood-burning stove and easy access to a tranquil rear garden with expansive countryside vistas.
With extensive garaging and generous driveway parking, this property caters to families on the go and those with hobbies requiring storage solutions. The roof terrace provides an ideal venue for entertaining or simply enjoying the serene surroundings. The home's environmentally friendly solar panels enhance its value, offering energy savings while you bask in the beautiful outdoor spaces.
Situated in a peaceful yet accessible location, this property promises not only a cozy home but also immediate access to the cultural and recreational amenities of Stratford-upon-Avon. Don’t miss your chance to secure this attractive offering; opportunities like this in such a desirable area are rare and won’t last long!
4 bedroom detached house for sale in Luddington Road, Stratford-upon-Avon, Warwickshire, CV37 — £600,000 • 4 bed • 3 bath • 1418 ft²
3 bedroom detached house for sale in Balmoral Grove, Stratford-Upon-Avon, CV37 — £465,000 • 3 bed • 2 bath • 1464 ft²
4 bedroom detached house for sale in Worths Way, Stratford-Upon-Avon, Warwickshire, CV37 — £650,000 • 4 bed • 2 bath • 1621 ft²
6 bedroom detached house for sale in Hathaway Lane Stratford-upon-Avon, Warwickshire, CV37 9BL, CV37 — £1,000,000 • 6 bed • 4 bath • 3591 ft²
4 bedroom detached house for sale in Wetherby Way, Stratford-Upon-Avon, Warwickshire, CV37 — £625,000 • 4 bed • 2 bath • 1289 ft²
4 bedroom detached house for sale in Shipston Road, Stratford-Upon-Avon, CV37 — £1,295,000 • 4 bed • 3 bath • 3000 ft²


































































