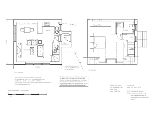
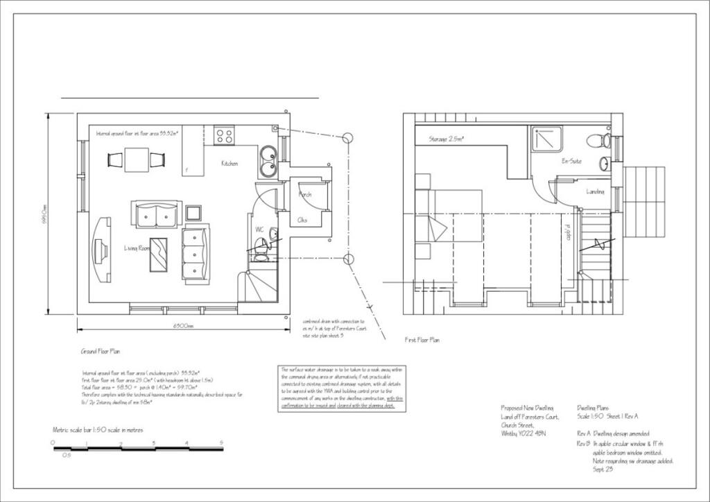
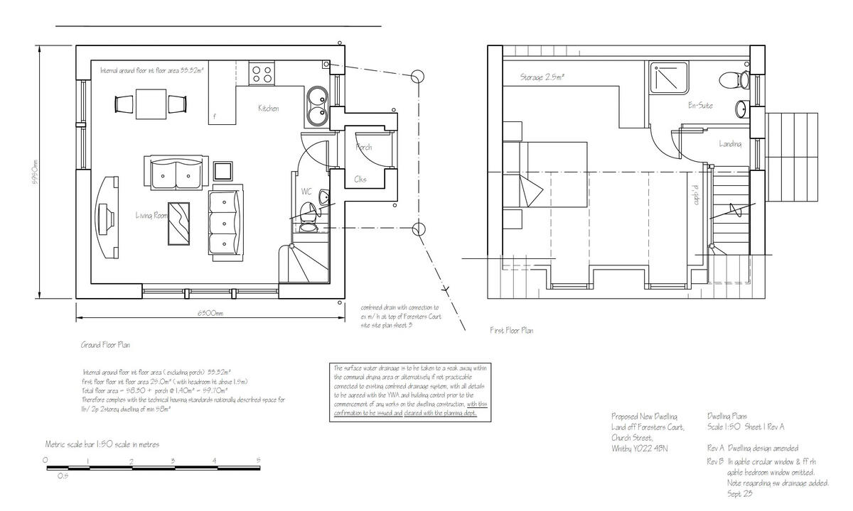
**Standout Features:**
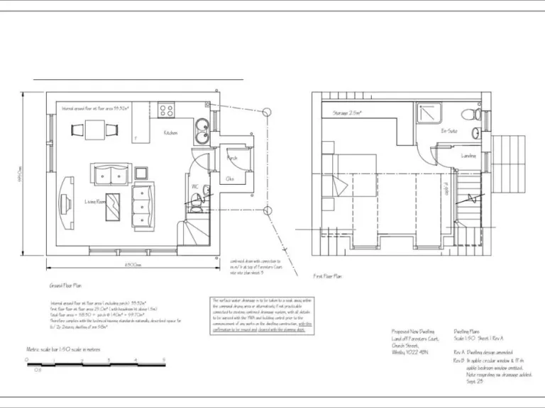
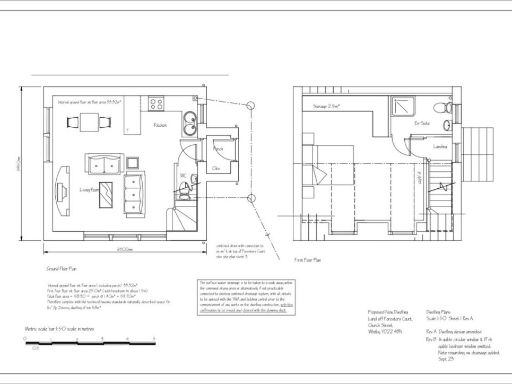
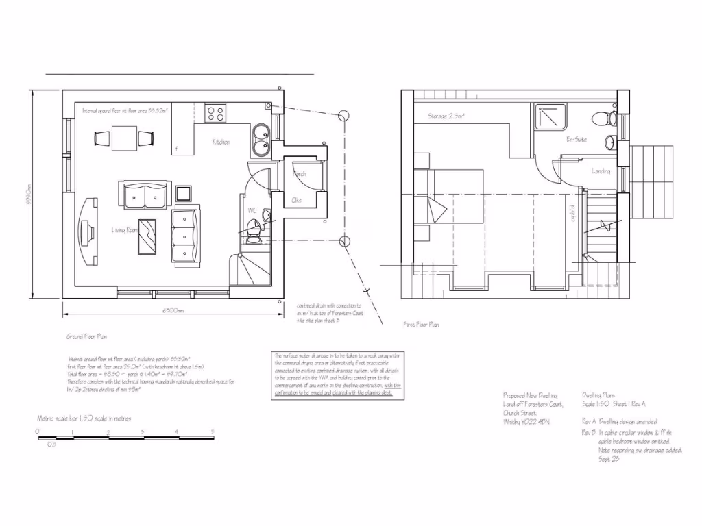
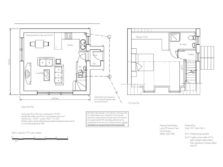
- Planning permission granted to build a one-bedroom stone-built detached home.
- Located in a historic yard with charming coastal views.
- Potential for modern efficiencies in a traditional design.
- Small plot size and average square footage (618 sq ft).
- Freehold tenure offers ownership flexibility.
**Potential Concerns:**
- High crime rate in the surrounding area.
- Location classified as a deprived neighbourhood.
- Broadband speeds rated as average.
Discover a rare opportunity to create your dream coastal retreat with approved planning permission for a one-bedroom stone-built detached home in a historic setting at Foresters Court, Church Street. This unique plot, with traditional cottage design potential, combines the character of a bygone era with the benefits of modern energy efficiencies. Perfect for singles or couples, the modest 618 sq ft design can be tailored to your style, giving you a cozy yet stylish living space in a picturesque, historic town.
While the location boasts charming coastal views and proximity to local amenities including schools and cafés, prospective buyers should note the area's high crime rate and average broadband speeds. This property’s character and potential make it a remarkable find, but with growing interest expected, don’t miss the chance to secure this exclusive opportunity before it’s gone!
3 bedroom semi-detached house for sale in Church Street, Whitby, North Yorkshire, YO22 — £379,000 • 3 bed • 2 bath • 905 ft²
2 bedroom terraced house for sale in Walker's Yard, Cliff Street, WHITBY, North Yorkshire, YO21 — £135,000 • 2 bed • 1 bath
1 bedroom terraced house for sale in Borough Place, Whitby, North Yorkshire, YO22 — £135,000 • 1 bed • 1 bath
3 bedroom terraced house for sale in White Horse Yard, Whitby, YO22 — £270,000 • 3 bed • 1 bath • 571 ft²
3 bedroom cottage for sale in The Old Jet Works, Brunswick Street, Whitby, North Yorkshire, YO21 — £235,000 • 3 bed • 1 bath • 891 ft²
3 bedroom cottage for sale in 1 Blackburns Yard, Church Street, Whitby, North Yorkshire, YO22 4DS, YO22 — £310,000 • 3 bed • 2 bath • 591 ft²






















