Chain-free three-bedroom home with large garden and garage in Great Sankey.
Three bedrooms with bay-fronted principal bedroom
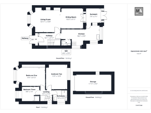
A well-presented three-bedroom semi-detached home in sought-after Great Sankey, offered with no onward chain and immediate availability. The house balances original 1930s character — including bay windows and a fireplace — with practical updates such as double glazing and modern gas central heating. Bright open-plan living to the rear and a sunroom provide flexible family space, while a detached garage and driveway supply convenient off-street parking.
The property sits on an average-sized plot with front and rear gardens suitable for children and outdoor entertaining. Internally there is a ground-floor WC, a long functional kitchen and three good-sized bedrooms upstairs served by a single family bathroom. Broadband is fast and mobile signal is excellent, supporting home working or streaming without issue.
Important practical points: the home is leasehold with around 935 years remaining and a small ground rent of £11 per year. Council tax is described as affordable and local crime levels are low. The area is family-oriented with strong schools, good transport links and nearby parks and retail amenities, making this a sensible purchase for buyers seeking a commuter-friendly suburban base.
Suitable for growing families or buyers seeking a comfortable, characterful house to modernise gradually. No major structural or flooding risks are reported, though buyers should note there is only one bathroom and any buyer seeking a fully modern layout may want to update or reconfigure parts of the interior in time.
3 bedroom semi-detached house for sale in Birchfield Road, Great Sankey, Warrington, WA5 — £235,000 • 3 bed • 1 bath • 1036 ft²
3 bedroom semi-detached house for sale in Park Road, Great Sankey, Warrington, WA5 — £225,000 • 3 bed • 1 bath • 827 ft²
3 bedroom semi-detached house for sale in Fordington Road, Great Sankey, Warrington, WA5 — £220,000 • 3 bed • 1 bath • 894 ft²
3 bedroom semi-detached house for sale in Maliston Road, Great Sankey, Warrington, Cheshire, WA5 — £230,000 • 3 bed • 1 bath • 913 ft²
3 bedroom semi-detached house for sale in Cronulla Drive, Great Sankey, Warrington, WA5 — £210,000 • 3 bed • 1 bath • 871 ft²
3 bedroom semi-detached house for sale in Hood Lane North, Great Sankey, Warrington, WA5 — £300,000 • 3 bed • 1 bath • 919 ft²










































































