Large garden and driveway with strong commuter links nearby.
Chain-free three-bedroom end-of-terrace with decent plot
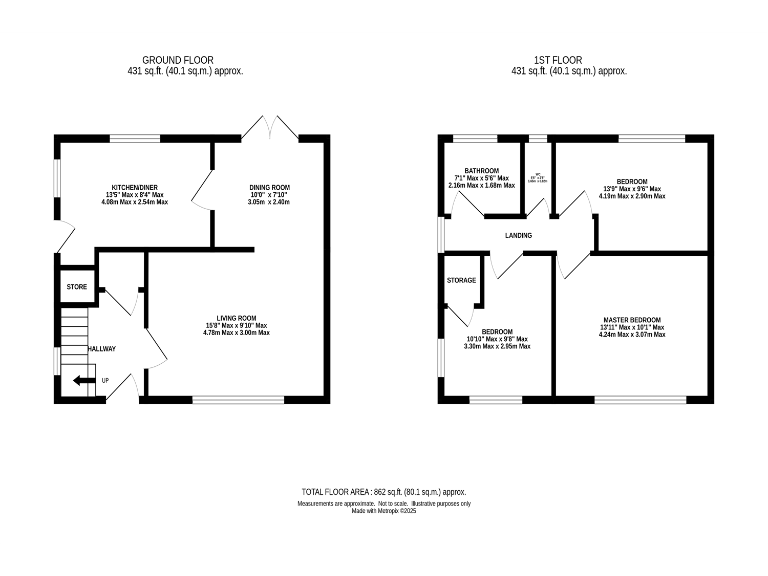
A three-bedroom end-of-terrace offered chain-free and ready for someone to modernise and personalise. The house sits on a decent plot with a good-sized rear garden and a paved driveway providing off-street parking. Interior space is well proportioned across two reception rooms and three bedrooms, with a dining room that opens to the garden via French doors.
The property requires full modernisation throughout — cosmetic and likely system updates will be needed — but benefits from double glazing installed post-2002, mains gas central heating and an average overall footprint of around 862 sq ft. Broadband speeds are fast and mobile signal is excellent, making the home suitable for remote working once upgraded.
Location is practical: close to Wythenshawe Hospital, nearby retail parks, and regular commuter links. Local schools include several rated Good, although the wider area shows higher deprivation indicators and some nearby schools require improvement. Council tax is very low, which helps running costs while works are carried out.
Important sale detail: an offer of £197,000 has been received; higher written offers may be considered before exchange. Buyers should budget for renovation costs and factor local area characteristics when assessing long-term value.
3 bedroom town house for sale in Northcote Avenue, Wythenshawe, M22 — £290,000 • 3 bed • 2 bath • 1056 ft²
3 bedroom end of terrace house for sale in Gladeside Road, Wythenshawe, M22 — £250,000 • 3 bed • 1 bath • 730 ft²
3 bedroom semi-detached house for sale in Thornby Walk, Neall Green, Manchester, M23 — £230,000 • 3 bed • 1 bath
3 bedroom terraced house for sale in Broadoak Road, Manchester, Greater Manchester, M22 — £200,000 • 3 bed • 1 bath • 797 ft²
3 bedroom semi-detached house for sale in Felton Avenue, Close To Civic Centre, Manchester, M22 — £230,000 • 3 bed • 1 bath • 760 ft²
3 bedroom terraced house for sale in Nearmaker Road, Wythenshawe, M22 — £220,000 • 3 bed • 1 bath • 728 ft²


































