Spacious city-centre property with strong conversion and rental potential.
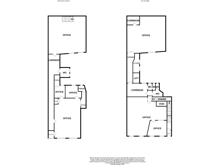
Freehold Victorian commercial building, two floors and ~17 rooms
A substantial Victorian commercial building on a busy Church Street parade, offered as a freehold with two floors of adaptable space. The property currently provides multiple office rooms, kitchens and WCs across ground and first floors, with about 17 rooms in total — a strong footprint for continued office use or for conversion into residential units (subject to consents).
The building presents clear investment potential: central Preston location, strong footfall on a busy parade, excellent mobile signal and fast broadband. The large, open-plan rooms and period brick façade give character and flexible layout options for office occupiers, mixed-use schemes, or apartment conversion plans.
Buyers should be aware of material downsides. The property needs refurbishment throughout and is described as a fixer-upper; upkeep and renovation costs are likely. The local area is classified as very deprived with very high crime rates, which may affect tenant mix, lettings and valuation. Plot size is small, limiting external expansion.
This is aimed at buyers who can manage refurbishment and the neighbourhood context — investors, developers or businesses seeking a sizable city-centre base. A viewing is essential to assess condition and to form budgeted plans for repair, refurbishment or conversion; any change of use would require planning approvals.
Restaurant for sale in Preston Road, Chorley, PR7 — £360,000 • 1 bed • 1 bath • 4166 ft²
Commercial development for sale in Trinity House, 88-96 Market Street West, Preston, Lancashire, PR1 — £750,000 • 1 bed • 1 bath • 9913 ft²
High street retail property for sale in Lune Street, Preston, PR1 — £175,000 • 1 bed • 1 bath • 1708 ft²
Commercial property for sale in 119-120 Friargate, Preston, Lancashire, PR1 — £375,000 • 1 bed • 1 bath • 3000 ft²
High street retail property for sale in 8 Lune Street, Preston, Lancashire, PR1 — £175,000 • 1 bed • 1 bath • 1981 ft²
Office for sale in 12 Lune Street, Preston, Lancashire, PR1 — £235,000 • 1 bed • 1 bath • 2002 ft²


































































































