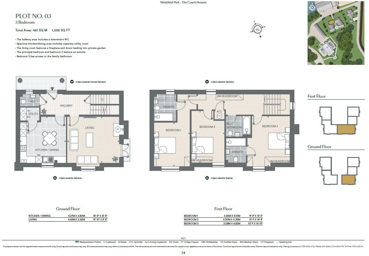
**Standout Features:**
- Last available coach house in a gated development
- Three double bedrooms with en suite bathrooms
- Elegant shaker-style kitchen with quartz worktops and Bosch appliances
- Spacious living area with fireplace and French doors leading to a private garden
- Finished to an impeccable standard, modern and traditional design blend
- Convenient location near Ascot, Windsor, Bracknell
- Low crime rate and excellent community amenities
**Concise Summary:**
Discover the final opportunity to own a beautifully crafted coach house at Winkfield Park, a prestigious gated community offering semi-rural tranquility. This impressive home features three spacious double bedrooms, each equipped with en suite bathrooms, and a meticulously designed shaker-style kitchen that flows into a bright living area accentuated by an elegant fireplace. Bathed in natural light, the inviting interiors boast quartz countertops and integrated Bosch appliances, creating the perfect backdrop for family life or entertaining guests.
Set within an idyllic courtyard, this residence is surrounded by stunning gardens and located moments from top-rated schools such as Lambrook School and Heathfield School. With the vibrant amenities of Ascot just 2.9 miles away and excellent transport links to London and beyond, this property balances serene living with convenience. However, potential buyers will want to act quickly—this is a unique offering in an affluent area that combines modern luxury with traditional charm, perfect for families or investors looking for outstanding rental potential. Embrace a lifestyle of comfort and exclusivity in your new home today!
3 bedroom terraced house for sale in Winkfield Manor, Forest Road, Winkfield Row, Ascot SL5., SL5 — £875,000 • 3 bed • 2 bath • 1504 ft²
3 bedroom terraced house for sale in Winkfield Manor, Forest Road, Ascot, Berkshire, SL5 — £875,000 • 3 bed • 2 bath • 1539 ft²
3 bedroom duplex for sale in Winkfield Park, Winkfield Row, Berkshire, RG42 — £1,450,000 • 3 bed • 3 bath • 2401 ft²
4 bedroom detached house for sale in Locks Ride, Ascot, SL5 — £1,250,000 • 4 bed • 2 bath • 2403 ft²
2 bedroom flat for sale in Winkfield Park, Winkfield Row, Berkshire, RG42 — £999,000 • 2 bed • 2 bath • 1535 ft²
2 bedroom penthouse for sale in Winkfield Park, Winkfield Row, Berkshire, RG42 — £999,000 • 2 bed • 2 bath • 1535 ft²


































































































