CM6 1ZG - 3 bedroom semidetached house for sale in Willow Road, Dunmo…

View on Property Piper

3 bedroom semi-detached house for sale in Willow Road, Dunmow, CM6

Summary - 16 WILLOW ROAD DUNMOW CM6 1ZG

3 bed 2 bath Semi-Detached

**Key Features:**
- **Type:** Semi-detached family home
- **Bedrooms:** 3
- **Bathrooms:** 2 including en-suite
- **Driveway Parking & Converted Garage** (partly for storage)
- **Garden:** Secluded rear, ideal for family relaxation
- **Location:** No onward chain, situated in the award-winning Woodlands Park development
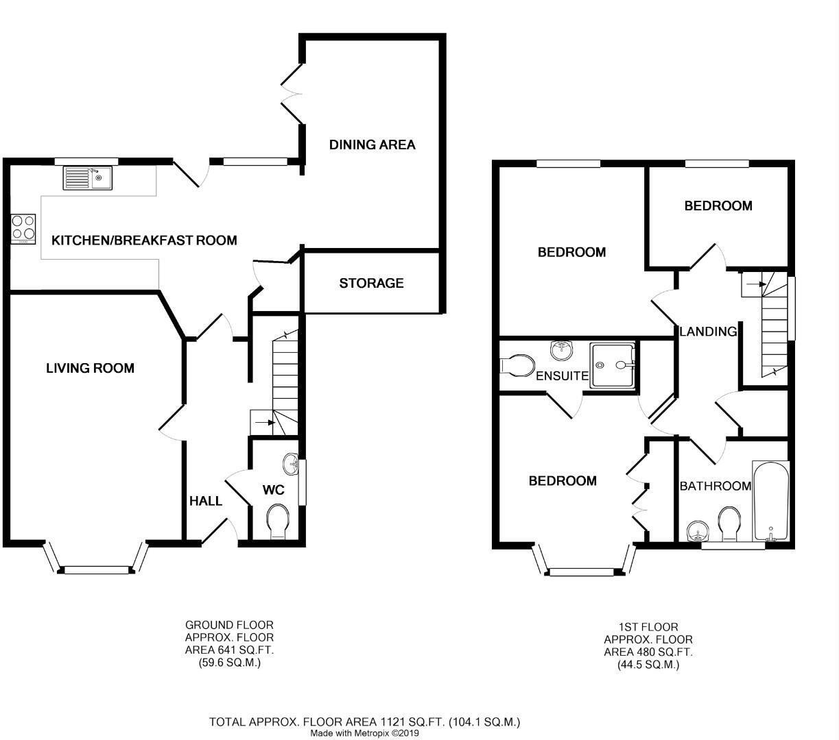
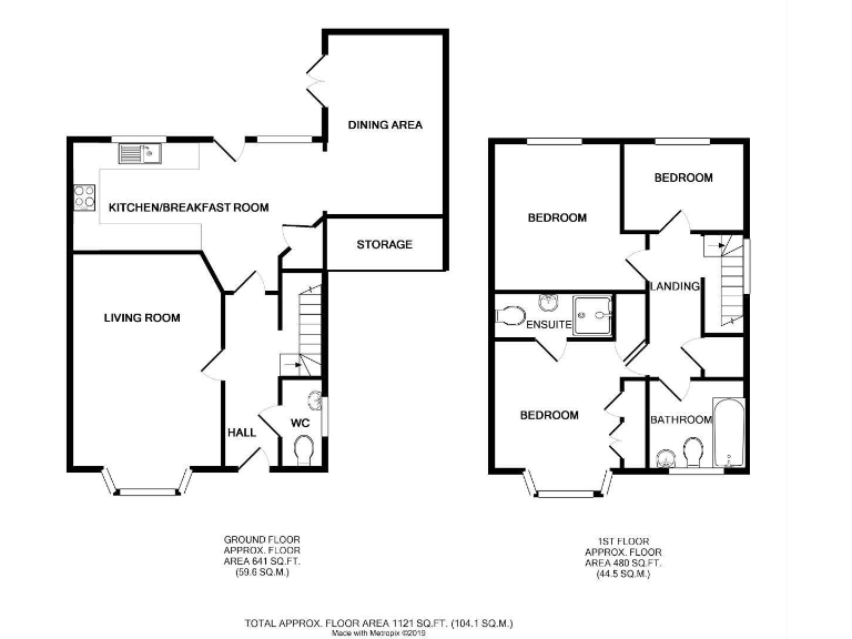
- **Size:** 1121 sqft, average-sized for suburban living
- **Potential:** Stone's throw from schools and amenities; average condition offers renovation possibilities

This lovely semi-detached family home is located in the sought-after Woodlands Park development in Great Dunmow, perfect for families seeking a vibrant community. The ground floor presents a bright and airy living room, modern kitchen/breakfast area, and a versatile playroom/dining room leading to a secluded garden surrounded by mature shrubs. Upstairs, residents will find three comfortable bedrooms; the principal with en-suite and a family bathroom that enhance its family appeal.

While this home is in average condition, it presents excellent potential for personalization and upgrades. With driveway parking and a partly converted garage, you have flexibility for use that suits your family's needs. Enjoy proximity to quality local schools, independent shops, and leisure activities, all in a picturesque market town atmosphere. This gem won’t last long—don’t miss your chance to create lasting memories here!

Property Details

Brochure Descriptions

Image Descriptions

Floorplan Description

Rooms

Textual Property Features

Detected Visual Features

Nearby Schools

Nearest Bars And Restaurants

,,,,}

Nearest General Shops

,,}

Nearest Grocery shops

,,}

Nearest Supermarkets

,,}

Nearest Religious buildings

,,}

Nearest Medical buildings

,,,}

Nearest Airports

}

Nearest Leisure Facilities

,,,,}

Nearest Tourist attractions

,,}

Nearest Train stations

,,,,}

Nearest Bus stations and stops

,,,,}

Nearest Hotels

,,}

Tags

Similar Properties

Meta

High Res Images

Compatible Images

Low res Images

Thumbnails

Raw Images

High Res Floorplan Images

Compatible Floorplan Images

Low res Floorplan Images

FloorplanImages Thumbnail

Raw Floorplan Images