BN27 1HG - 3 bed spacious detached bungalow in Hawthylands Crescent, B…

View on Property Piper

3 bedroom detached bungalow for sale in Hawthylands Crescent, Hailsham, BN27

Summary - 27 HAWTHYLANDS CRESCENT HAILSHAM BN27 1HG

3 bed 2 bath Detached Bungalow

Three-bedroom family home with private garden, outbuilding and plentiful parking.
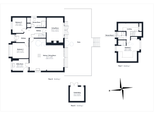
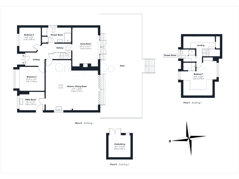
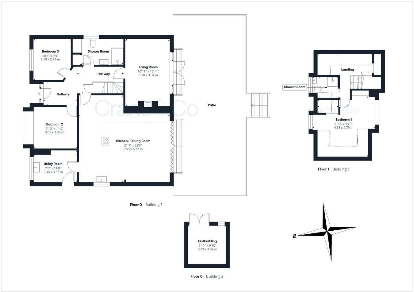
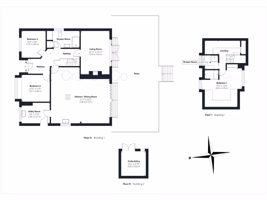
Contemporary open-plan kitchen with central island and separate utility
Principal bedroom on private upper floor with en suite shower room
Two ground-floor double bedrooms and modern shower room
Private, well-maintained garden with useful outbuilding (office/gym)
Large block-paved driveway offering ample off-street parking
Visible solar panels; mains gas boiler and radiators heating
Built 1950s–1960s — allow for era-appropriate maintenance
Area broadband speeds are slow; glazing install date unknown
This spacious three-bedroom detached bungalow on Hawthylands Crescent delivers flexible family living across a large, well-presented plot. A contemporary open-plan kitchen with central island and separate utility creates a practical hub for everyday life and entertaining, while a separate lounge looks out onto a private, low-maintenance garden. The property includes an outbuilding suitable for a home office, gym or workshop and a wide block-paved driveway providing ample off-street parking.

The principal bedroom occupies its own upper floor with an en suite shower room, offering a private retreat away from the ground-floor living and two double bedrooms. The home benefits from double glazing, mains gas central heating with boiler and radiators, and visible solar panels which may reduce running costs. Total floor area is approximately 1,290 sq ft on a large plot, set in an affluent, low-crime neighbourhood with good mobile signal.

Practical points to note: broadband speeds in the area are reported as slow, and the exact install date of the glazing is unknown. The house dates from the 1950s–1960s era, so buyers should allow for normal maintenance or modernisation where preferred. Local schooling includes two Good-rated primary schools nearby and a secondary option rated Inadequate, so check catchments if schools are a priority.

Overall this home suits families or couples wanting single-level living with extra privacy for the principal bedroom. It offers straightforward move-in condition with scope to personalise, plus useful outbuilding space for changing working patterns.

Property Details

Image Descriptions

Rooms

Textual Property Features

Target Audience

AI Tags

Detected Visual Features

EPC Details

Nearby Schools

Nearest Bars And Restaurants

,,,,}

Nearest General Shops

,,}

Nearest Grocery shops

,,}

Nearest Supermarkets

,,}

Nearest Religious buildings

,,}

Nearest Medical buildings

,,,}

Nearest Leisure Facilities

,,,,}

Nearest Tourist attractions

,,}

Nearest Train stations

,,,,}

Nearest Bus stations and stops

,,,,}

Nearest Hotels

,,}

Tags

Local Market Stats

AirBnB Data

Similar Properties

Meta

High Res Images

Compatible Images

Low res Images

Thumbnails

Raw Images

High Res Floorplan Images

Compatible Floorplan Images

Low res Floorplan Images

FloorplanImages Thumbnail

Raw Floorplan Images