**Standout Features:**
- Deceptively spacious mid-terraced property
- Two double bedrooms and a large family bathroom
- Modern fitted kitchen and utility room
- Cozy sitting room with a log burner
- Convenient on-street parking
- Enclosed low-maintenance rear courtyard garden
- Prime location near Wrexham city center and A483 for transport links
- Freehold tenure with renovation potential
**Concerns:**
- Average-sized living area may limit larger family needs
- High crime rate in the area
- Property may require some updates or maintenance due to age
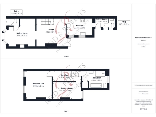
This charming Edwardian-style terraced home is perfect for first-time buyers or small families seeking comfort and convenience. With two generous double bedrooms and a spacious four-piece family bathroom, this property boasts an inviting layout ideal for modern living. The ground floor features a cozy sitting room with a log burner, a generous lounge with French doors leading to the rear courtyard, a stylishly modern kitchen, a practical utility space, and a convenient WC. The enclosed back garden offers a peaceful retreat with low maintenance needs.
Located within walking distance to Wrexham city center, you'll enjoy easy access to local amenities and transport links along the A483, making commutes effortless. The typical terraced design promises character, but also presents an opportunity for personal touches or updates. While the crime rate is noted as high, the property provides a sense of community and potential security for its residents. Don't miss out on the chance to secure this versatile home that combines functionality, charm, and future potential—schedule your viewing today!
2 bedroom terraced house for sale in School Street, Rhosllanerchrugog, Wrexham, LL14 — £115,000 • 2 bed • 1 bath • 636 ft²
2 bedroom terraced house for sale in Bryn Ucha, New Rhosrobin, Rhosrobin, LL11 — £142,000 • 2 bed • 1 bath • 915 ft²
2 bedroom terraced house for sale in Bernard Road, Wrexham, LL13 — £145,000 • 2 bed • 1 bath
2 bedroom terraced house for sale in Colliery Road, Wrexham, LL11 — £150,000 • 2 bed • 1 bath • 796 ft²
2 bedroom terraced house for sale in Windsor Road, New Broughton, Wrexham, LL11 — £155,000 • 2 bed • 1 bath • 817 ft²
3 bedroom terraced house for sale in Copperas Hill, Pen-Y-Cae, LL14 — £225,000 • 3 bed • 1 bath • 1594 ft²










































































































