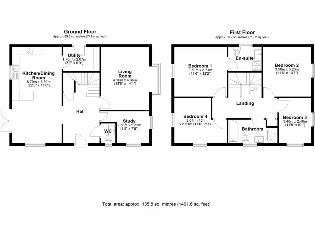
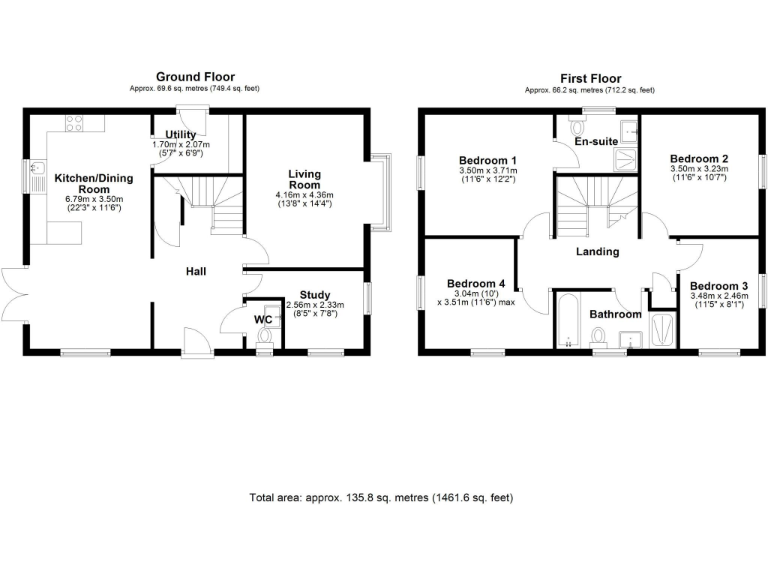
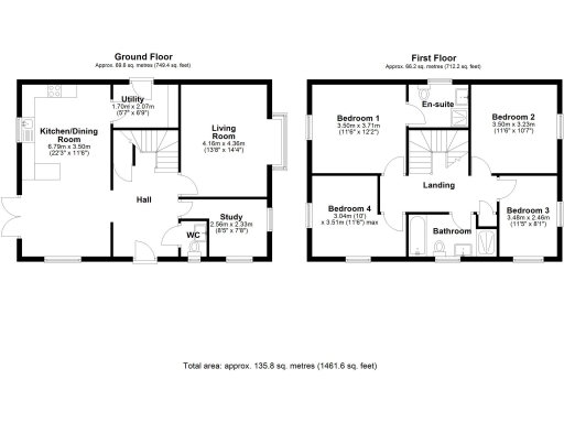
**Key Features:**
- Four spacious bedrooms, including a master with en suite shower
- Modern kitchen/dining room with integrated appliances and utility space
- Detached garage plus off-street parking for two cars
- Well-maintained rear garden with porcelain-tiled patio area
- Smart heating and high-quality CCTV security system included
- EPC Rating B for energy efficiency
- Built in 2022, ensuring a contemporary design
- Located in a quiet residential area with excellent transport links
- Close to good-rated schools and local amenities
Discover the perfect family home in this beautifully presented four-bedroom detached house, thoughtfully designed for modern living and comfort. Spacious and filled with natural light, the open-plan kitchen/dining room features integrated appliances and flows seamlessly into a welcoming living space—ideal for both family gatherings and entertaining guests. The dedicated home office provides a peaceful retreat for working from home.
Upstairs, enjoy four well-proportioned bedrooms that accommodate double beds, complemented by a sleek family bathroom with both a shower and bath. Outside, the private garden boasts stylish outdoor spaces, and the detached garage offers additional storage or workshop potential. Plus, with energy-efficient features and desirable smart home technologies, this property is not only stylish but also practical.
Located in a tranquil neighborhood just a stone's throw from Chester-le-Street Town Centre and excellent schools, this property is ideal for families or professionals seeking a balance between convenience and a serene lifestyle. With a reasonable ask of £340,000, this home will not linger on the market long—seize the opportunity to make it your own!







































































































