**Standout Features:**
- Large building plot of approximately 900sqm
- Full planning permission for a stunning detached house of around 200sqm (Reference No. 18/01355/FLL)
- Picturesque rural views with excellent access to motorway networks
- Energy-efficient design with solar panels and air source heat pump
- Thoughtfully designed layout to maximize views and site topography
**Summary:**
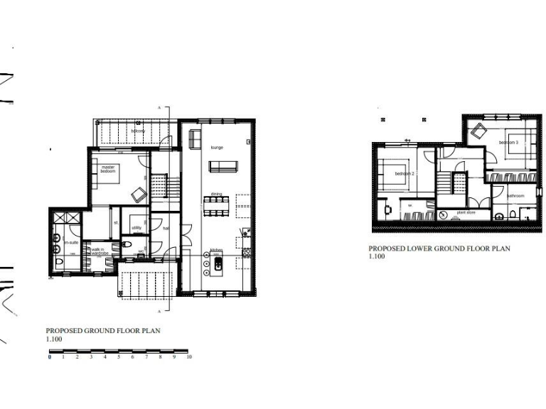
Discover an exceptional opportunity to create your dream home on this expansive 900sqm building plot in the serene village of Powmill. With full planning permission for a spacious 3-bedroom detached house, designed to seamlessly blend with its stunning countryside backdrop, you'll enjoy both comfort and tranquility. This future residence features a traditional design with a vaulted living area, handcrafted oak beams, and energy-efficient amenities, including solar panels and an air-source heat pump.
Situated in a sought-after residential location, this plot offers easy access to major motorways, making commuting a breeze while retaining the charm of rural life. Enjoy peaceful views over lush fields and rolling hills, perfect for family recreation and outdoor living. While the area may face slow broadband speeds, the charm, community feel, and beautiful landscapes far outweigh this minor drawback. Properties like this don’t stay on the market for long—don’t miss your chance to build a bespoke home in one of the region's most desirable locales!
Land for sale in Mill House Plot, The Water Mill, Crook of Devon KY13 OUL, KY13 — £190,000 • 1 bed • 1 bath • 2432 ft²
Land for sale in Plot 1, Land Adjacent to Powmill Cottage, Kinross-shire, Rumbling Bridge, KY13 — £160,000 • 1 bed • 1 bath
Land for sale in Land at the Meadow, 50m South West Of Tigh Na Greinne, Glendevon FK14 7JY, FK14 — £150,000 • 1 bed • 1 bath • 4305 ft²
Land for sale in Land South of 1 Parklands Place, Forestmill FK10 3QG, FK10 — £145,000 • 1 bed • 1 bath • 10890 ft²
Land for sale in Plot 2, Land Adjacent to Powmill Cottage, Kinross-shire, Rumbling Bridge, KY13 — £160,000 • 1 bed • 1 bath
Plot for sale in Plot12, Braehead Farm, Rumbling Bridge, KY13 — £95,000 • 1 bed • 1 bath










































































