- Chain free sale with all furniture included
- Two private off-street parking spaces to rear driveway
- Low-maintenance, fully enclosed rear garden
- Two reception rooms plus separate laundry room
- EPC rating E; may affect running costs and mortgage options
- Above-average local crime rate; check local safety measures
- Small plot and single bathroom may limit larger family use
- Victorian façade needs cosmetic modernization
Set close to Stafford mainline station and M6 links, this Victorian three-bedroom terrace is offered chain free and comes fully furnished — a straightforward move for a first-time buyer or investor looking for immediate occupation or let-ready accommodation. The house has two reception rooms, a modern fitted kitchen with a separate laundry room, and off-street parking for two vehicles via a rear driveway.
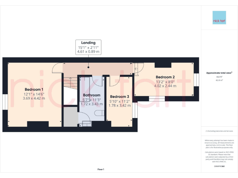
Internally the rooms are well proportioned across approximately 951 sq ft. The first floor has two double bedrooms and a single bedroom, plus a recently refitted bathroom. Ground-floor updates include new flooring; upstairs carpets are already in place. The rear garden is small and low-maintenance, enclosed and practical for children or pets.
Notable drawbacks are an EPC rating of E and an above-average local crime rate — factors to weigh for buyers and landlords. The façade and some decorative elements reflect the property’s Victorian origins and will need modernization if a fully updated finish is required. There is a single bathroom and limited plot size, which may feel tight for larger families.
Overall this freehold terrace suits a first-time buyer wanting a ready-to-live-in home with minimal outdoor upkeep, a landlord seeking a commuter rental near good transport links, or anyone wanting a lock-up-and-leave base close to town amenities. Viewing is recommended to assess layout and update potential in person.



























































