Commuter-friendly home with parking and long lease.
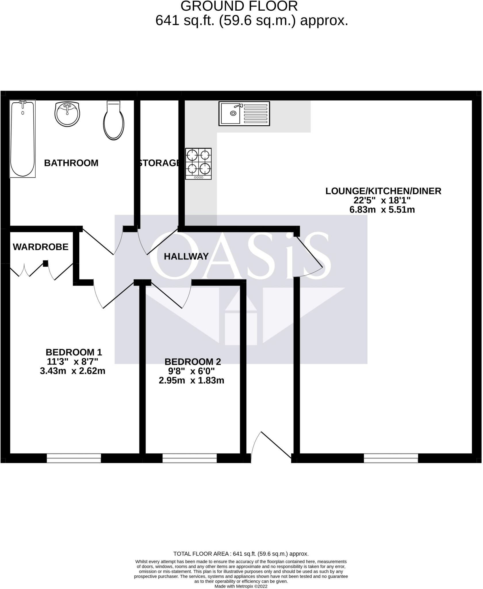
Ground-floor two-bedroom maisonette with private front garden
A bright ground-floor maisonette with two bedrooms and a practical open-plan kitchen/living area, located in the Phoenix Plaza development close to Chertsey High Street and the mainline station. The property includes an allocated parking space and a private front garden, giving useful outdoor space for a ground-floor apartment.
This home suits first-time buyers seeking a commuter base: travel into London is straightforward from nearby Chertsey station, and local shops, cafes and schools are within easy reach. The long lease (over 220 years) reduces the usual leasehold concerns and the current rental estimate of £1,500 pcm suggests solid letting potential or a buffer if circumstances change.
Buyers should note the running costs and local issues. Service charge is around £242 per month (c. £2,904 pa) plus small annual maintenance fees (£250 for the apartment; £100 for the parking space). Heating is by electric room heaters, so factor in energy costs. There is a medium flooding risk and the area records above-average crime rates and relative deprivation; these are important for insurance, security and resale considerations.
Overall this is a well-presented, low-stair, commuter-friendly apartment with long lease security and private outdoor space. It offers good short-term practicality and rental upside, but buyers should budget for service charges, electric heating costs and local area considerations before proceeding.
2 bedroom apartment for sale in Charles House, Chertsey, Surrey, KT16 — £260,000 • 2 bed • 2 bath • 700 ft²
1 bedroom apartment for sale in Charles House, Chertsey, Surrey, KT16 — £215,000 • 1 bed • 1 bath • 510 ft²
2 bedroom flat for sale in Chertsey, Surrey, KT16 — £270,000 • 2 bed • 2 bath • 656 ft²
1 bedroom maisonette for sale in Chertsey, Surrey, KT16 — £229,950 • 1 bed • 1 bath • 426 ft²
2 bedroom flat for sale in Hanworth Lane, Chertsey, KT16 — £325,000 • 2 bed • 1 bath • 622 ft²
1 bedroom maisonette for sale in Guildford Road, Chertsey, Surrey, KT16 — £249,900 • 1 bed • 1 bath • 450 ft²


































































































