GU14 9EA - 3 bedroom semidetached house for sale in Northcote Road, Fa…

View on Property Piper

3 bedroom semi-detached house for sale in Northcote Road, Farnborough, Hampshire, GU14

Summary - 9 NORTHCOTE ROAD GU14 9EA

3 bed 1 bath Semi-Detached

**Standout Features:**
- Extended semi-detached family home
- Three spacious bedrooms with built-in storage
- South-facing mature rear garden with patio area
- Quiet cul-de-sac location, ideal for families
- Driveway parking and attached garage
- Close to local schools, parks, and amenities
- No onward chain—move in hassle-free
- Potential for extension (subject to planning approval)

This charming, three-bedroom semi-detached home offers the perfect blend of comfort and convenience in a family-friendly setting. Nestled in a serene cul-de-sac in Farnborough, the property features a well-maintained facade and an inviting driveway leading to an attached garage, providing ample off-street parking. Inside, you'll discover a spacious layout showcasing two light-filled reception rooms that seamlessly connect to a beautifully landscaped, south-facing garden, ideal for outdoor entertaining or simply unwinding.

The functional kitchen comes equipped with generous worktop and storage space, complemented by a convenient utility room and a downstairs cloakroom. Upstairs, the accommodations include two generously-sized double bedrooms and a larger-than-average single, ensuring ample space for family living. With its desirable location within walking distance of local schools—including several rated ‘Good’ by Ofsted—and community amenities, this home is well-suited for young families. Benefit from the allure of no onward chain, making your move as smooth as possible, and envision the future possibilities for extensions to truly make it your own. Don’t miss the chance to secure this well-loved family residence!

Property Details

Brochure Descriptions

Image Descriptions

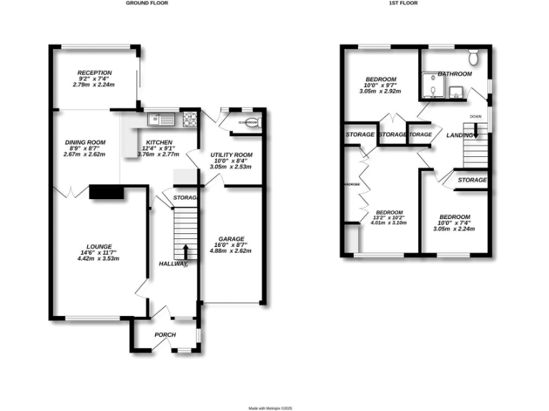
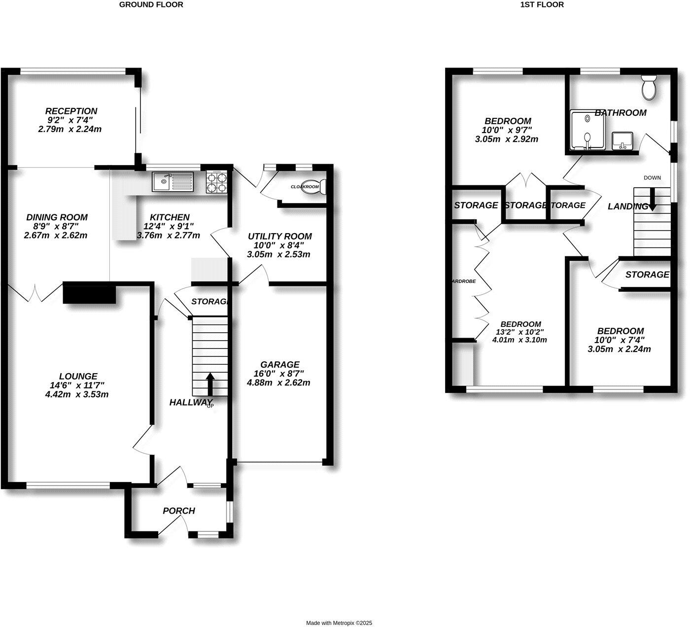
Floorplan Description

Rooms

Textual Property Features

Detected Visual Features

EPC Details

Nearby Schools

Nearest Bars And Restaurants

,,,,}

Nearest General Shops

,,}

Nearest Grocery shops

,,}

Nearest Supermarkets

,,}

Nearest Religious buildings

,,}

Nearest Medical buildings

,,,}

Nearest Airports

}

Nearest Leisure Facilities

,,,,}

Nearest Tourist attractions

,,}

Nearest Train stations

,,,,}

Nearest Bus stations and stops

,,,,}

Nearest Hotels

,,}

Tags

Local Market Stats

Meta

High Res Images

Compatible Images

Low res Images

Thumbnails

Raw Images

High Res Floorplan Images

Compatible Floorplan Images

Low res Floorplan Images

FloorplanImages Thumbnail

Raw Floorplan Images