**Standout Features:**
- **Price:** Guide Price £70,000
- **Type:** Leasehold 1-bedroom first-floor flat in period conversion
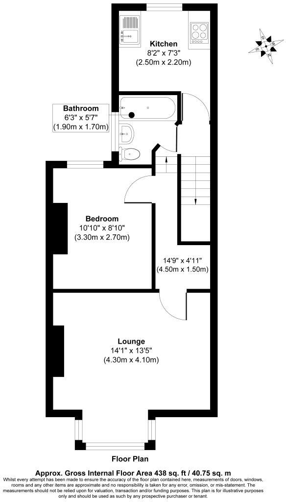
- **Size:** Total floor area of 438 sq. ft (40.75 sq.m)
- **Location:** Close to Newhaven town center and train station
- **Council Tax:** Band A, very affordable
- **Ground Rent:** Low at £25 p.a.
**Potential Concerns:**
- **Lease:** Approximately 59 years remaining may limit mortgage options
- **Condition:** Requires modernization; currently neglected and dated
- **Crime Rate:** Above average in the area
This Edwardian-style 1-bedroom flat offers an excellent opportunity for first-time buyers or investors looking for a project. With a guide price of just £70,000, it presents significant renovation potential in an area that boasts convenient access to amenities and trains to Brighton. Comprised of a lounge, bedroom, bathroom, and kitchen, the layout maximizes space, though some work is needed to bring the property up to modern standards.
Nestled near schools rated "Good" and "Outstanding," it’s also in proximity to local shops and healthcare facilities, making it ideal for families or those needing easy access to daily conveniences. Note that the flat has a short lease of 59 years, which may pose challenges for securing a mortgage but presents an opportunity for cash buyers or renovators willing to invest in extending the lease.
**Don’t miss the auction date: Thursday, April 24, 2025**. This property won't last long!
2 bedroom apartment for sale in Dorita Court, 7 South Coast Road, Peacehaven, East Sussex, BN10 8JU, BN10 — £99,000 • 2 bed • 1 bath • 512 ft²
Studio apartment for sale in Flat 2, 7 Balcombe Road, Peacehaven, East Sussex, BN10 7QF, BN10 — £60,000 • 1 bed • 1 bath • 331 ft²
1 bedroom apartment for sale in Ground Floor Flat, 4 West View, Seaford, East Sussex, BN25 1JR, BN25 — £80,000 • 1 bed • 1 bath • 549 ft²
1 bedroom apartment for sale in Flat 1, 87 Lorna Road, Hove, BN3 3EL, BN3 — £100,000 • 1 bed • 1 bath • 611 ft²
1 bedroom apartment for sale in 67A Milner Road, Brighton, BN2 4BR, BN2 — £140,000 • 1 bed • 1 bath • 484 ft²
1 bedroom apartment for sale in Flat 2, 82 Denmark Villas, Hove, BN3 3TJ, BN3 — £200,000 • 1 bed • 1 bath • 560 ft²






































