Long-term let in converted warehouse with immediate income and rental upside.
Long-term tenant in situ; steady rental income £11,100 pa currently
Projected market rent potential £13,800 pa (upside available)
200-year lease — long lease term reduces immediate lease risk
Converted warehouse character: high ceilings, exposed brick, strong appeal
Communal parking only; no private allocated parking space
Buyers Premium payable on purchase — additional buyer cost
Area classed as deprived — consider longer-term capital growth risk
Occupied property not suitable for immediate owner-occupation without notice
This one-bedroom apartment sits in a converted warehouse on Chapeltown Street, offering immediate rental income and easy access to city amenities. The building's industrial character — high ceilings and exposed brick — gives the apartment strong tenant appeal in this cosmopolitan student neighbourhood. The flat is let long-term and currently produces an annual gross income of £11,100, with projected market rent up to £13,800.
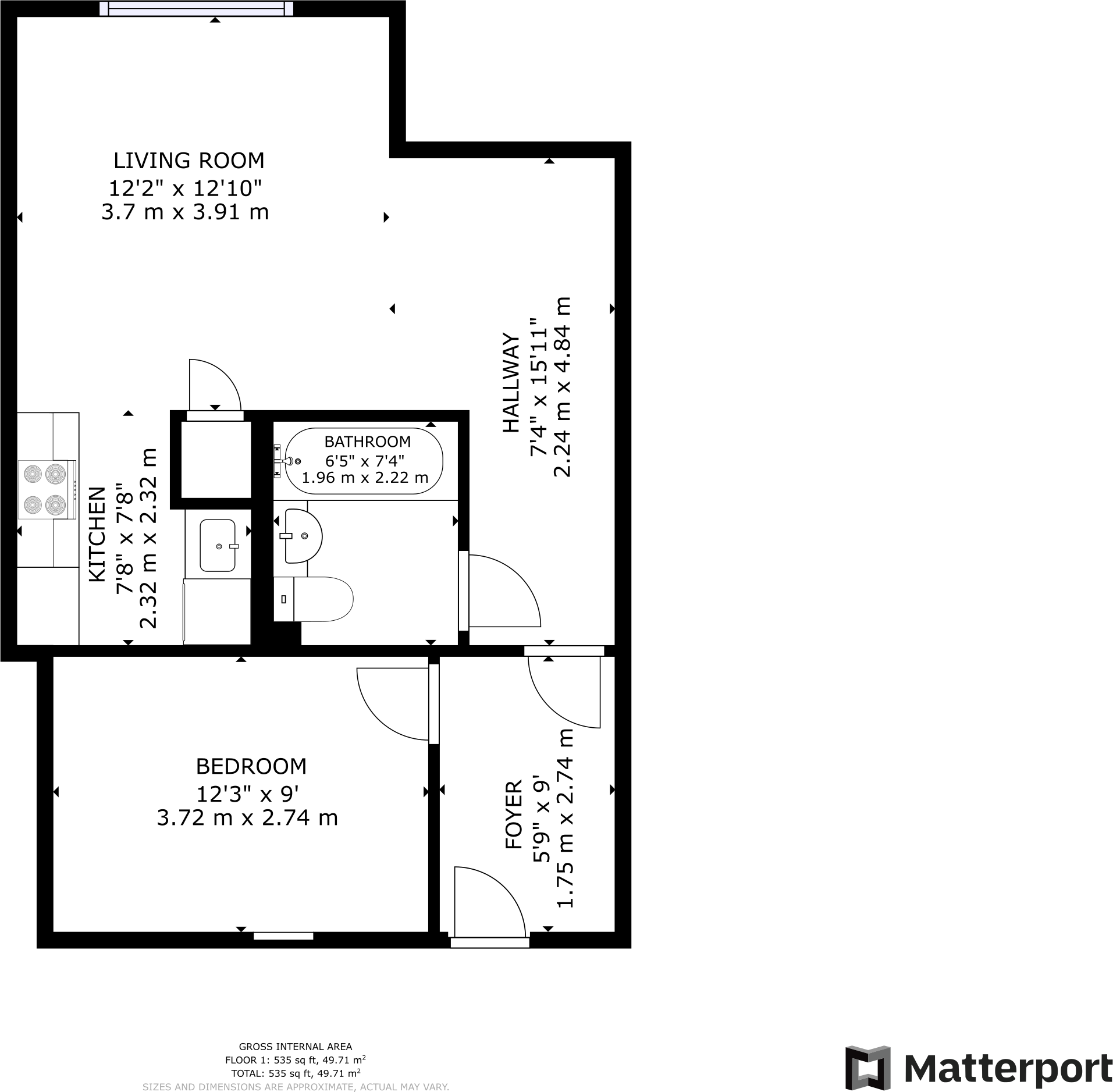
The accommodation is in good condition with a spacious lounge, open-plan kitchen area and ensuite bathroom across 527 sq ft. The property benefits from a 200-year lease and communal parking; broadband and mobile signals are strong and crime levels are very low in the area. Local facilities including shops, restaurants, transport links and education options are within walking distance.
Important points for buyers: this is a leasehold property with a Buyers Premium payable on purchase, and it is occupied by long-standing tenants who do not intend to vacate. That makes the lot best suited to investors seeking an income-producing asset rather than owner-occupiers wanting immediate vacant possession. The surrounding area registers as deprived, which is relevant for longer-term capital growth expectations.
For an investor willing to manage an occupied unit, the flat offers a straightforward addition to a portfolio with near-term rental upside and low immediate maintenance needs. Buyers should review the Let Property Pack and tenancy documentation to confirm rent, tenant status and any service charges or restrictions before bidding.
1 bedroom flat for sale in John William Street, Manchester, M30 — £120,000 • 1 bed • 1 bath • 441 ft²
1 bedroom flat for sale in Oxford Road, Manchester, Greater Manchester, M1 — £130,000 • 1 bed • 1 bath • 530 ft²
1 bedroom flat for sale in Lord Street, Manchester, M4 — £165,000 • 1 bed • 1 bath • 535 ft²
2 bedroom apartment for sale in Lancaster House Whitworth Street, Manchester, M1 — £130,000 • 2 bed • 1 bath • 762 ft²
2 bedroom flat for sale in Joiner Street, Manchester, M4 — £120,000 • 2 bed • 1 bath • 656 ft²
1 bedroom flat for sale in High Street, Manchester, M4 — £132,000 • 1 bed • 2 bath • 506 ft²


















































