Single-level living with parking and garden in a sought-after location.
Chain free detached bungalow in quiet Eaton cul-de-sac
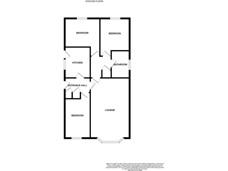
Three bedrooms, single bathroom — practical single-storey layout
Large driveway providing multiple parking spaces and single garage
Double glazing and gas central heating already installed
Approx 737 sq ft — modest internal space for three bedrooms
1970s kitchen requires modernisation or replacement
Cavity walls assumed uninsulated — consider insulation works
Freehold, Council Tax Band D; very low local crime
This detached three-bedroom bungalow in Eaton offers single-storey living in a quiet cul-de-sac, ideal for buyers seeking convenient, low-maintenance accommodation. The property is chain-free and sits on a decent plot with an enclosed rear garden, large driveway and single garage — practical for downsizers or small families who value parking and outdoor privacy.
The interior is straightforward and liveable: a spacious lounge, three bedrooms and a bathroom are served by gas central heating and double glazing. The layout is traditional and accessible, making daily life and any future adaptations easy to plan. Local amenities, good schools and quick access to the A47/A11 make this a well-connected suburb of Norwich.
The bungalow does need some modernisation. The kitchen is a dated 1970s style and would benefit from replacement or refurbishment, and the cavity walls are assumed to be uninsulated which may affect running costs and comfort. The property’s modest overall size (approximately 737 sq ft) and single bathroom are practical but limit scope for significant extension without planning.
Offered freehold with no onward chain, this home suits buyers who want immediate occupation with potential to update over time. For someone seeking single-level living in an affluent, very-low-crime area with good broadband and excellent mobile signal, this property represents a sensible purchase with clear scope to add value through sympathetic improvements.
3 bedroom detached bungalow for sale in Buckland Rise, Norwich, NR4 — £310,000 • 3 bed • 1 bath • 693 ft²
2 bedroom bungalow for sale in Amderley Drive, Eaton, Norwich, Norfolk, NR4 — £270,000 • 2 bed • 1 bath • 800 ft²
3 bedroom detached bungalow for sale in Beatty Road, Eaton Rise, NR4 — £400,000 • 3 bed • 1 bath • 675 ft²
3 bedroom detached bungalow for sale in Broadhurst Road, Norwich, NR4 — £450,000 • 3 bed • 2 bath • 1185 ft²
3 bedroom bungalow for sale in Parsons Mead, Eaton, Norwich, Norfolk, NR4 — £375,000 • 3 bed • 1 bath • 948 ft²
3 bedroom detached bungalow for sale in Pegg Close, Easton, NR9 — £290,000 • 3 bed • 2 bath • 1000 ft²










































