Spacious family plot with rare garden outbuilding and parking.
- Traditional 1930s semi-detached with bay windows
- Large, landscaped rear garden with decking and shed
- Detached man cave/bar with lighting and power
- Block-paved driveway for two cars, gated side access
- UPVC double glazing and gas central heating
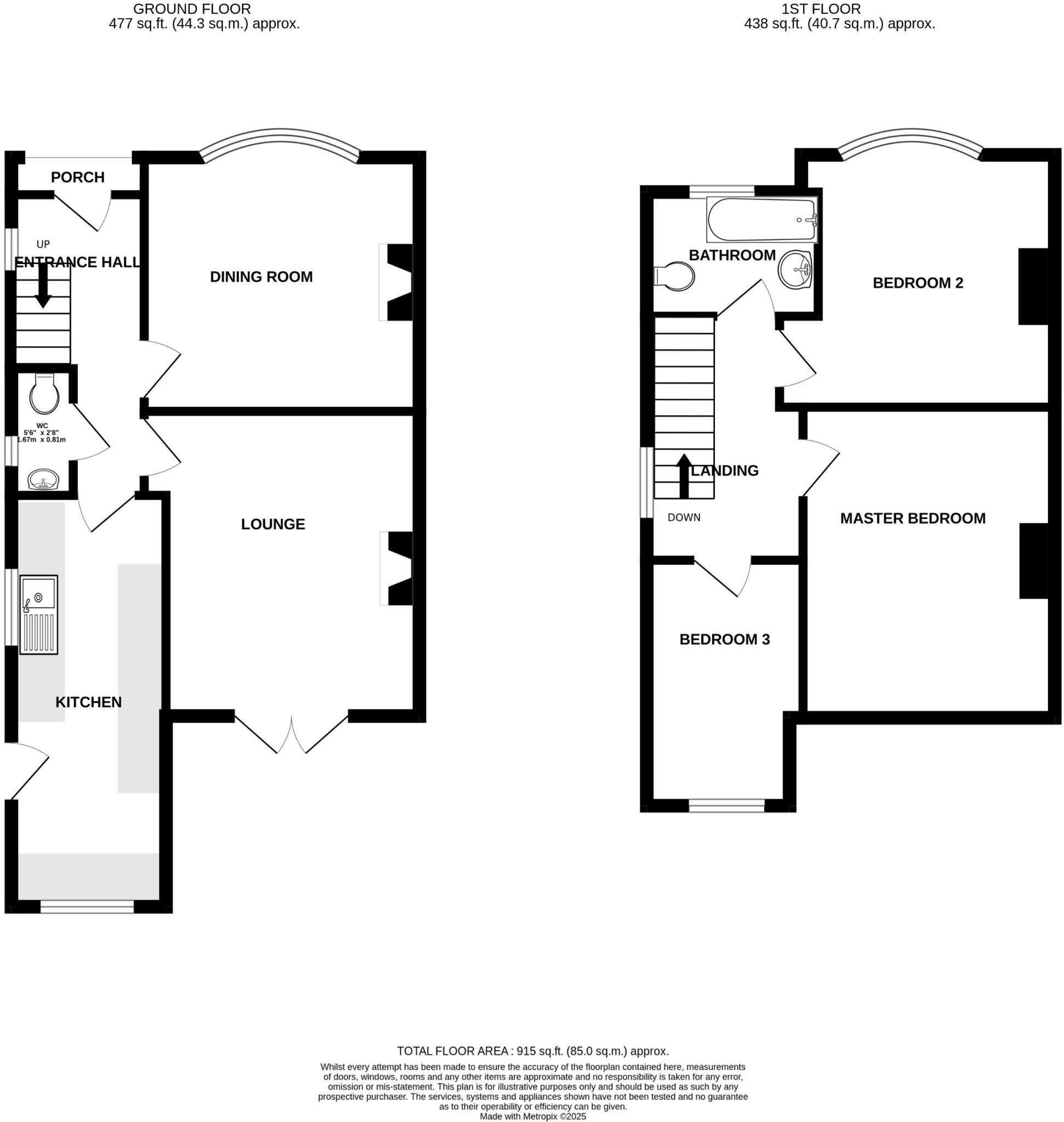
- Single family bathroom only for three bedrooms
- EPC rating D, some energy improvements advisable
- Local area records higher crime levels; consider security
This well-proportioned 1930s semi-detached home sits on a large plot in a popular Midway address, offering immediate vacant possession and flexible accommodation for family living. Two reception rooms and a bay-front sitting room give bright, traditional living space while a good-sized fitted kitchen leads to a mature, landscaped rear garden ideal for children and outdoor entertaining.
A detached, fully powered man cave/bar at the bottom of the garden is a rare addition — perfect as a home office, hobby room or social space. Practical features include UPVC double glazing, gas central heating and a block-paved driveway providing off-street parking for two vehicles. The property is freehold and presented in good order, ready for occupation or modest updating to increase value.
Notable points to consider: there is a single bathroom for three bedrooms, and the property currently has an EPC rating of D. The local area records higher-than-average crime levels, which buyers should weigh alongside the strong transport and local-amenity links in Midway and Swadlincote. Overall this home suits a growing family or buyer seeking a period property with a large garden and conversion potential.
3 bedroom semi-detached house for sale in Burton Road, Midway, DE11 — £215,000 • 3 bed • 1 bath • 1346 ft²
3 bedroom detached house for sale in Springfield Road, Midway, DE11 — £250,000 • 3 bed • 1 bath • 1104 ft²
3 bedroom semi-detached house for sale in Rowan Drive, Midway, DE11 — £196,000 • 3 bed • 1 bath • 807 ft²
3 bedroom detached house for sale in Springwood Farm Road, Midway, Swadlincote, DE11 — £245,000 • 3 bed • 2 bath • 722 ft²
3 bedroom detached house for sale in Kensington Road, Winshill, DE15 — £250,000 • 3 bed • 1 bath • 1301 ft²
3 bedroom detached house for sale in Burton Road, Midway, Swadlincote, DE11 — £325,000 • 3 bed • 1 bath • 1174 ft²










































































