Compact city home with period charm and modern kitchen, close to transport and schools.
Chain-free three-bedroom mid-terrace, ideal for first-time buyers or investors
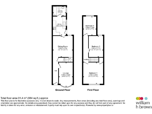
A compact three-bedroom mid-terrace in central Peterborough, offered chain-free and ready for a new owner to move in or let out. The house combines period character — high ceilings, a bay-front reception and original brickwork — with a recently updated kitchen and double glazing fitted after 2002.
Rooms are efficiently arranged across approximately 779 sq ft with two reception rooms and a small rear garden. The property is freehold and sits on a high-street run with excellent mobile signal, fast broadband and close access to shops, buses and local schools, making it a practical choice for first‑time buyers or landlords seeking a city-centre rental.
Buyers should note material drawbacks honestly: the home is smaller than many suburban alternatives, the plot is compact, and the area shows indicators of deprivation with higher local crime levels. The terrace is of solid brick construction with no assumed cavity insulation, so buyers concerned about energy performance should factor potential insulation work into costs.
This is a straightforward opportunity to secure an affordable, centrally located property with immediate usability and clear scope to personalise or enhance value through modest improvements. A survey is recommended to check services and structural condition before purchase.
3 bedroom terraced house for sale in Lincoln Road, Peterborough, PE1 — £220,000 • 3 bed • 1 bath • 969 ft²
3 bedroom terraced house for sale in Lincoln Road, Peterborough, PE1 — £220,000 • 3 bed • 1 bath • 933 ft²
3 bedroom terraced house for sale in Wellington Street, Peterborough, PE1 — £170,000 • 3 bed • 1 bath • 948 ft²
3 bedroom terraced house for sale in Lincoln Road, Peterborough, PE1 — £170,000 • 3 bed • 1 bath • 679 ft²
3 bedroom terraced house for sale in Lincoln Road, Peterborough, PE1 — £220,000 • 3 bed • 1 bath • 2158 ft²
3 bedroom terraced house for sale in Crawthorne Street, Peterborough, PE1 — £205,000 • 3 bed • 1 bath • 679 ft²






































































