Ground-floor two-bed opposite Fistral Beach — private patio, allocated parking, proven holiday let.
Ground-floor apartment opposite Fistral Beach with private courtyard terrace
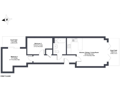
Set directly opposite Fistral Beach, this ground-floor two-bedroom apartment in Fistral Beach Apartments delivers genuine coastal lifestyle and proven rental income. The modern open-plan living space faces the sea with large bifold doors opening onto a private courtyard terrace, while a second private patio is accessible from the principal bedroom. The apartment was built in 2011, benefits from a C EPC rating, double glazing and gas central heating with underfloor heating, keeping running costs reasonable.
The property is held on a 999-year lease with a share of the freehold and permits both permanent residence and holiday letting. It currently operates as a successful holiday let with bookings transferable on completion; fixtures, fittings and future bookings are available by separate negotiation. Allocated off-street parking in the residents’ car park adds practical value in this popular coastal location.
Be clear on the practicalities: the flat is compact at around 498 sq ft and lies within a managed development with a service charge of about £240 per month (covers buildings insurance and common-area maintenance). Marketing images of the beach are generic and not taken from the apartment itself. Nearby schools include one rated Good and others requiring improvement — important if you’re buying for family use.
This apartment will suit a buyer seeking a low-maintenance coastal pied-à-terre or an investor wanting an established holiday-let in one of Newquay’s most desirable locations. The property is presented in contemporary condition but, given its size, shows strongest value for lifestyle purchasers or rental portfolios rather than those needing large family living space.
 2 bedroom flat for sale in Esplanade Road, Newquay, TR7 — £395,000 • 2 bed • 1 bath • 710 ft²
 2 bedroom flat for sale in Esplanade Road, Newquay, TR7 — £395,000 • 2 bed • 1 bath • 710 ft² 3 bedroom apartment for sale in Esplanade Road, Newquay, TR7 — £525,000 • 3 bed • 3 bath • 1395 ft²
 3 bedroom apartment for sale in Esplanade Road, Newquay, TR7 — £525,000 • 3 bed • 3 bath • 1395 ft² 2 bedroom apartment for sale in The Point, Pentire Avenue, TR7 — £330,000 • 2 bed • 2 bath • 743 ft²
 2 bedroom apartment for sale in The Point, Pentire Avenue, TR7 — £330,000 • 2 bed • 2 bath • 743 ft² 1 bedroom apartment for sale in Esplanade Road, Newquay, TR7 — £220,000 • 1 bed • 1 bath • 667 ft²
 1 bedroom apartment for sale in Esplanade Road, Newquay, TR7 — £220,000 • 1 bed • 1 bath • 667 ft² 3 bedroom apartment for sale in Headland Road, Newquay, Cornwall, TR7 — £535,000 • 3 bed • 2 bath • 880 ft²
 3 bedroom apartment for sale in Headland Road, Newquay, Cornwall, TR7 — £535,000 • 3 bed • 2 bath • 880 ft² 2 bedroom flat for sale in Pentowan House, King Edward Crescent, Newquay, TR7 — £425,000 • 2 bed • 2 bath • 776 ft²
 2 bedroom flat for sale in Pentowan House, King Edward Crescent, Newquay, TR7 — £425,000 • 2 bed • 2 bath • 776 ft²














































































