**Standout Features:**
- Charming Tudor Revival style, built in the 1930s
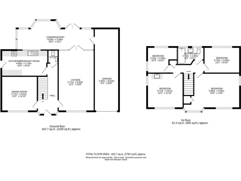
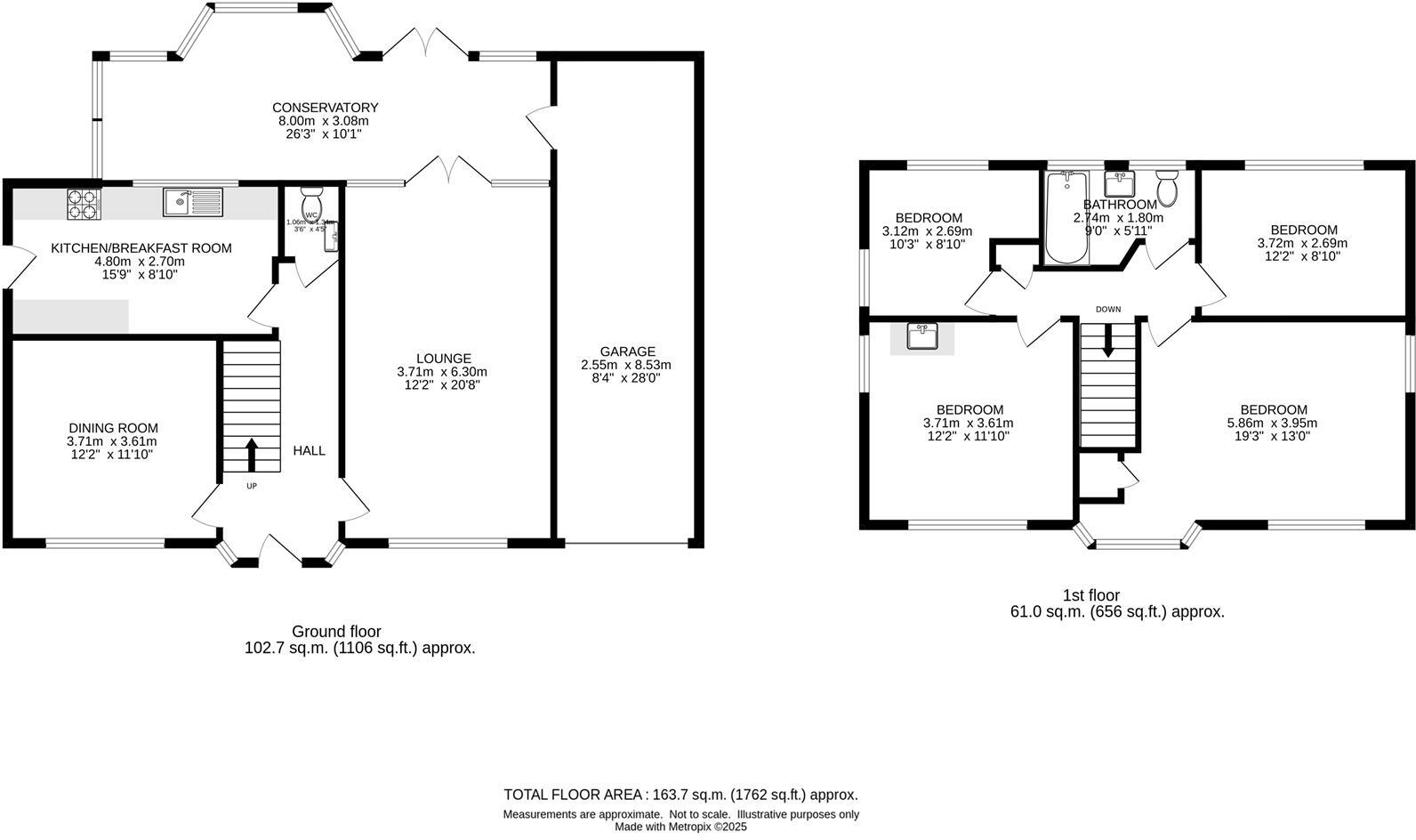
- Spacious detached home with approximately 1,762 sq ft
- 4 bedrooms and 1 bathroom, plus 3 reception rooms including a cozy lounge with a fireplace
- Large easterly-facing garden (~200 ft) with mature landscaping
- Integral garage and off-street parking
- Walkable to several outstanding schools, including Barrow Hedges Primary and Harris Academy Sutton
- Well-connected with excellent mobile signals and fast broadband
**Concise Summary:**
This captivating Tudor Revival detached home is an exceptional find in the highly desirable area of The Byway. With an expansive layout of approximately 1,762 sq ft, it features four well-sized bedrooms, one bathroom, and multiple living spaces, including a bright conservatory that effortlessly connects indoor and outdoor living. The property is enveloped by a large, beautifully landscaped garden providing privacy and lush greenery, perfect for families who enjoy entertaining or gardening.
Although the home offers charm and character, it does require some renovations, giving you the opportunity to personalize the space to your taste. The internal design showcases classic elements such as leaded light windows, a warm fireplace, and spacious rooms, ideal for family comfort. Located within a quiet, affluent community, you're just a stone's throw away from top-rated schools and local amenities.
This property is perfect for families looking for a forever home with future flexibility for upgrades or extensions. Don’t miss this unique opportunity to secure a piece of character and charm in a thriving neighborhood—this treasure won’t be on the market for long!
4 bedroom detached house for sale in Chiltern Road, South Sutton, SM2 — £1,000,000 • 4 bed • 2 bath • 1884 ft²
4 bedroom detached house for sale in Woodbury Drive, South Sutton, SM2 — £1,150,000 • 4 bed • 1 bath • 1864 ft²
4 bedroom detached house for sale in Grove Avenue, Sutton, Surrey, SM1 — £850,000 • 4 bed • 2 bath • 1755 ft²
4 bedroom detached house for sale in Furzedown Road, South Sutton, SM2 — £875,000 • 4 bed • 2 bath • 1435 ft²
4 bedroom detached house for sale in Onslow Avenue, South Cheam, SM2 — £1,900,000 • 4 bed • 3 bath • 3240 ft²
4 bedroom semi-detached house for sale in Beeches Walk, Carshalton, SM5 — £900,000 • 4 bed • 1 bath • 1574 ft²






















































