Compact character house close to town and open green, ideal for first-time buyers.
Chain free freehold with two double bedrooms
A compact, chain-free two-double-bedroom stone terraced house in central Skipton, ideal for first-time buyers seeking character and convenience. The property sits backing onto an open green and offers period features such as a high-ceilinged living room and a traditional fireplace, combined with modern comforts including UPVC double glazing and mains gas central heating.
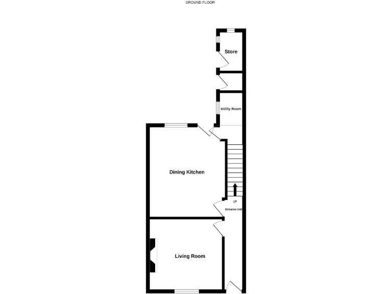
Accommodation is well planned across two floors: entrance hall, living room, dining kitchen, separate utility with access to a keeping cellar, two double bedrooms, bathroom and a separate WC. Outside there is an enclosed stone-flagged yard and two out-buildings providing useful external storage. The house is freehold and offered chain free, allowing a quicker move.
Practical considerations: the home is small (approximately 372 sq ft) with a small plot, so internal space is limited. There is a medium flood risk for the area — prospective buyers should confirm insurance implications. Overall the property is presented in good order but, as with older houses, buyers should arrange their own professional checks on services and structure.
Located about two-thirds of a mile from Skipton town centre, the house benefits from excellent local transport links, fast broadband and very good mobile signal. The town offers a wide choice of shops, leisure facilities and top-performing secondary schools, plus easy access to the Yorkshire Dales for weekends away.
2 bedroom terraced house for sale in 10 King Street, Skipton, BD23 1HD, BD23 — £195,000 • 2 bed • 1 bath
2 bedroom house for sale in 42 Broughton Grove, Skipton, BD23 1TL, BD23 — £155,000 • 2 bed • 1 bath • 480 ft²
3 bedroom terraced house for sale in 47 Westmoreland Street, Skipton, BD23 2DY, BD23 — £199,950 • 3 bed • 1 bath • 516 ft²
2 bedroom terraced house for sale in 20 Sawley Street, Skipton, BD23 1SX, BD23 — £145,000 • 2 bed • 1 bath • 466 ft²
2 bedroom terraced house for sale in 10 Nelson Street, Skipton, BD23 2DT, BD23 — £189,950 • 2 bed • 1 bath • 497 ft²
3 bedroom terraced house for sale in 21 Upper Sackville Street, Skipton, BD23 2EB, BD23 — £189,950 • 3 bed • 1 bath • 686 ft²














































