Low-maintenance living with strong communal facilities for active over-60s.
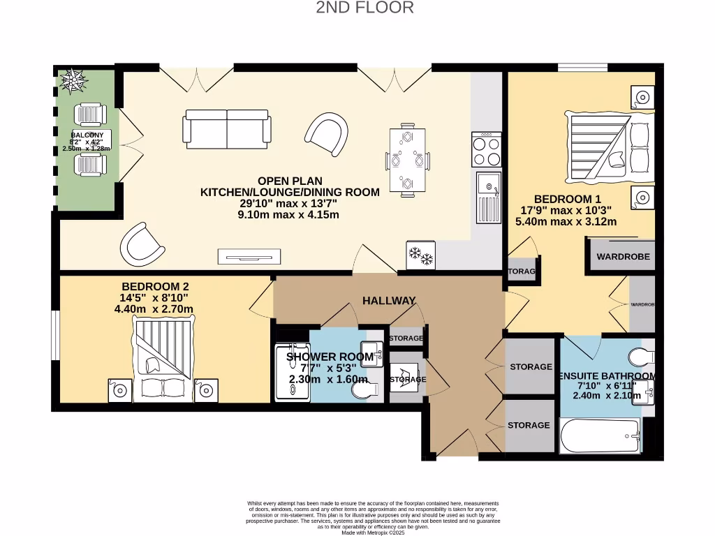
Second-floor two-bedroom retirement apartment with balcony and garden views
This bright two-bedroom, second-floor retirement apartment in Harpenden offers low-maintenance living with generous communal facilities and attractive landscaped gardens. The open-plan living, dining and kitchen opens to a balcony overlooking green space, while integrated Fisher & Paykel appliances and a washer-dryer cupboard add everyday convenience.
Designed for residents over 60, the development includes a 24-hour emergency call system, on-site team, communal lounge, hobby and treatment rooms, guest suites and an on-site café. The main bedroom has fitted wardrobes and an en-suite; a second double bedroom and a separate shower room complete the accommodation.
Practical matters are clear: the flat is leasehold (239 years remaining on the advertised 250-year term), with an annual service charge of £7,446, ground rent of £350 (first review at 25 years) and Council Tax band F. The property was built in 2014 and benefits from lift access, allocated parking and good broadband and mobile signals.
This home will suit downsizers looking for social community living, garden views and minimal upkeep. Be aware of above-average service charges, ongoing ground rent and the area's high recorded crime rate when considering this purchase.
2 bedroom retirement property for sale in Leyton Road, Harpenden, Hertfordshire, AL5 — £795,000 • 2 bed • 2 bath • 1068 ft²
2 bedroom retirement property for sale in Leyton Road, Harpenden, Hertfordshire, AL5 — £725,000 • 2 bed • 2 bath • 959 ft²
2 bedroom retirement property for sale in Leyton Road, Harpenden, Hertfordshire, AL5 — £800,000 • 2 bed • 2 bath • 1067 ft²
3 bedroom retirement property for sale in Leyton Road, Harpenden, Hertfordshire, AL5 — £875,000 • 3 bed • 2 bath • 1300 ft²
1 bedroom retirement property for sale in Leyton Road, Harpenden, Hertfordshire, AL5 — £435,000 • 1 bed • 1 bath • 581 ft²
2 bedroom flat for sale in 23a Leyton Road, Harpenden, AL5 — £795,000 • 2 bed • 2 bath • 1074 ft²






















































