Low-maintenance luxury living with garage, EV charge and lift access.
Extremely large 2-bed apartment with open-plan living
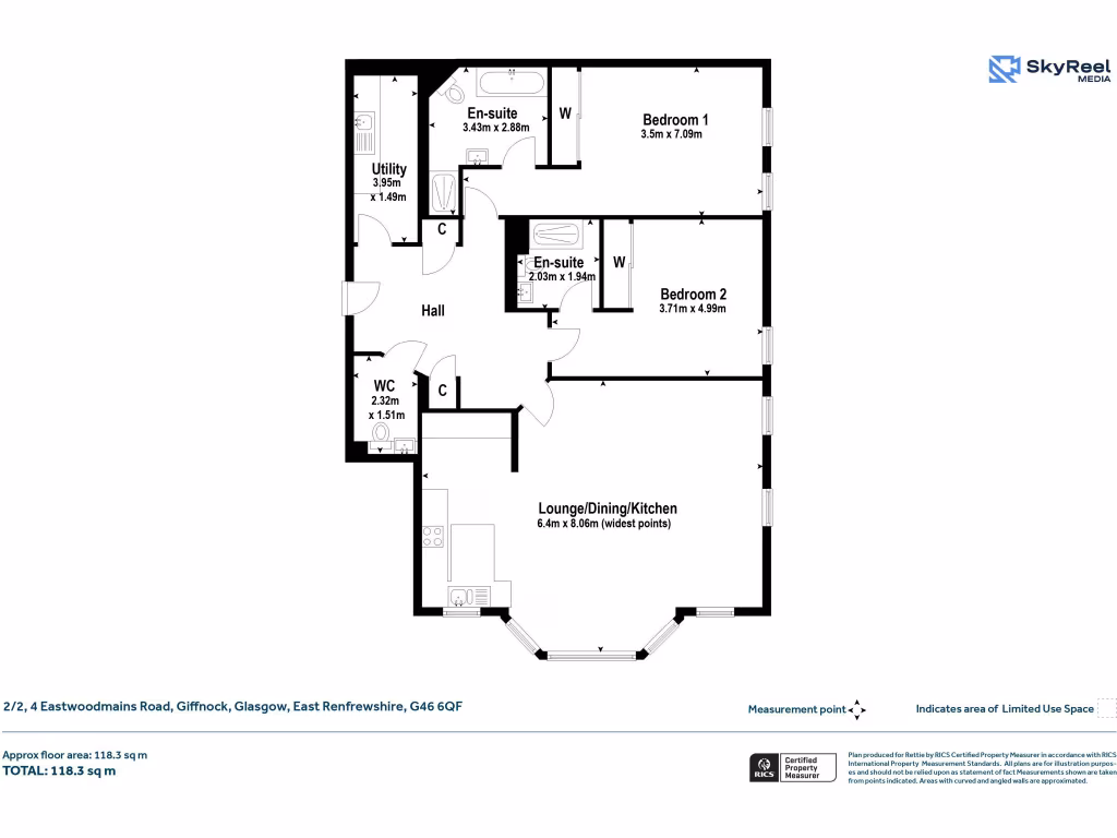
Set on the second floor of Clan House, this exceptionally large two-bedroom apartment offers generous, light-filled accommodation and high-spec fixtures across an open-plan living space. A striking bay window and seven further windows provide far-reaching views towards Banco and Eastwood Toll, while a fitted Sonos system and granite-topped kitchen create a comfortable, modern home ideal for relaxed entertaining.
Practical comforts include secure underground parking with electric doors, two allocated spaces and an EV charger, direct lift access to the second floor, substantial built-in storage and a partially floored attic accessed via the utility room. Both bedrooms are doubles with fitted wardrobes and en suite bathrooms; the principal en suite benefits from underfloor heating, a walk-in shower and an integrated TV for added luxury.
Important notes: council tax is high (Band F) and the property’s EPC is C. There is mixed locality data—local area classed as affluent but wider-area deprivation flagged—so buyers should check local services and demographics that matter to them. Tenure details should be verified prior to offer.
This apartment will suit buyers seeking a low-maintenance, high-comfort city-suburb base with strong transport links to Glasgow, nearby leisure facilities and attractive local parks. It offers immediate occupancy potential with scope to personalise, while retaining many move-in-ready features.
2 bedroom apartment for sale in Mains Avenue, Giffnock, G46 — £295,000 • 2 bed • 2 bath • 1301 ft²
2 bedroom apartment for sale in Woodend, Milverton Road, Giffnock, G46 — £370,000 • 2 bed • 2 bath • 1409 ft²
2 bedroom apartment for sale in Ascot Gate, Anniesland, Glasgow, G12 — £275,000 • 2 bed • 2 bath • 1569 ft²
2 bedroom apartment for sale in Whittingehame Drive, Kelvinside, Glasgow, G12 — £315,000 • 2 bed • 2 bath • 987 ft²
2 bedroom flat for sale in Maxwell Street, Glasgow, G1 — £205,000 • 2 bed • 2 bath • 947 ft²
2 bedroom apartment for sale in Southbrae Gardens, Jordanhill, Glasgow, G13 — £269,000 • 2 bed • 2 bath • 957 ft²






















































































































