**Standout Features:**
- Charming Edwardian end-terrace property
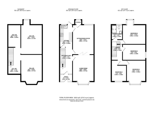
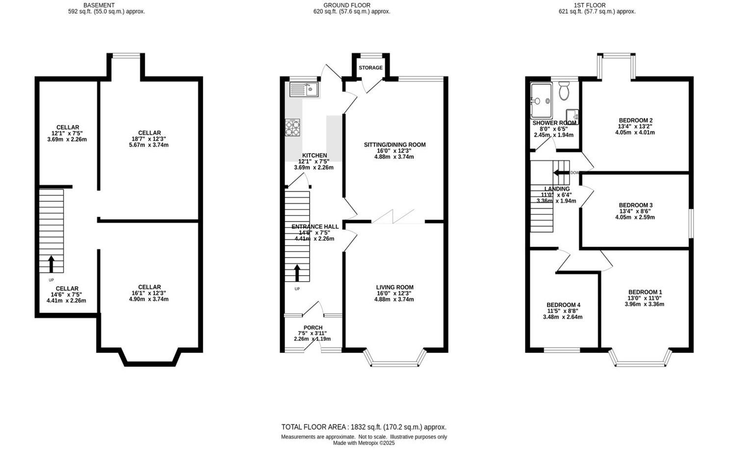
- Generous living space of 1,832 sq ft
- Four double bedrooms with ample natural light
- Two spacious reception rooms and recently updated kitchen
- Stylish modern shower room
- Extensive cellars and large loft space for potential development (STPP)
- New roof and boiler, with double glazing for energy efficiency
- Enclosed courtyard garden, ideal for family gatherings
**Overview:**
Discover a beautifully presented Edwardian end-terrace property on Kings Road in Old Trafford, perfect for families and first-time buyers alike. This spacious home boasts four double bedrooms, two generous reception rooms, and a modern, refitted kitchen and shower room, ensuring contemporary comfort with a touch of period charm. With 1,832 sq ft of versatile living space, you'll appreciate the abundant natural light and the potential offered by the extensive cellars and loft area, ideal for conversion.
Situated in a family-friendly area, this property is close to reputable schools and has excellent transport links. Notably, it features a new roof, boiler, and double glazing, providing peace of mind on essential maintenance. The quaint enclosed garden adds a lovely outdoor space for relaxation and play. While the council tax is low and crime rates are very low, enabling a secure living environment, do take note that the solid brick walls may require an insulation upgrade for optimal energy efficiency.
With a competitive price of £380,000, this property presents an incredible opportunity—act fast to make this charming home your own!
3 bedroom end of terrace house for sale in Kings Road, Old Trafford, Manchester, M16 — £400,000 • 3 bed • 1 bath • 1213 ft²
5 bedroom semi-detached house for sale in Plumbley Drive, Old Trafford, M16 — £595,000 • 5 bed • 3 bath • 1209 ft²
3 bedroom terraced house for sale in Fulford Street, Old Trafford, M16 — £350,000 • 3 bed • 1 bath • 1048 ft²
4 bedroom semi-detached house for sale in Darley Road, Old Trafford, M16 — £675,000 • 4 bed • 2 bath • 1538 ft²
4 bedroom semi-detached house for sale in Chatham Road, Old Trafford, M16 — £685,000 • 4 bed • 1 bath • 1645 ft²
3 bedroom terraced house for sale in Thorpe Street, Old Trafford, M16 — £340,000 • 3 bed • 1 bath • 934 ft²


















































































