Compact contemporary home with parking and private terrace near stations.
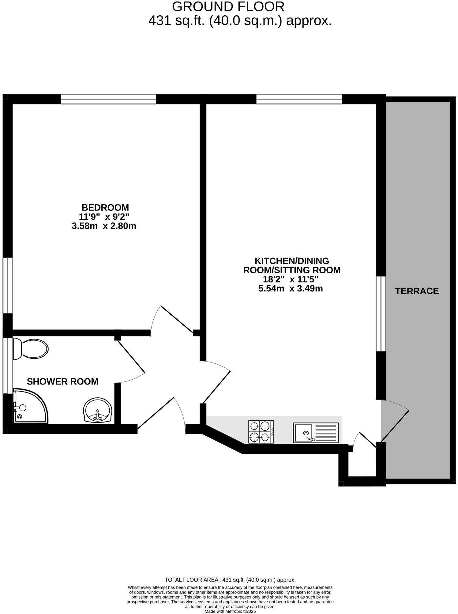
Ground-floor one-bedroom apartment, 431 sq ft
A contemporary ground-floor one-bedroom apartment built in 2022, offering low-maintenance city living with an allocated off-street parking space and private terrace. At 431 sq ft this compact home suits a first-time buyer or investor seeking a modern, easy-to-run property close to good transport links.
The build is recent and comes with the remainder of a 10-year warranty for buyer reassurance. The long lease (122 years remaining) and zero ground rent are practical ownership advantages. Fast broadband and direct train services from nearby stations make commuting into central London straightforward.
Be clear about the limits: the flat is small and will suit those wanting a compact home rather than spacious living. The EPC is D and the glazing is noted as pre-2002; external walls are solid brick with assumed no added insulation. Crime is above average in the area and service charge information is currently TBC, so budget planning should allow for potential service costs.
Location strengths include proximity to Croham Hurst Woods, several well-regarded schools, and a broad choice of shops and restaurants in South Croydon. For buyers prioritising a modern, low-upkeep property with parking and outdoor space, this is a practical, well-located opportunity—just factor in size, energy rating, glazing and local crime levels when deciding to view.
1 bedroom flat for sale in Winston Rose Court, 273 Addiscombe Road, Croydon, Surrey, CR0 — £230,000 • 1 bed • 1 bath • 392 ft²
1 bedroom flat for sale in Selsdon Road, South Croydon, CR2 — £295,000 • 1 bed • 1 bath • 542 ft²
1 bedroom apartment for sale in Sydenham Road, Croydon, CR0 — £250,000 • 1 bed • 1 bath • 343 ft²
1 bedroom apartment for sale in Sydenham Road, Croydon, CR0 — £260,000 • 1 bed • 1 bath • 355 ft²
1 bedroom apartment for sale in Brancaster Lane, Purley, CR8 — £300,000 • 1 bed • 1 bath • 430 ft²
1 bedroom apartment for sale in Clyde Road, East Croydon, Surrey, CR0 — £230,000 • 1 bed • 1 bath • 463 ft²






























