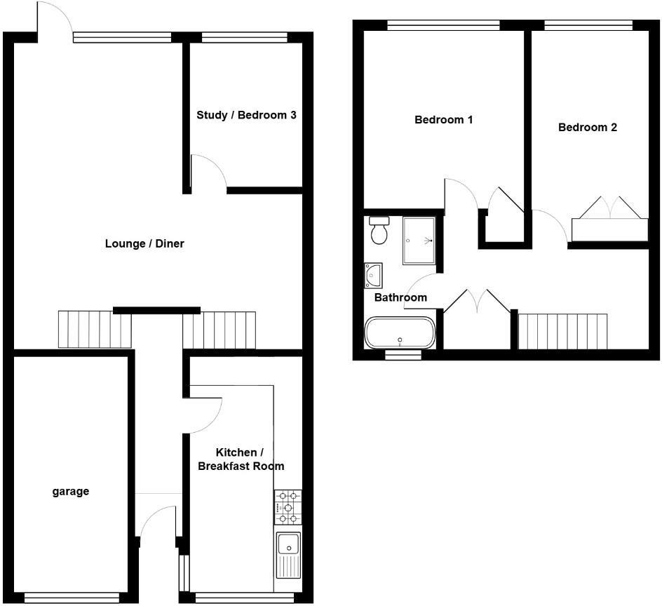
**Standout Features:**
- Split-level Modernist architecture with three distinctive levels
- Open-plan lounge/dining area with large picture windows
- Three spacious bedrooms and a contemporary kitchen
- Integral garage and off-street parking
- Close to green spaces and River Frome walks
- Ideal for professionals, first-time buyers, young families, and retirees
Discover this captivating split-level Modernist home, designed for modern living and versatility. Arranged over three levels, it features a stunning open-plan lounge and dining area, bathed in natural light from expansive windows, creating a welcoming atmosphere for relaxation and entertainment. The contemporary kitchen and bathroom add an elegant touch to everyday convenience, while three well-proportioned bedrooms provide ample space for families or guests.
Enjoy the ease of an integral garage and off-street parking, alongside a quaint garden space perfect for summer gatherings. The property is nestled near open green spaces and scenic walks along the River Frome, offering the ideal backdrop for outdoor enthusiasts or those seeking tranquility.
Although the property is well-maintained, potential buyers should note that insulation in the walls may need updating for energy efficiency. With a competitive price of £385,000, this charming home presents a unique opportunity for those wanting modern comfort in a desirable location—don't miss your chance to secure it before it’s gone!







































































































