Bright, low-maintenance one-bedroom for comfortable independent living.
South-facing first-floor apartment with Juliet balcony
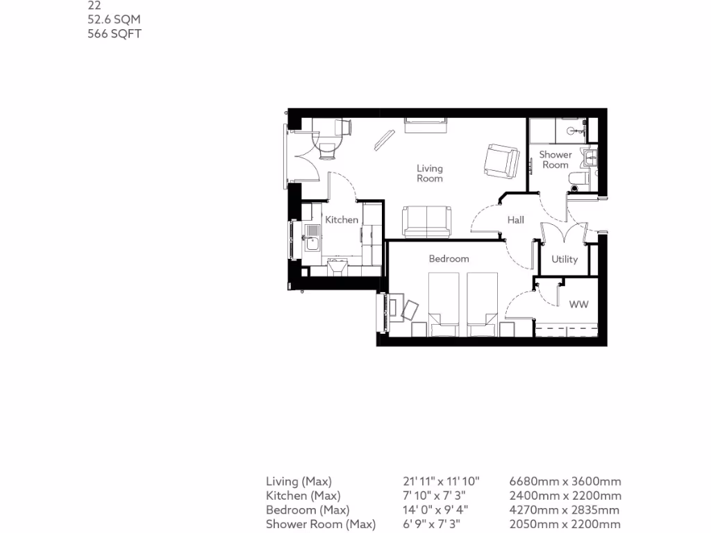
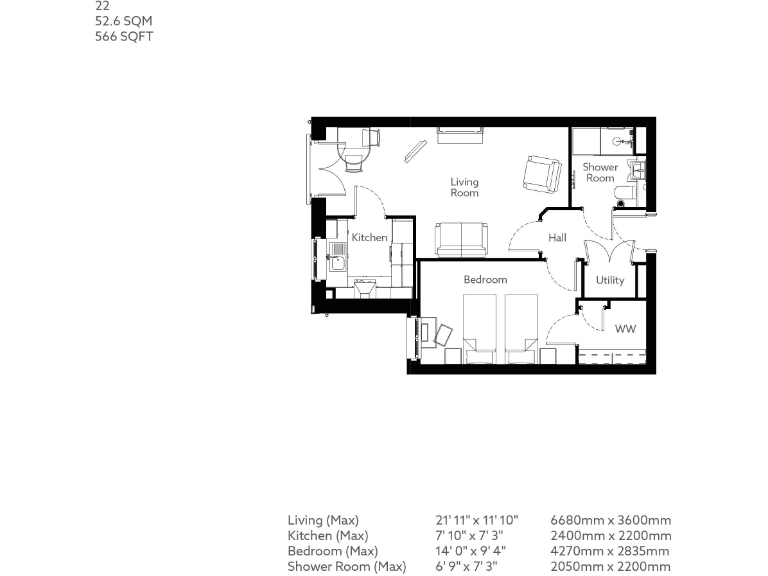
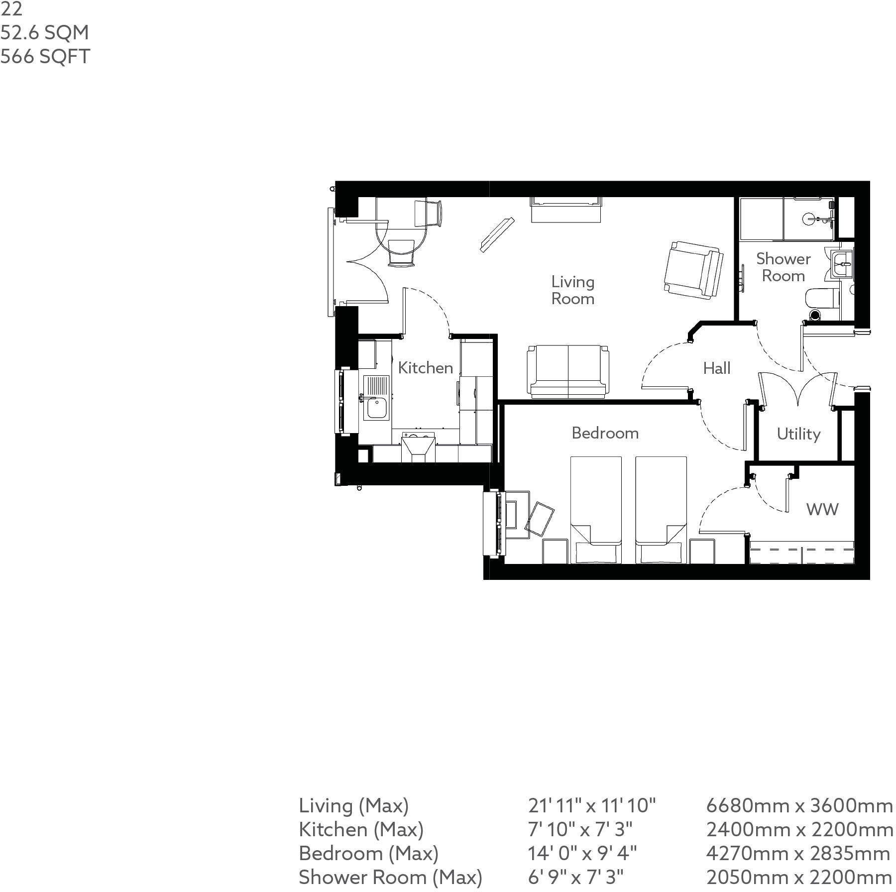
Built in 2023, this one-bedroom first-floor apartment at Symonds Grange offers contemporary, low-maintenance retirement living. The south-facing Juliet balcony and dual-aspect living room give bright, airy rooms across 566 sq ft, with fitted flooring and integrated kitchen appliances including a waist-height oven and washer-dryer in a utility cupboard.
Care and community are core features: landscaped communal gardens are maintained for you, and onsite facilities include a communal lounge, hobbies room, scooter charging and an on-site House Manager. Security and emergency cover include a camera entry system and a 24-hour emergency call system, giving strong peace of mind for independent living.
Practical considerations: the apartment is leasehold (997 years remaining) and uses electric room heaters as the main heating source, which can be costlier than gas alternatives. The property is aimed at downsizers or retirement buyers seeking turnkey accommodation in an affluent area with fast broadband and average mobile signal.
Overall this is a modern, purpose-built retirement apartment with practical mobility features and communal amenities, suited to someone seeking a secure, low-maintenance home with on-site support and social opportunities.
1 bedroom retirement property for sale in HOOTON ROAD,
Willaston,
Cheshire,
CH64 1AD, CH64 — £289,950 • 1 bed • 1 bath • 564 ft²
2 bedroom retirement property for sale in HOOTON ROAD,
Willaston,
Cheshire,
CH64 1AD, CH64 — £389,950 • 2 bed • 1 bath • 785 ft²
1 bedroom apartment for sale in Symonds Grange, Hooton Road, Willaston, Neston, CH64 1AD, CH64 — £210,000 • 1 bed • 1 bath • 570 ft²
1 bedroom apartment for sale in Hooton Road, Willaston, Neston, CH64 1AD, CH64 — £275,000 • 1 bed • 1 bath • 570 ft²
2 bedroom flat for sale in Hooton Road, Willaston, Neston, Cheshire, CH64 — £375,000 • 2 bed • 2 bath • 811 ft²
2 bedroom apartment for sale in Hooton Road, Willaston, Neston, CH64 — £375,000 • 2 bed • 2 bath • 814 ft²


































