Compact two-bedroom fixer with garden and outbuilding, ideal for renovation.
Chain free with recent re-roof completed
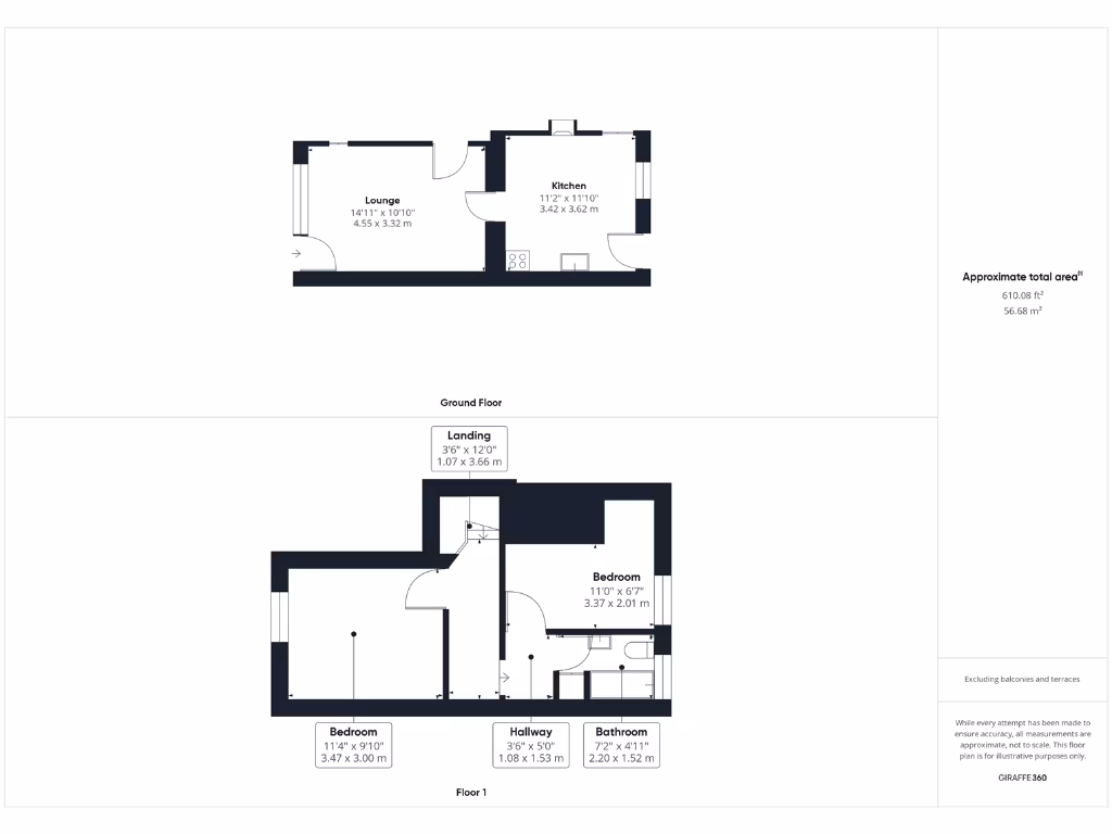
This two-bedroom mid-terraced cottage sits in Brandon’s town centre, offered chain free and recently re-roofed. The house is compact and retains period character but requires general updating throughout, presenting a clear refurbishment project for an owner-occupier or investor.
Ground-floor layout includes a front lounge and modest kitchen overlooking the small rear garden and brick outbuilding. Accommodation is small-roomed with low ceilings and a mix of single and later double glazing. Heating is by electric storage and panel heaters and the property is believed to have solid brick walls with no cavity insulation.
The location is a primary selling point: central for shops, public transport and local schools, with Brandon station giving links toward Norwich and Ely. The cottage’s modest purchase price and chain-free sale make it suitable for first-time buyers seeking a manageable project or landlords targeting rental after renovation.
Buyers should note practical drawbacks plainly: the house needs cosmetic and likely mechanical improvements, has limited internal space, and sits in an area with higher crime and local deprivation. There is a shared right of way to the rear garden which gives access for a neighbouring property. These factors affect both living comfort and investment assumptions but also reduce initial purchase cost and increase scope to add value with targeted improvements.
3 bedroom cottage for sale in London Road, Brandon, IP27 — £170,000 • 3 bed • 1 bath • 342 ft²
2 bedroom semi-detached house for sale in George Street, Brandon, IP27 — £150,000 • 2 bed • 1 bath • 722 ft²
2 bedroom terraced house for sale in Riverside Way, Brandon, IP27 — £150,000 • 2 bed • 1 bath • 646 ft²
2 bedroom end of terrace house for sale in Warren Close, Brandon, IP27 — £100,000 • 2 bed • 1 bath • 354 ft²
1 bedroom terraced house for sale in Primrose Drive, Brandon, IP27 — £145,000 • 1 bed • 1 bath • 418 ft²
3 bedroom terraced house for sale in Warren Close, Brandon, IP27 — £175,000 • 3 bed • 1 bath • 937 ft²














































