NW9 6DU - 3 bedroom semidetached house for sale in Colindeep Lane, Co…

View on Property Piper

3 bedroom semi-detached house for sale in Colindeep Lane, Colindale, London, NW9

Summary - 33 COLINDEEP LANE LONDON NW9 6DU

3 bed 1 bath Semi-Detached

Generous period home with garage, parking and extension potential near Colindale station.
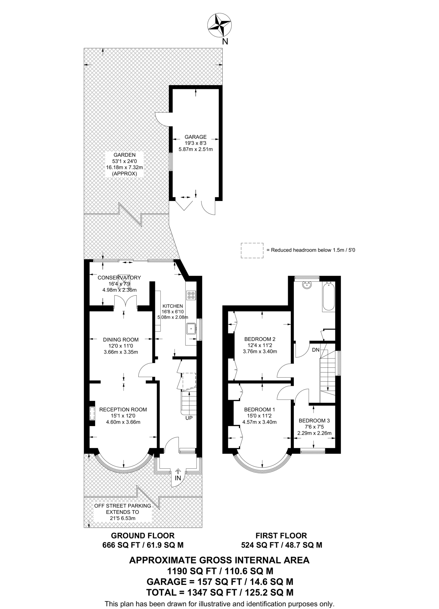
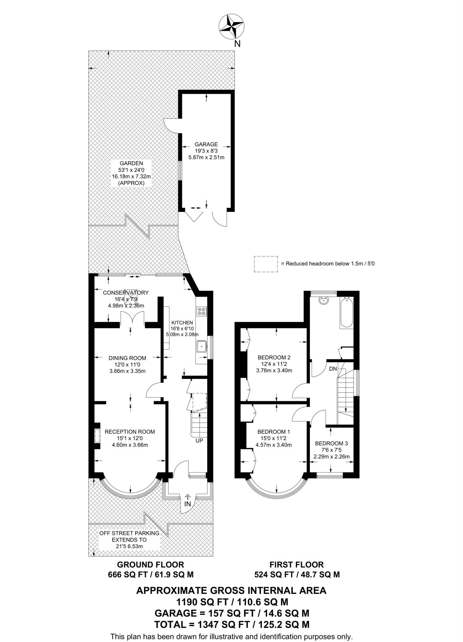
Spacious 1,347 sq ft interior across multiple storeys
Three good-sized bedrooms and one bathroom
Separate garage with road access and driveway parking
Potential to extend subject to planning (STPP)
Dated interior — requires modernisation and energy upgrades
Solid brick walls, likely no insulation; glazing install date unknown
Medium flood risk in the area
Above-average local crime rates
A spacious 1930s semi-detached home in Colindale offering generous living space across 1,347 sq ft and a decent plot. The house retains period character such as bay windows and tiled roof, while providing practical features including a separate garage with road access and off-street parking. Its Freehold tenure and potential to extend (subject to planning) make it attractive for growing families or investors seeking uplift.

Internally the property offers three good-sized bedrooms and one bathroom with room configurations across multiple storeys. The layout and size give clear scope for modernisation and reconfiguration to add value; however the interior is dated and will require updating to contemporary standards. Walls are solid brick with assumed no insulation, and the glazing is double but installation date is unknown, so energy-efficiency improvements are likely needed.

Location strengths include a 0.5-mile walk to Colindale Underground, a range of local amenities, and several nearby schools with good or top-tier options. Practical considerations include a medium flood risk for the area and above-average crime levels locally. The property is best suited to buyers willing to invest in renovation or pursue an extension (STPP).

Property Details

Image Descriptions

Floorplan Description

Rooms

Textual Property Features

Target Audience

AI Tags

Detected Visual Features

EPC Details

Nearby Schools

Nearest Bars And Restaurants

,,,,}

Nearest General Shops

,,}

Nearest Grocery shops

,,}

Nearest Supermarkets

,,}

Nearest Religious buildings

,,}

Nearest Medical buildings

,,,}

Nearest Airports

,}

Nearest Leisure Facilities

,,,,}

Nearest Tourist attractions

,,}

Nearest Train stations

,,,,}

Nearest Bus stations and stops

,,,,}

Nearest Hotels

,,}

Tags

Local Market Stats

AirBnB Data

Similar Properties

Meta

High Res Images

Compatible Images

Low res Images

Thumbnails

Raw Images

High Res Floorplan Images

Compatible Floorplan Images

Low res Floorplan Images

FloorplanImages Thumbnail

Raw Floorplan Images