SE5 0SU - 5 bed spacious period family home in Camberwell New Road, S…

View on Property Piper

5 bedroom house for sale in Camberwell New Road, Camberwell, London, SE5

Summary - 137 CAMBERWELL NEW ROAD LONDON SE5 0SU

5 bed 2 bath House

Large rooms, modern kitchen, strong transport links for family life.
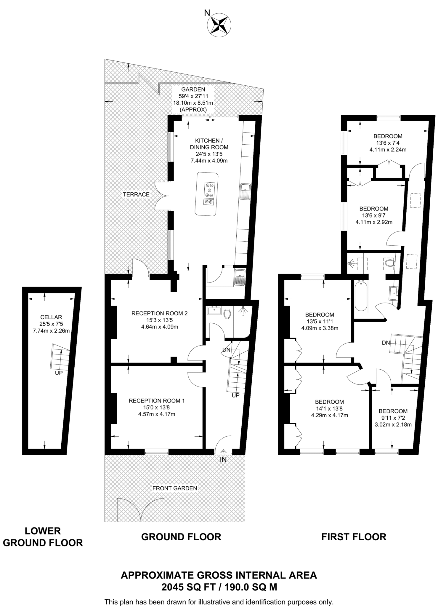
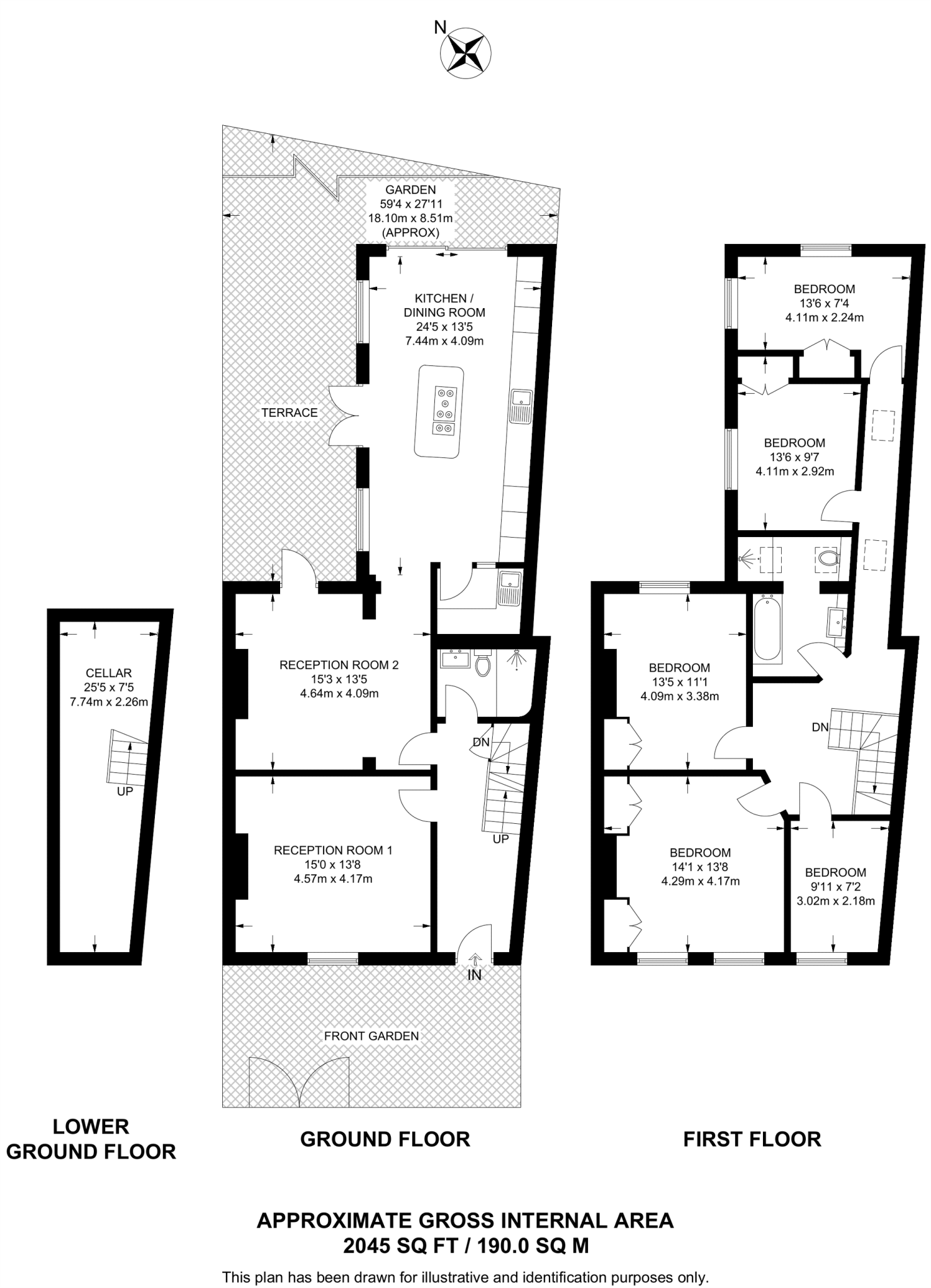
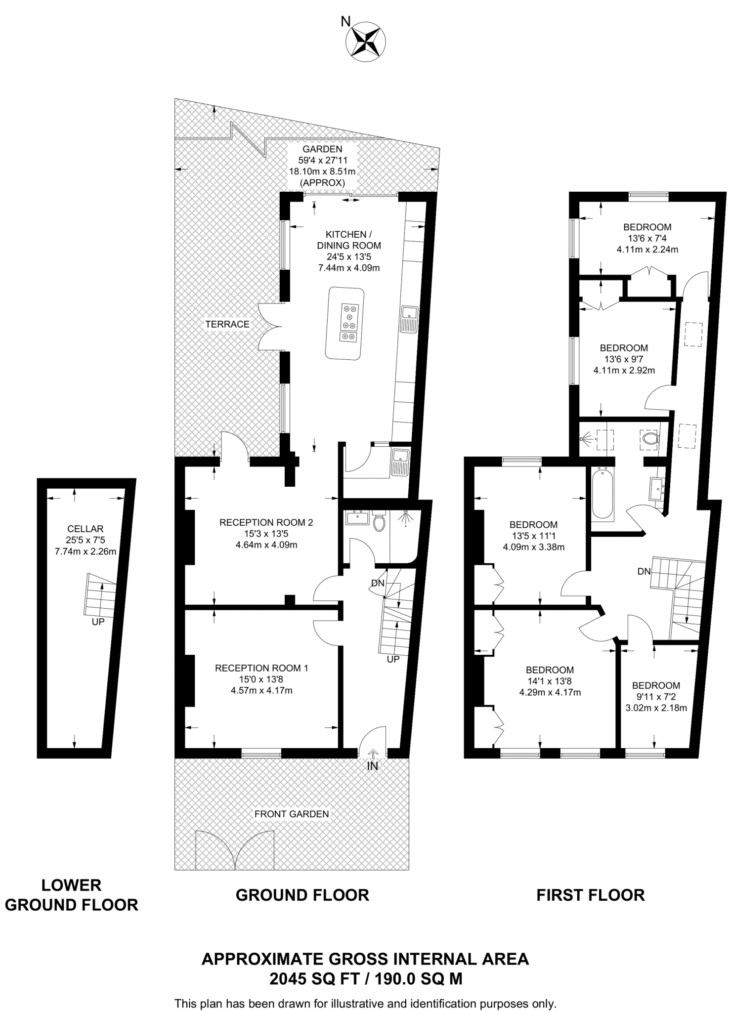
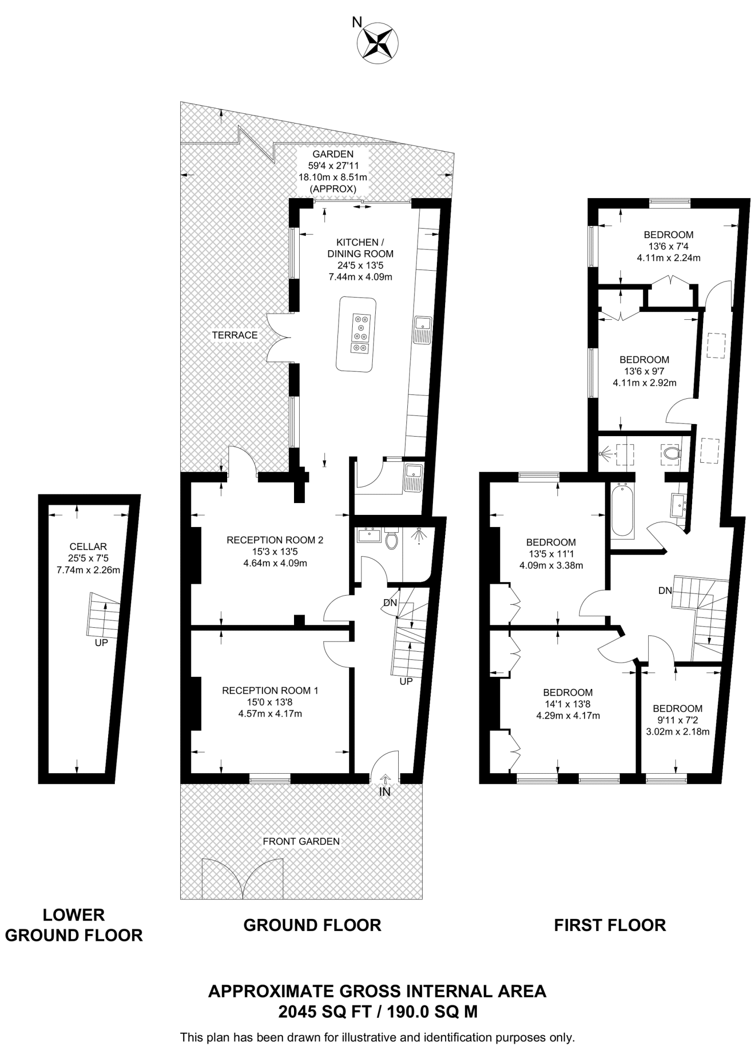
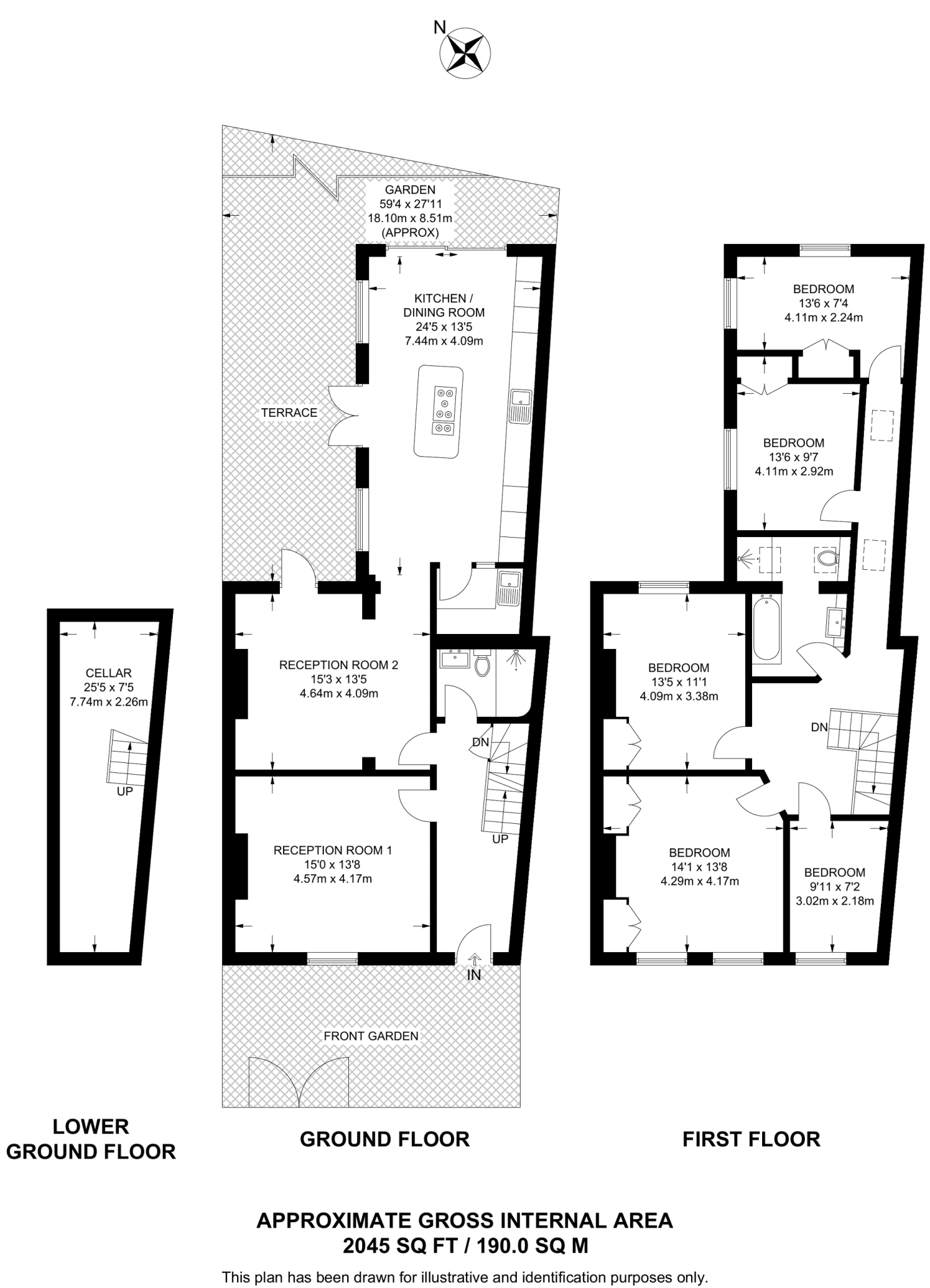
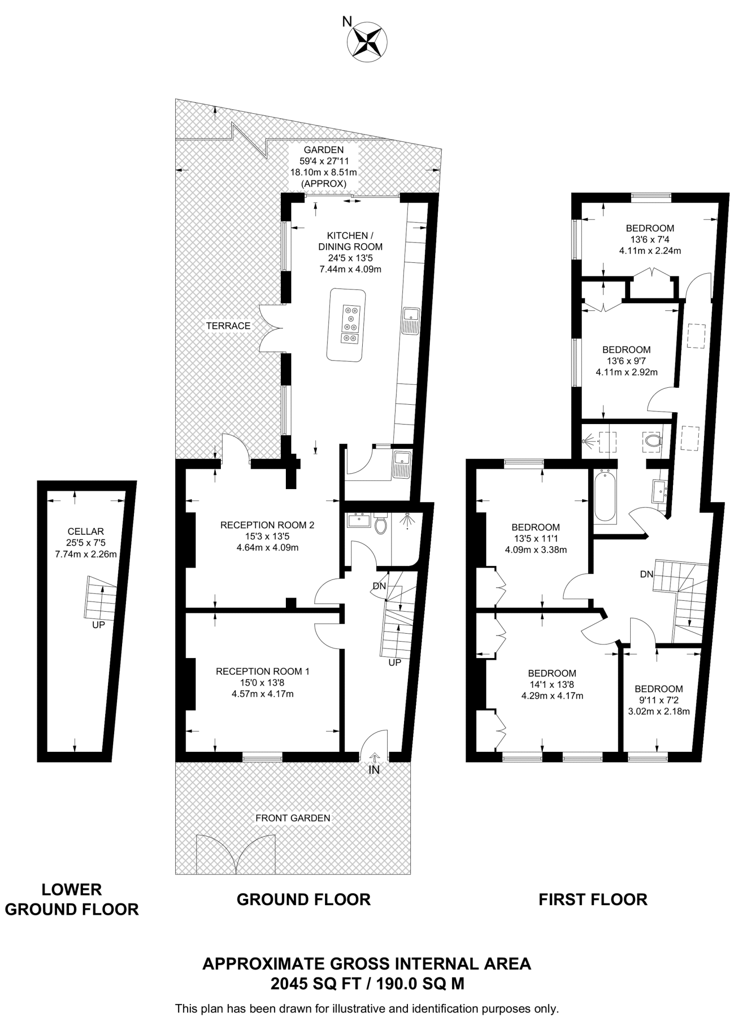
End-terrace five-bedroom house with cellar and private garden
This spacious five-bedroom end-terrace offers generous family living across two floors with an additional cellar and private garden. The house combines period bones — built before 1900 with solid brick walls — with a contemporary, well-equipped kitchen and large reception room suitable for dining and family gatherings.

Bedrooms are generous and include built-in storage, while the property benefits from double glazing installed after 2002, mains gas central heating with a boiler and radiators, and a decent plot size with a rear terrace leading to the garden. Transport links are strong: Loughborough Junction, Denmark Hill and Oval stations are all within easy reach, and local shops, bars and restaurants in Camberwell and Peckham are close by.

Important practical points: the walls are assumed to have no insulation and the area has above-average crime and higher deprivation indicators, which may influence insurance, retrofit costs and resale appeal. The home is freehold and offers scope for updating or further refurbishment to improve thermal efficiency and contemporary finishes.

This property suits families seeking space near good primary and secondary schools, including several rated Good and one Outstanding. Investors or buyers planning refurbishment will value the layout and transport links, but should budget for insulation works and consider local area factors when assessing long-term value.

Property Details

Image Descriptions

Floorplan Description

Rooms

Textual Property Features

Target Audience

AI Tags

Detected Visual Features

EPC Details

Nearby Schools

Nearest Bars And Restaurants

,,,,}

Nearest General Shops

,,}

Nearest Grocery shops

,,}

Nearest Supermarkets

,,}

Nearest Religious buildings

,,}

Nearest Medical buildings

,,,}

Nearest Airports

,,}

Nearest Leisure Facilities

,,,,}

Nearest Tourist attractions

,,}

Nearest Train stations

,,,,}

Nearest Bus stations and stops

,,,,}

Nearest Hotels

,,}

Tags

Local Market Stats

AirBnB Data

Similar Properties

Meta

High Res Images

Compatible Images

Low res Images

Thumbnails

Raw Images

High Res Floorplan Images

Compatible Floorplan Images

Low res Floorplan Images

FloorplanImages Thumbnail

Raw Floorplan Images