Close to town centre with gardens and strong rental or starter potential.
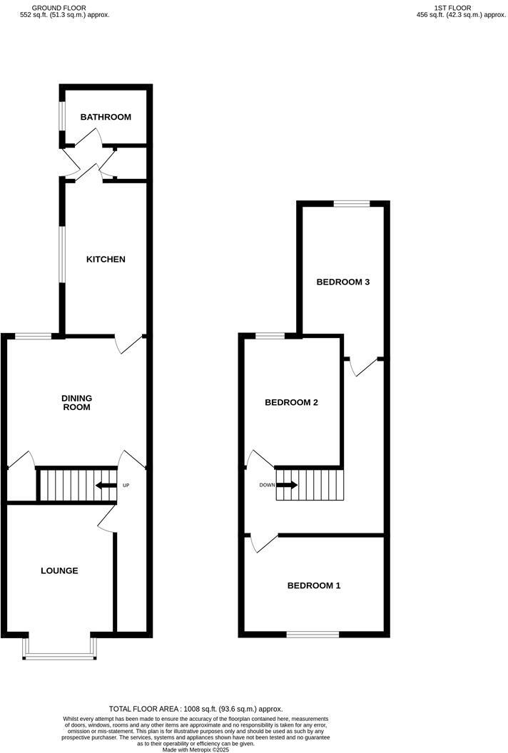
Freehold mid-terrace with three double bedrooms and two reception rooms
Close proximity to Grimsby town centre and local amenities
Small front and rear gardens, suitable for low-maintenance outdoor use
Very low flood risk; council tax band A (very cheap)
Solid brick construction likely without wall insulation — retrofit may be required
Dated exterior and interiors; benefits from modernisation throughout
Single downstairs bathroom only — may limit family convenience
Excellent mobile signal and fast broadband, good for remote working
This mid-terrace home on Legsby Avenue offers practical, well-proportioned accommodation across two storeys, suited to first-time buyers or buy-to-let investors. The layout includes a bay-fronted lounge, separate dining room, kitchen, ground-floor bathroom and three double bedrooms — plenty of flexible living space for a growing household or multiple tenants.
Key strengths are its freehold tenure, low flood risk and very cheap council tax, plus excellent mobile signal and fast broadband that suit modern living. There are small front and rear gardens for outdoor space and the property sits close to Grimsby town centre and local amenities, schools and public transport links.
The house is an early 20th-century solid-brick terrace with double glazing (install date unknown) and a gas boiler with radiator heating. Buyers should note the property reflects its age: the external appearance is dated and the walls are likely uninsulated, so thermal improvements and modernisation (including potential insulation and updating of fittings) will be needed to improve comfort and energy efficiency.
In short, this is a reasonably sized, traditional terrace with good rental or owner-occupier potential that will reward purchasers prepared to do targeted updating and energy-efficiency work.
3 bedroom terraced house for sale in Baroness Road, Grimsby, DN34 — £150,000 • 3 bed • 1 bath • 851 ft²
3 bedroom terraced house for sale in Humberstone Road, Grimsby, DN32 — £90,000 • 3 bed • 1 bath • 908 ft²
4 bedroom terraced bungalow for sale in Legsby Avenue, Grimsby, DN32 — £155,000 • 4 bed • 2 bath • 1457 ft²
3 bedroom house for sale in Daubney Street, Cleethorpes, DN35 — £110,000 • 3 bed • 1 bath • 1195 ft²
3 bedroom terraced house for sale in Cromwell Road, Grimsby, DN31 — £115,900 • 3 bed • 1 bath • 1236 ft²
3 bedroom terraced house for sale in Daubney Street, Cleethorpes, DN35 — £105,000 • 3 bed • 1 bath • 1061 ft²


















































