Compact two-bedroom single-storey home on a large plot with parking.
Detached single-storey bungalow with conservatory and rear garden
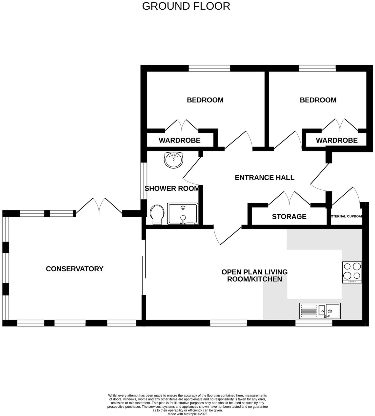
A neatly presented detached bungalow on a generous plot, offered with no onward chain and ready for immediate occupation. The open-plan living room and kitchen flow into a conservatory that overlooks a well-maintained rear garden, giving useful extra living space and easy single-level living.
Two double bedrooms and a shower room make the layout simple and practical — a straightforward home for downsizers, those seeking a low-maintenance base, or buyers wanting a rental with modest upkeep. Off-street parking and gated side access add convenience for cars and garden tools.
The property is compact (c.592 sq ft) and externally well cared for but shows a dated style in places; buyers should expect cosmetic updating rather than structural overhaul. Broadband is fast and there is no reported flood risk, though the wider area registers higher deprivation indices which may influence resale pricing and local services.
Overall this bungalow offers accessible single-storey living, good outdoor space and immediate availability. It suits a buyer prioritising convenience, a manageable garden and straightforward accommodation rather than extensive living space or contemporary finishes.
2 bedroom bungalow for sale in The Street, Sholden, CT14 — £355,000 • 2 bed • 1 bath • 797 ft²
2 bedroom semi-detached bungalow for sale in The Street, Sholden, CT14 — £325,000 • 2 bed • 1 bath • 638 ft²
2 bedroom bungalow for sale in Toll Gate, Deal, Kent, CT14 — £400,000 • 2 bed • 1 bath • 999 ft²
4 bedroom bungalow for sale in London Road, Sholden, Deal, Kent, CT14 — £595,000 • 4 bed • 1 bath • 1094 ft²
2 bedroom bungalow for sale in The Street, Sholden, Deal, Kent, CT14 — £350,000 • 2 bed • 1 bath • 889 ft²
2 bedroom bungalow for sale in Borrowdale Avenue, Ramsgate, CT11 — £325,000 • 2 bed • 1 bath • 926 ft²


























































