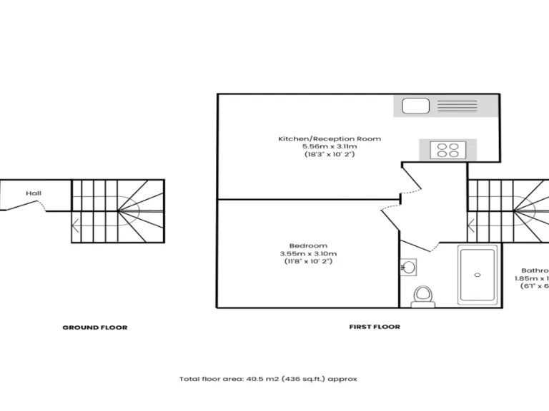
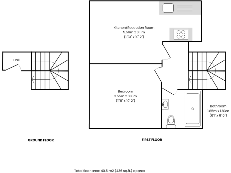
Compact one-bedroom Victorian flat near South Croydon station — ideal starter or investor buy..
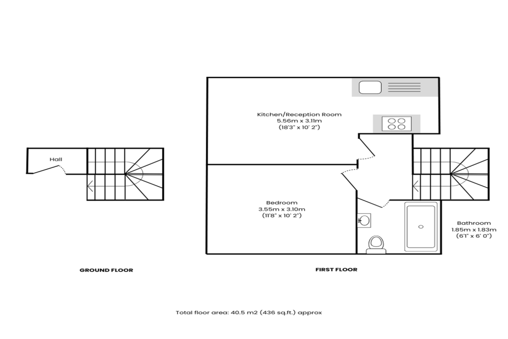
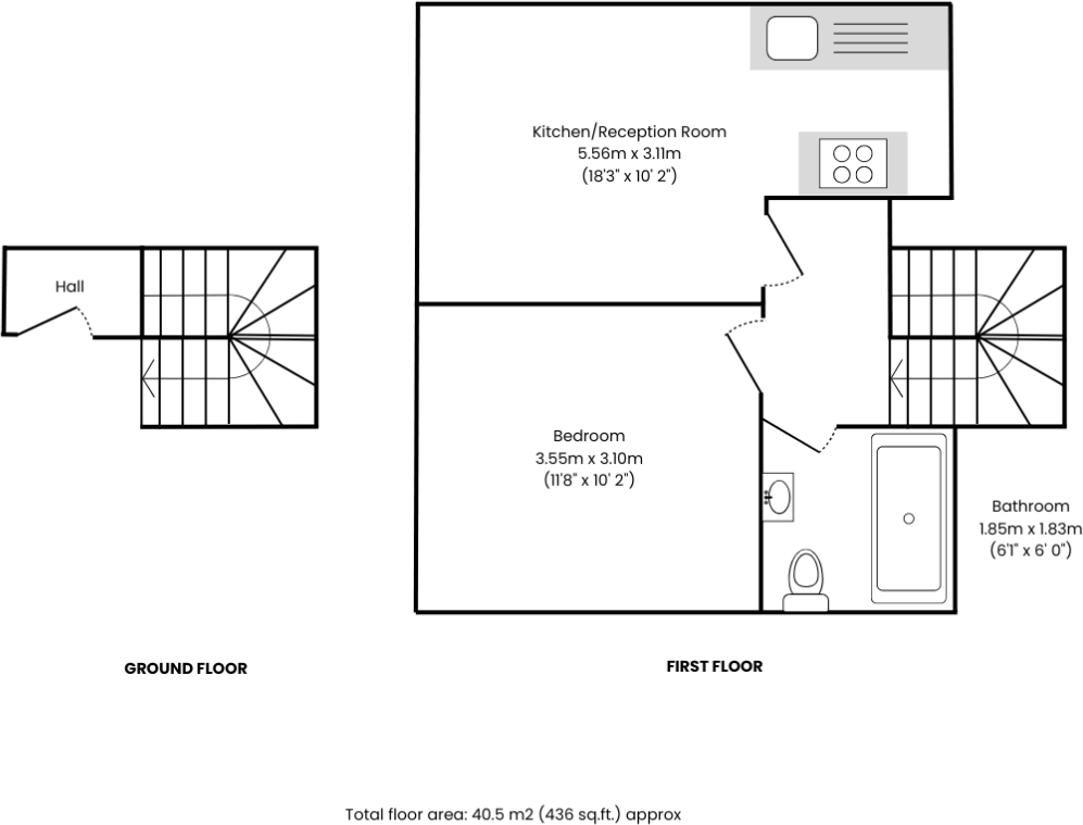
One double bedroom in a compact top-floor split-level flat
Short walk to South Croydon station — strong commuter appeal
No onward chain; 114 years remaining on lease
Period features and high ceilings, feel larger than size
Timber-frame walls assumed; likely no built-in insulation
Above-average local crime rate — check security and insurance
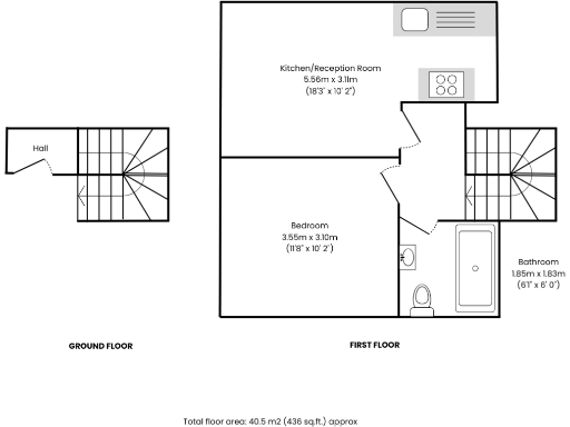
Small 436 sq ft footprint; limited space for home-working/storage
Average broadband speeds; may not suit heavy remote-working needs
A compact top-floor flat in a Victorian semi-detached building, offered with no onward chain and immediate vacant possession. The layout provides a double bedroom, an L-shaped open-plan lounge/kitchen and a bathroom — a straightforward, low-maintenance footprint for a first-time buyer or investor. South Croydon station is a short walk away, making commuting simple and market demand steady.
The property retains period character and high ceilings which help the apartment feel larger than its 436 sq ft suggests. The long 114-year lease is a practical advantage over short-lease alternatives, and double glazing and mains gas central heating are already in place. Local amenities, good schools nearby and excellent mobile signal add to everyday convenience.
Buyers should note this is a small, top-floor, split-level flat in a timber-framed Victorian building that may need updating. Wall construction is assumed to be timber frame with no built-in insulation; further investigation is recommended. The area records above-average crime — purchasers should assess local safety measures and insurance implications.
Average broadband speeds and the compact internal layout limit suitability for households needing home-working space or large storage. For investors, the combination of location and no onward chain simplifies transaction timing, but refurbishment and ongoing maintenance of an older property should be budgeted for.
1 bedroom flat for sale in Brighton Road, SOUTH CROYDON, Surrey, CR2 — £200,000 • 1 bed • 1 bath • 537 ft²
1 bedroom flat for sale in Brighton Road, South Croydon, CR2 — £200,000 • 1 bed • 1 bath • 673 ft²
1 bedroom flat for sale in Blunt Road, South Croydon, CR2 — £189,995 • 1 bed • 1 bath
1 bedroom flat for sale in Nottingham Road, South Croydon, CR2 — £190,000 • 1 bed • 1 bath • 483 ft²
1 bedroom flat for sale in Heathfield Road, Croydon, CR0 — £190,000 • 1 bed • 1 bath • 524 ft²
1 bedroom flat for sale in Exo Court, 78 Heathfield Road, South Croydon, Surrey, CR0 1EW, CR0 — £220,000 • 1 bed • 1 bath














































