Modern family living in semi-rural Barton with large rear garden.
10-year NHBC plus 2-year builder’s warranty included
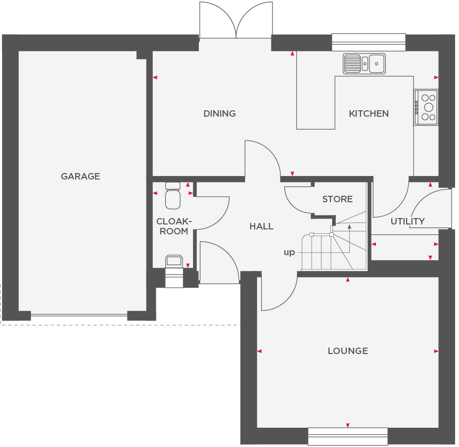
A bright new-build four-bedroom detached home arranged over two floors, The Foxglove suits growing families seeking space and low-maintenance living in semi-rural Barton. The ground floor flows from a comfortable lounge into a large open-plan kitchen/diner with integrated appliances and French doors to a turfed rear garden — ideal for family meals and outdoor play. A separate utility and single integral garage add useful storage and keep living areas clutter-free.
Upstairs provides four good-sized bedrooms, with the master bedroom including fitted wardrobes and a private en suite. Bedrooms 2 and 3 are comfortably proportioned for children or guests; bedroom 4 is narrower and will suit a single child, study or home office. Carpets and Amtico flooring are fitted throughout as standard, and the home is sold freehold with a 10-year NHBC warranty plus a 2-year builder’s warranty, reducing short-term maintenance concerns.
The development sits in a very affluent, semi-rural village location about 5.5 miles from Preston city centre, with strong local schools nearby and bus links. Practical points to note: broadband speeds are average, the fourth bedroom is compact, and marketing imagery may show upgraded finishes not included as standard. Overall this is a roomy, modern family home on a generous plot, ready to move into with new-build protections in place.
4 bedroom detached house for sale in Cardwell Park, Garstang Road, Barton, PR3 — £384,950 • 4 bed • 2 bath • 1353 ft²
4 bedroom detached house for sale in Plot 19, Cardwell Park, Garstang Road, Barton, PR3 — £399,950 • 4 bed • 3 bath • 1446 ft²
4 bedroom detached house for sale in Cardwell Park, Garstang Road, Barton, PR3 — £332,950 • 4 bed • 2 bath • 1114 ft²
4 bedroom detached house for sale in Plot 40, Cardwell Park, Garstang Road, Barton, PR3 — £401,950 • 4 bed • 3 bath • 1446 ft²
4 bedroom detached house for sale in Plot 13 The Foxglove, Whittingham Lane, Broughton, Lancashire, PR3 5DA, PR3 — £366,950 • 4 bed • 2 bath • 868 ft²
5 bedroom detached house for sale in Garstang Road, Barton, Preston, Lancashire, PR3 — £615,000 • 5 bed • 4 bath • 2190 ft²






































