Renovation project in a popular school catchment with generous outdoor space.
- Three bedrooms with two reception rooms for flexible family living
- Spacious driveway parking for two cars side-by-side
- Private rear garden with patio and greenhouse
- Requires full modernisation; dated fixtures and finishes throughout
- Single bathroom only; potential to add or reconfigure facilities
- Freehold tenure, EPC rating currently TBC
- Good schools nearby and strong transport links to Birmingham
- Low crime area, excellent mobile signal and fast broadband
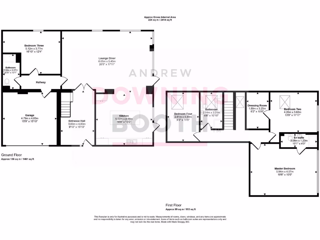
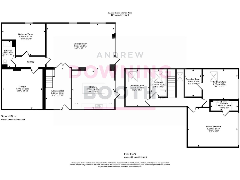
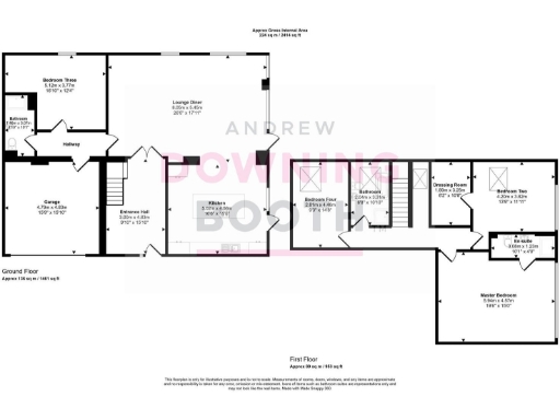
Set on a generous plot in a well-regarded Sutton Coldfield suburb, this three-bedroom semi-detached house offers clear scope to create a comfortable family home. The property benefits from a wide driveway, front lawn and a private rear garden with patio and greenhouse — useful outdoor space for families and gardeners. Internally there are two reception rooms, a separate kitchen and one family bathroom across two floors.
The house requires comprehensive modernisation: fixtures, finishes and floor coverings are dated and the property would benefit from cosmetic and mechanical upgrading. There is good potential to reconfigure or extend (subject to permissions) to increase living space and value, and the sizable plot and loft potential make this an appealing project for buyers seeking uplift.
Location is a key strength — nearby reputable primary and secondary schools, local shops, and efficient links to Sutton Coldfield town centre and Birmingham. Low local crime, excellent mobile signal and fast broadband add practical appeal for modern family life or a rented investment after refurbishment.
Important practical points: the property is sold freehold and shows as needing renovation; the EPC is currently to be confirmed. Early viewing is recommended for buyers seeking a renovation project with strong location fundamentals.
3 bedroom semi-detached house for sale in Blackwood Road, Sutton Coldfield, B74 — £335,000 • 3 bed • 1 bath • 1239 ft²
3 bedroom semi-detached house for sale in Forest Close, Streetly, Sutton Coldfield, B74 — £310,000 • 3 bed • 1 bath
3 bedroom semi-detached house for sale in Frankburn Road, Streetly, Sutton Coldfield, B74 — £375,000 • 3 bed • 1 bath
4 bedroom semi-detached house for sale in Whitehouse Common Road, SUTTON COLDFIELD, B75 — £350,000 • 4 bed • 2 bath • 883 ft²
3 bedroom semi-detached house for sale in Jockey Road, Sutton Coldfield, B73 5DQ, B73 — £360,000 • 3 bed • 1 bath • 1012 ft²
3 bedroom semi-detached house for sale in Bridle Lane, Streetly, Sutton Coldfield, B74 3QT, B74 — £300,000 • 3 bed • 1 bath


















































































