Spacious detached house with annexe and possible building plot (STPP).
Four double bedrooms with en‑suite to principal
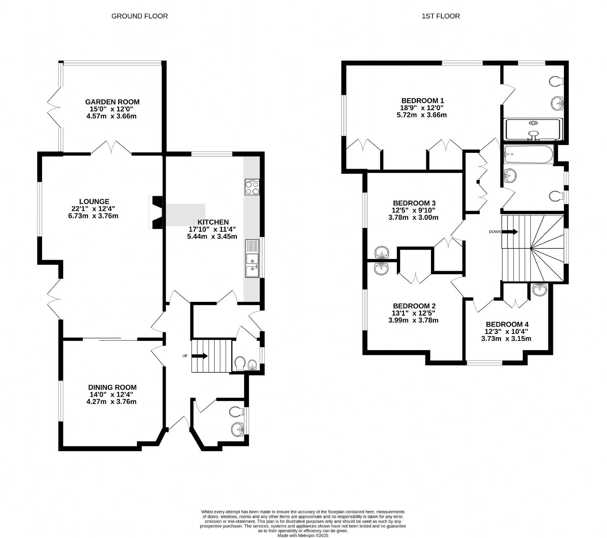
Set on a large double plot in one of Frinton-on-Sea’s most sought-after avenues, this Tudor‑Revival detached house combines period character with practical family living. Four double bedrooms, an en‑suite and generous reception rooms — including a 22ft lounge and 15ft garden room — provide comfortable space for family life and entertaining. The property is chain free and within easy reach of the seafront, Connaught Avenue, the station and local amenities.
A notable value opportunity is the sizable side garden: subject to planning permission, there may be scope for a building plot (STPP). The garage has been extended to form a self-contained bed/sitting annexe, useful for guests, home office or rental income. Practical fixtures include mains gas central heating, double glazing and fast broadband.
The house dates from the late 1960s/early 1970s and retains period features and original fittings. Some areas show dated decor and will benefit from cosmetic updating to meet modern tastes. The EPC is rated D, and prospective buyers should factor in typical mid‑century maintenance and potential improvement costs.
This home will suit families seeking space close to seafront amenities, or buyers wanting a character property with development upside (STPP). It offers immediate liveability with clear scope to add value through renovation or by realising the potential building plot.
4 bedroom detached house for sale in Winchester Road, Frinton-on-Sea, Essex, CO13 — £600,000 • 4 bed • 2 bath • 1454 ft²
5 bedroom detached house for sale in Second Avenue, Frinton-on-Sea, CO13 — £1,500,000 • 5 bed • 3 bath • 5590 ft²
3 bedroom detached house for sale in Oxford Road, Frinton on Sea, CO13 — £600,000 • 3 bed • 1 bath • 1190 ft²
6 bedroom detached house for sale in Raglan Road, Frinton-On-Sea, CO13 — £895,000 • 6 bed • 4 bath • 3848 ft²
4 bedroom detached house for sale in Aldrich Close, Kirby Cross, CO13 — £475,000 • 4 bed • 2 bath • 1352 ft²
4 bedroom detached house for sale in Baynards Crescent, Kirby Cross, Frinton-On-Sea, CO13 — £435,000 • 4 bed • 2 bath • 1629 ft²






























































