Three bedrooms, versatile study/second reception room
Bright conservatory opening to low-maintenance garden and decking
Tandem driveway for two cars; off-street parking included
Single bathroom only; may limit larger family routines
EPC D — potential for energy-efficiency upgrades
Small rear plot; limited garden space for expansion
FTTC broadband available; strong mobile signal (owner reports EE)
Freehold; mains gas central heating and all services connected
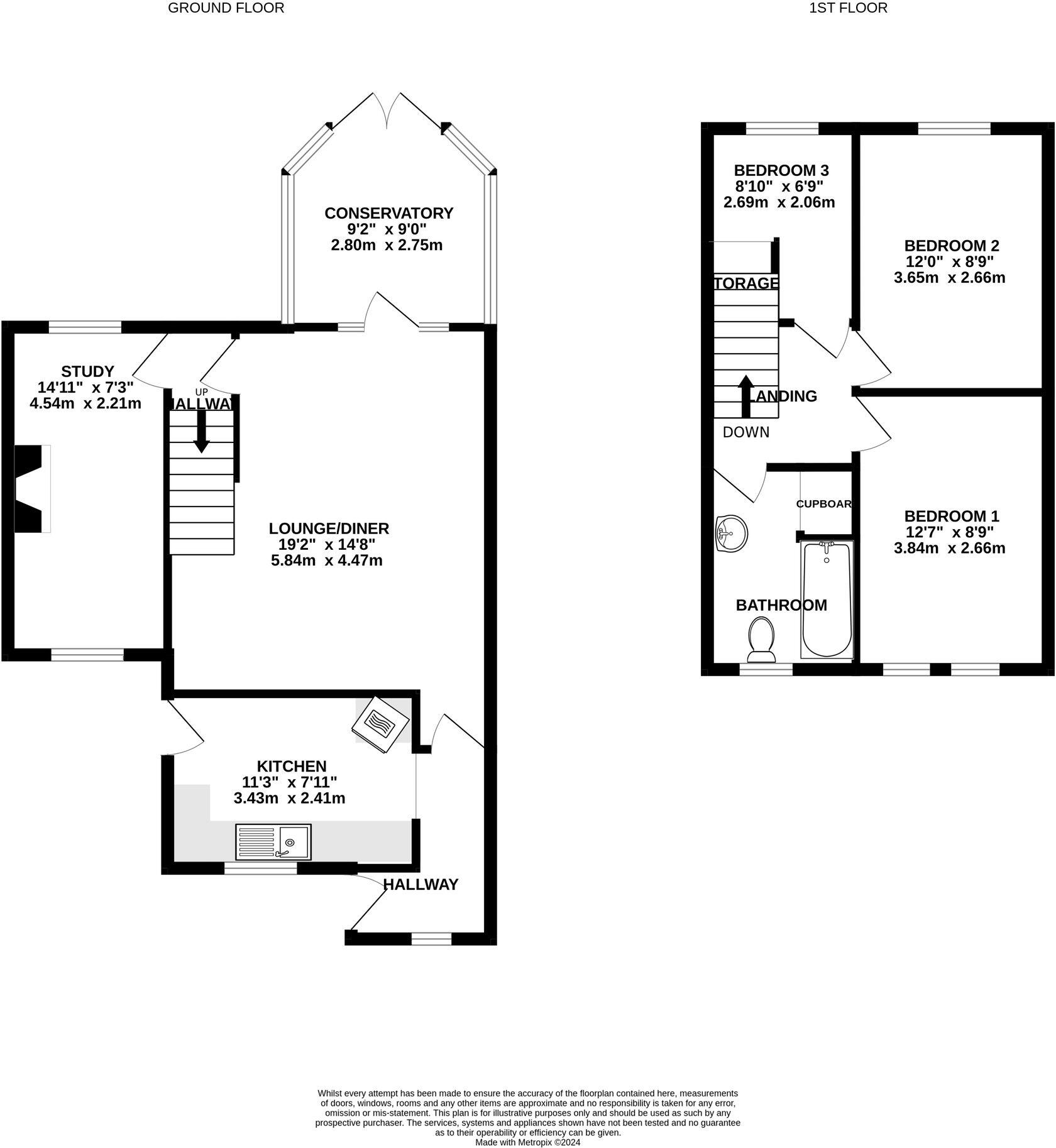
This three-bedroom end-of-terrace in Pennyroyal Close offers practical family living between Cardiff and Newport. The ground floor has a front kitchen, generous lounge/diner and a bright conservatory that opens onto a low-maintenance garden with raised decking and artificial lawn — good for easy outdoor entertaining.
A versatile additional reception room off the staircase currently used as a study gives flexible space for a home office or playroom. Upstairs are two double bedrooms, a single bedroom and a single bathroom with bath and overhead shower. The property is freehold, connected to mains gas and water, and has a tandem driveway providing off-street parking for two cars.
Useful modern comforts include double glazing, mains gas central heating via a boiler and radiators, FTTC broadband availability and strong mobile signal. Practical details: total size about 861 sq ft, EPC rating D, built c.1983–1990, Council Tax Band C.
Be clear on trade-offs: the rear plot is small and intentionally low-maintenance rather than spacious; there is only one bathroom; the EPC is D which may need improvement over time; the wider local area scores as very deprived despite being in an achieving neighbourhood profile. These factors are important for buyers planning renovation, investment, or growing-family needs.







































































































