Bright, practical two-bedroom close to Central Line transport and local amenities.
Two double bedrooms throughout (good room sizes)
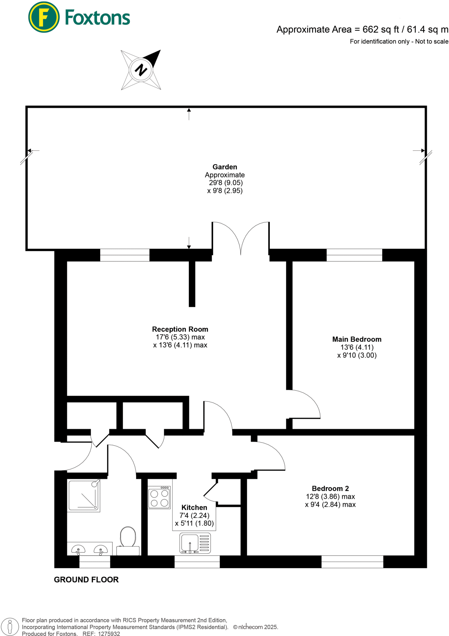
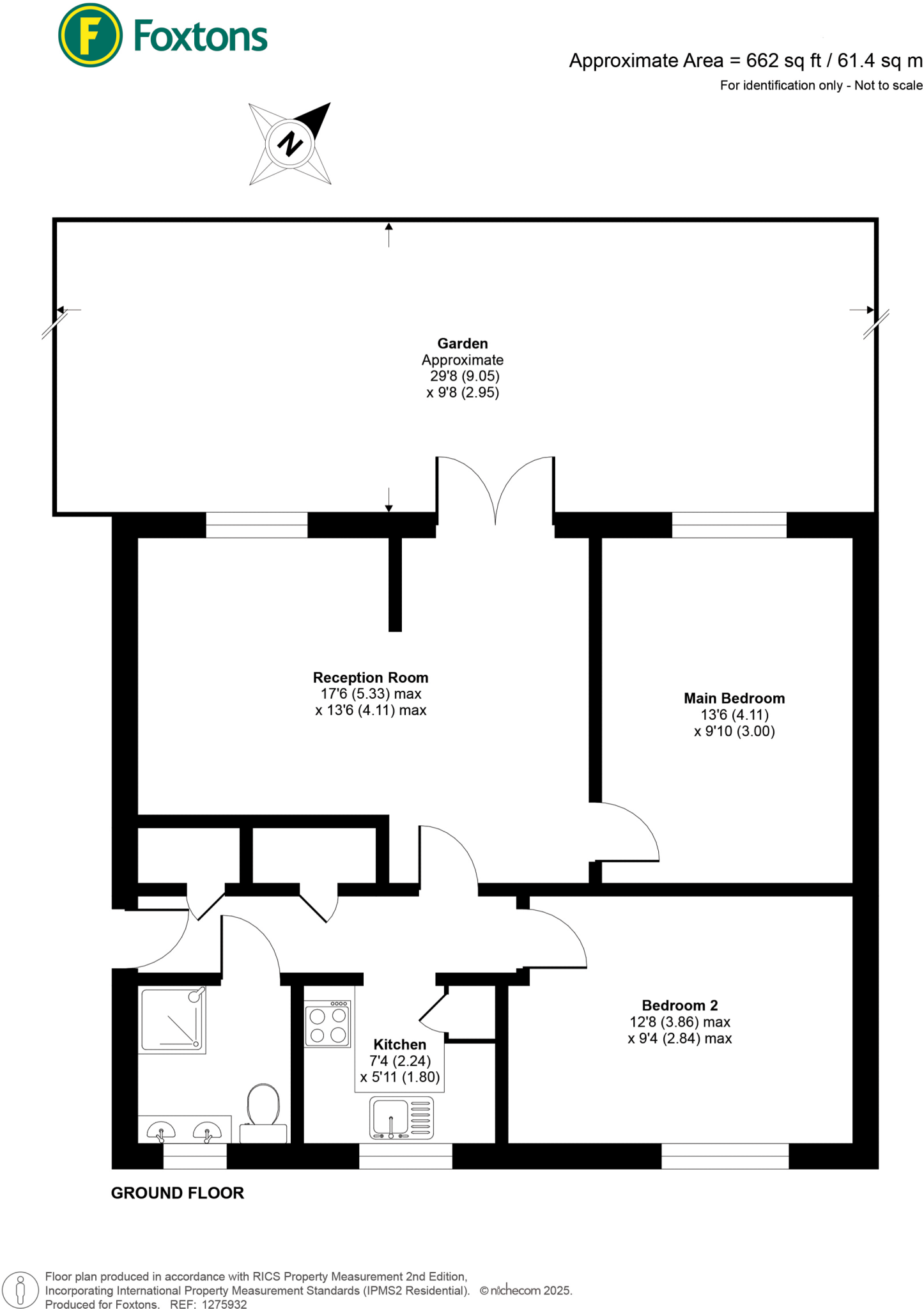
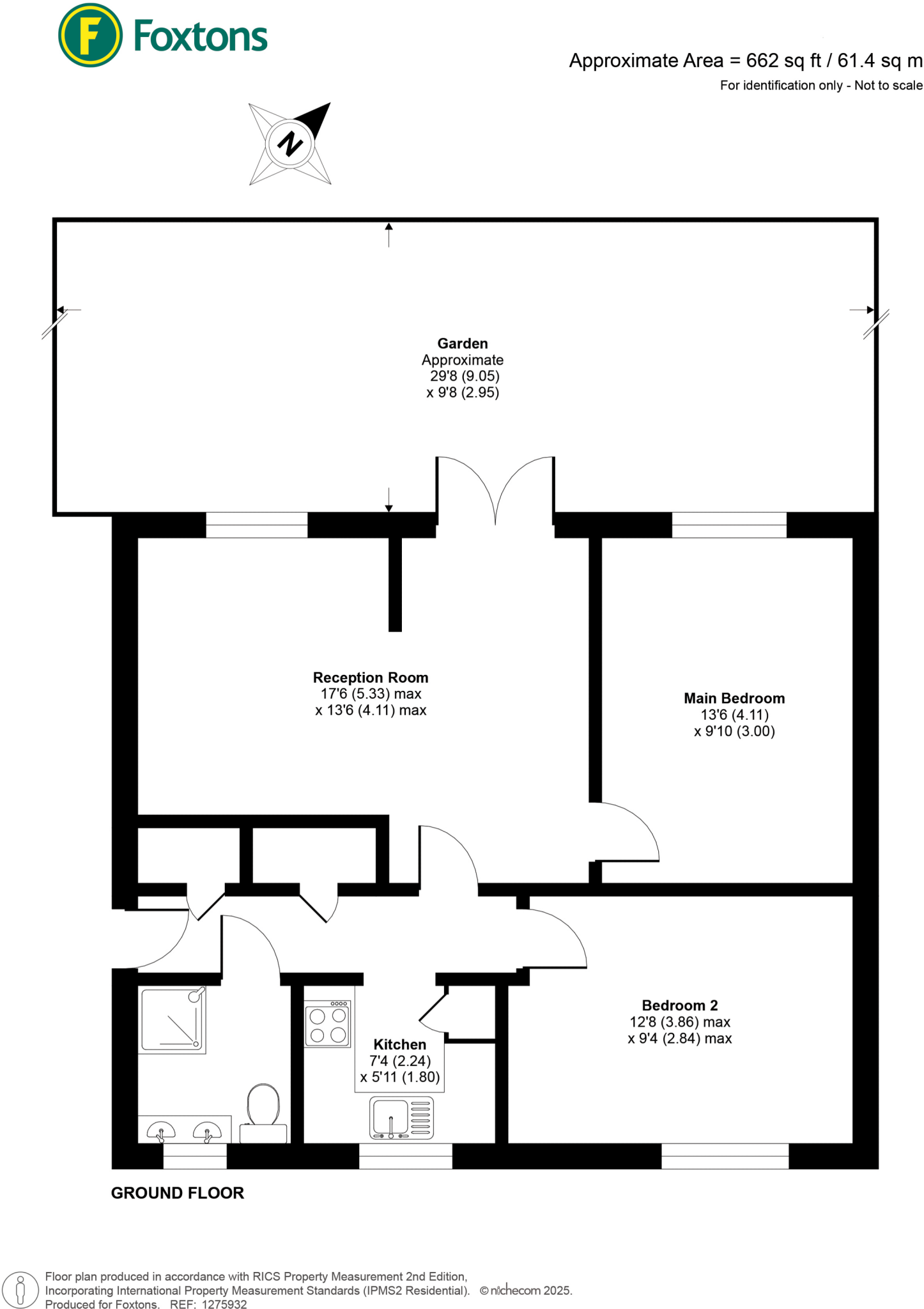
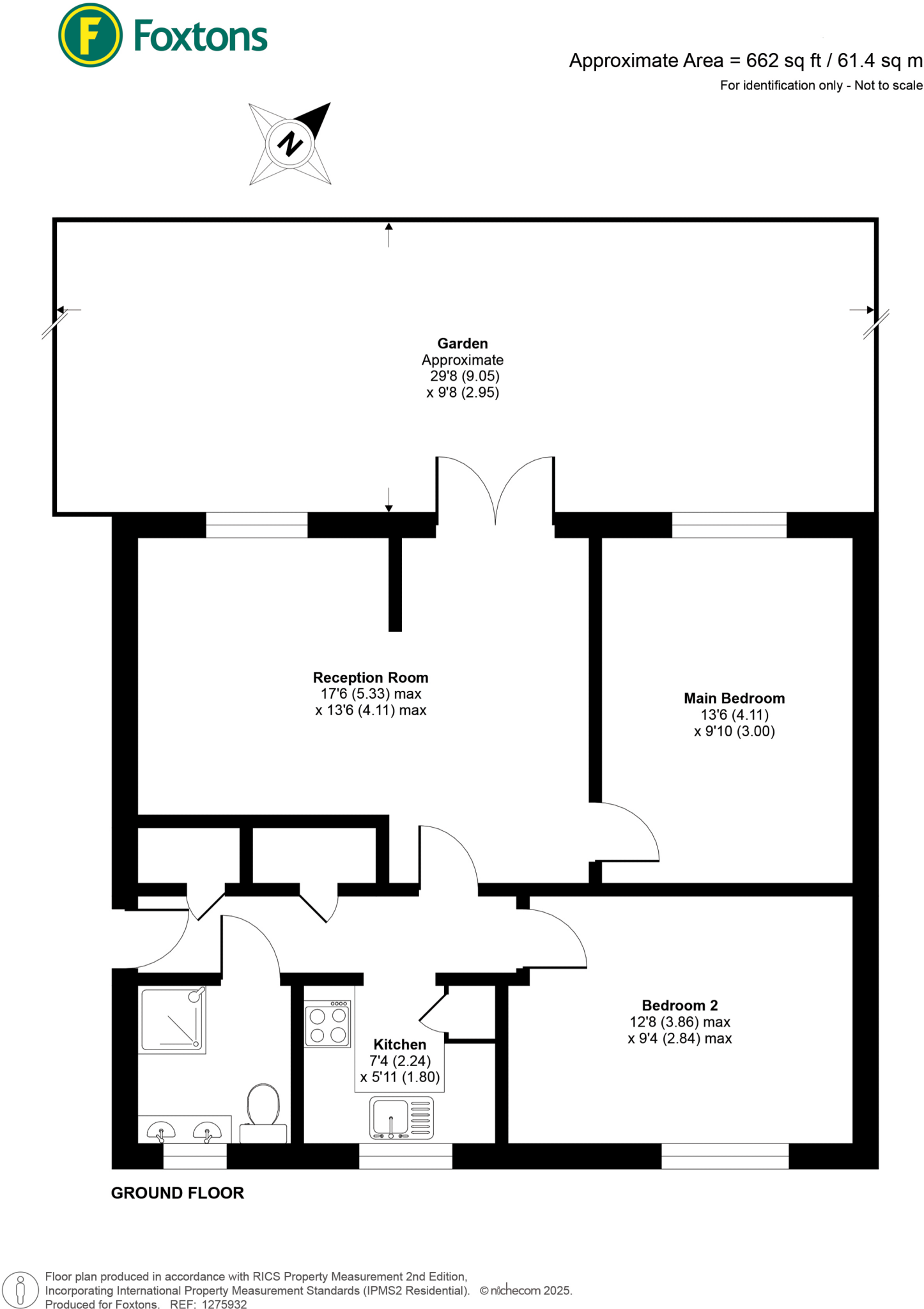
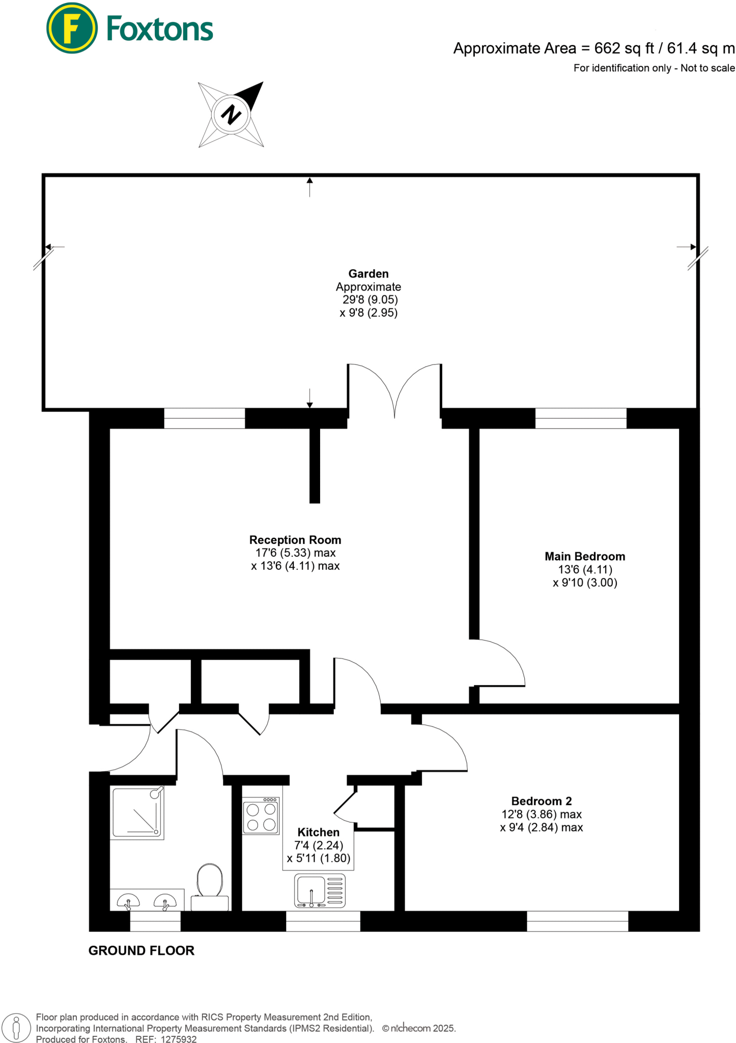
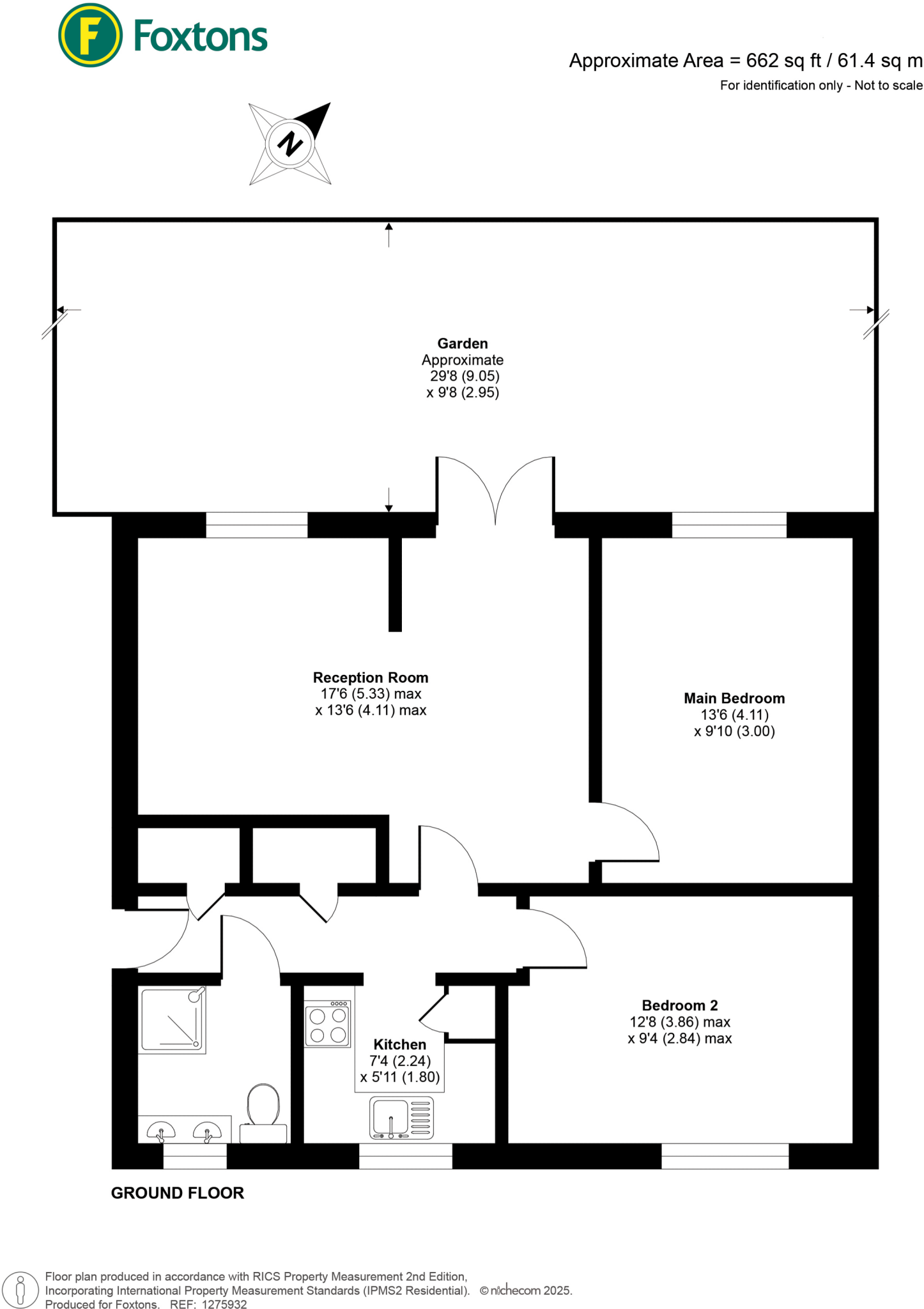
A bright, well-presented ground-floor flat offering practical living for a first-time buyer or investor. The accommodation includes two double bedrooms, a sizeable dine-in reception and direct access to a private sunny garden — useful extra outside space rarely found at this price. The living room’s large windows and sliding doors bring good natural light and a modern feel throughout.
At about 662 sq ft, the layout is traditional and straightforward, with good room proportions and a polished floor in the living area. The building is a mid-20th-century, two-storey block with a shared entrance; the flat sits within easy walking distance of Northolt station (Central Line) and local amenities, and Harrow town centre is also within reach for wider shopping and leisure options.
Important practical points: the property is leasehold, with an annual service charge of approximately £2,340 and a small ground rent of £10. Local area indicators show above-average crime and higher deprivation levels compared with borough averages — worth considering for buyers prioritising local environment and resale prospects. Broadband speeds are fast and mobile signal is excellent.
Overall this is a sensible, move-in-ready option for someone seeking a low-maintenance first home or a buy-to-let purchase close to Central Line transport. The private garden and generous double rooms are strong positives; factor in the leasehold costs and local area profile when deciding if this matches your priorities.
2 bedroom ground floor flat for sale in Islip Manor Road, Northolt, Middlesex, UB5 5EA, UB5 — £335,000 • 2 bed • 1 bath • 657 ft²
1 bedroom flat for sale in Whitton Avenue West, Northolt, UB5 — £275,000 • 1 bed • 1 bath • 457 ft²
2 bedroom flat for sale in Nicola Close, Harrow, HA3 — £475,000 • 2 bed • 2 bath • 902 ft²
1 bedroom flat for sale in Carr Road, Northolt, UB5 — £265,000 • 1 bed • 1 bath • 423 ft²
2 bedroom flat for sale in Makepeace Road, Northolt, UB5 — £260,000 • 2 bed • 1 bath • 518 ft²
2 bedroom apartment for sale in Byron Way, Northolt, UB5 — £290,000 • 2 bed • 1 bath • 675 ft²


































































































































































































































































