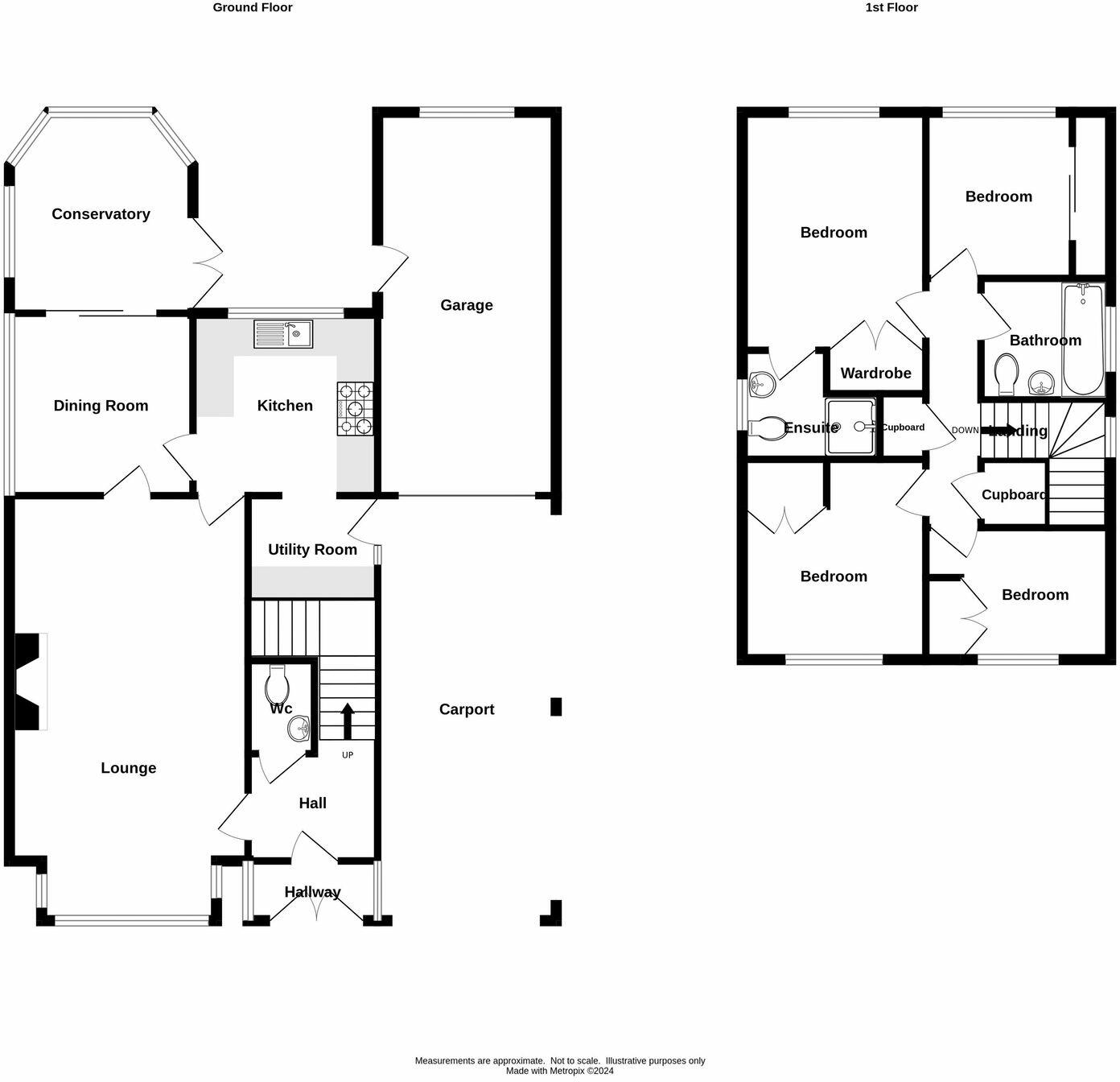
Spacious family layout with driveway, garage and private landscaped garden.
Four bedrooms with principal ensuite and built-in wardrobes
A well-presented four-bedroom detached home set in sought-after Milking Bank, within easy reach of popular schools, shops and local amenities. The property benefits from gas central heating, UPVC double glazing and an EPC rating B, keeping running costs reasonable for its council tax band E.
Accommodation is arranged over two floors and includes a 22ft lounge, separate dining room, fitted kitchen with utility, principal bedroom with ensuite and built-in storage, plus three further bedrooms. A conservatory leads to a landscaped, enclosed rear garden while a carport, garage and a generous driveway provide substantial off-street parking.
This home will suit families seeking convenience, good broadband and low-crime surroundings in a comfortable suburb. Note the overall footprint is modest for a four-bedroom house and the conservatory is very narrow; the garage is compact. These aspects offer simple improvement or adaptation potential for buyers wanting to reconfigure or modernise.
4 bedroom detached house for sale in Shipton Close, Milking Bank, Dudley, DY1 — £399,950 • 4 bed • 2 bath • 945 ft²
4 bedroom detached house for sale in Stokesay Rise, Milking Bank, DY1 — £425,000 • 4 bed • 2 bath • 1264 ft²
4 bedroom detached house for sale in Chillington Drive, Milking Bank, Dudley, DY1 — £359,950 • 4 bed • 2 bath • 1172 ft²
4 bedroom detached house for sale in Dinham Gardens, Milking Bank, Dudley, DY1 — £450,000 • 4 bed • 3 bath • 1424 ft²
3 bedroom detached house for sale in Greyfriars Close, Milking Bank, DY1 — £340,000 • 3 bed • 2 bath
4 bedroom detached house for sale in Yarner Close, Dudley, DY1 — £375,000 • 4 bed • 2 bath • 847 ft²














































































