ME10 1DA - 3 bed spacious period semi in Borden Lane, ME10 1DA

View on Property Piper

3 bedroom semi-detached house for sale in Borden Lane, Sittingbourne, Kent, ME10

Summary - 175 BORDEN LANE SITTINGBOURNE ME10 1DA

3 bed 2 bath Semi-Detached

Three-bed period semi with garden and driveway — Lifetime Lease price option for over‑60s.
Three-bedroom semi-detached house with private rear garden and driveway for multiple cars|Freehold tenure; approximately 883 sq ft of living space|Home for Life Lifetime Lease example: guide price £254,500 (over-60s)|Full market value £385,000; Lifetime price varies by age and share|Built 1930–1949; solid brick walls assumed uninsulated (energy upgrade needed)|Kitchen/breakfast room modern with bi-fold doors to garden|Requires general modernisation throughout; opportunity to improve efficiency|No flood risk; very low local crime; fast broadband
This roomy three-bedroom semi-detached house on Borden Lane offers a comfortable, traditional layout and a private rear garden. Set back from the road with a wide driveway for multiple cars, the property suits buyers seeking space, parking and a quiet south-side Sittingbourne address. The kitchen/breakfast room benefits from modern fittings and bi-fold doors to the garden, giving a bright family hub.

The house dates from the 1930s–1940s and retains period features such as a bay window and pebble dash exterior. The property is freehold and around 883 sq ft internally, with two bathrooms and five main rooms that provide flexible living. There is no recorded flood risk, crime is very low locally, and broadband speeds are fast.

Important practical points: the walls are original solid brick (assumed uninsulated) and the house will benefit from general modernisation and energy-efficiency improvements. The property is being offered with a Homewise Home for Life Lifetime Lease example price for over-60s: a guide price of £254,500 (based on an illustrative 33% saving) against the full market value of £385,000. Actual Lifetime Lease price depends on age, circumstances and chosen share (up to 50%).

This will particularly suit older buyers looking to reduce upfront cost while retaining long-term security, or anyone prepared to invest in insulation and updating for better comfort and lower bills. Verify all details and seek personalised Lifetime Lease quotes before committing.

Property Details

Image Descriptions

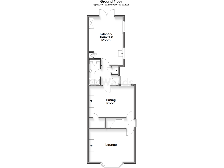
Floorplan Description

Rooms

Textual Property Features

Target Audience

AI Tags

Detected Visual Features

EPC Details

Nearby Schools

Nearest Bars And Restaurants

,,,,}

Nearest General Shops

,,}

Nearest Grocery shops

,,}

Nearest Supermarkets

,,}

Nearest Religious buildings

,,}

Nearest Medical buildings

,,,}

Nearest Airports

}

Nearest Leisure Facilities

,,,,}

Nearest Tourist attractions

,,}

Nearest Train stations

,,,,}

Nearest Bus stations and stops

,,,,}

Nearest Hotels

,,}

Tags

Local Market Stats

Similar Properties

Meta

High Res Images

Compatible Images

Low res Images

Thumbnails

Raw Images

High Res Floorplan Images

Compatible Floorplan Images

Low res Floorplan Images

FloorplanImages Thumbnail

Raw Floorplan Images