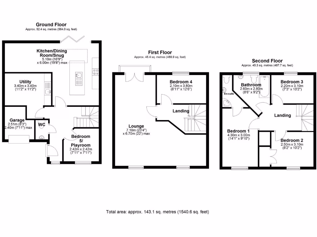
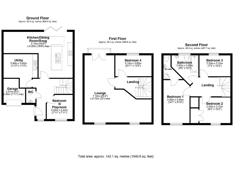
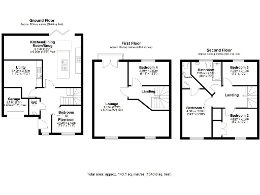
**Standout Features:**
- **Spacious 5-Bedroom Townhouse:** Ideal for families.
- **Extended Kitchen/Family Room:** Modern, with high-end NEFF appliances and bi-fold doors to the garden.
- **Convenient Location:** Close to Greenfield Train Station, primary schools, and local amenities.
- **Outdoor Space:** Landscaped garden with Indian stone patio, perfect for entertaining.
- **Energy Efficient:** Energy Rating - C.
- **Low Crime Rate:** Family-friendly and safe neighborhood.
- **Potential Downsides:** Leasehold tenure, with ground rent and service charges.
Discover this beautiful five-bedroom townhouse in the heart of Greenfield, perfect for families seeking modern comfort and convenience. Featuring a stunning extended kitchen that opens onto a landscaped garden, this home is designed for both relaxation and entertaining. The high-end NEFF kitchen appliances and elegant living spaces, including a versatile office/guest bedroom, provide a perfect balance of function and style.
Convenience is enhanced by its proximity to highly-rated primary schools and easy access to local amenities and countryside walkways. A garage adds practicality, while the low crime rate and affluent surroundings offer security and peace of mind. With average square footage of 1540 sq ft and modern double glazing, this property is energy efficient, although the leasehold status and associated costs should be noted. This is an exceptional opportunity to secure a desirable family home—act fast, as properties like this don’t last long in this charming suburb!
2 bedroom town house for sale in 9 Bowler Way Greenfield OL3 7FQ, OL3 — £260,000 • 2 bed • 1 bath • 615 ft²
5 bedroom detached house for sale in 14 Dacres Drive, Greenfield OL3 7HP, OL3 — £600,000 • 5 bed • 2 bath • 1729 ft²
4 bedroom detached house for sale in Oldham Road, Lydgate, Saddleworth, OL4 — £600,000 • 4 bed • 2 bath • 2174 ft²
5 bedroom detached house for sale in Park Lane, Greenfield, Saddleworth, OL3 — £2,200,000 • 5 bed • 5 bath • 5800 ft²
5 bedroom detached house for sale in Bowler Way, Greenfield, Saddleworth, OL3 — £612,499 • 5 bed • 4 bath • 2175 ft²
4 bedroom town house for sale in Rimmon Close, Greenfield, OL3 — £585,000 • 4 bed • 4 bath • 1756 ft²


































































































































