Spacious six-bedroom new build on over two acres with rural views and modern finishes.
Chain-free newly built in 2024
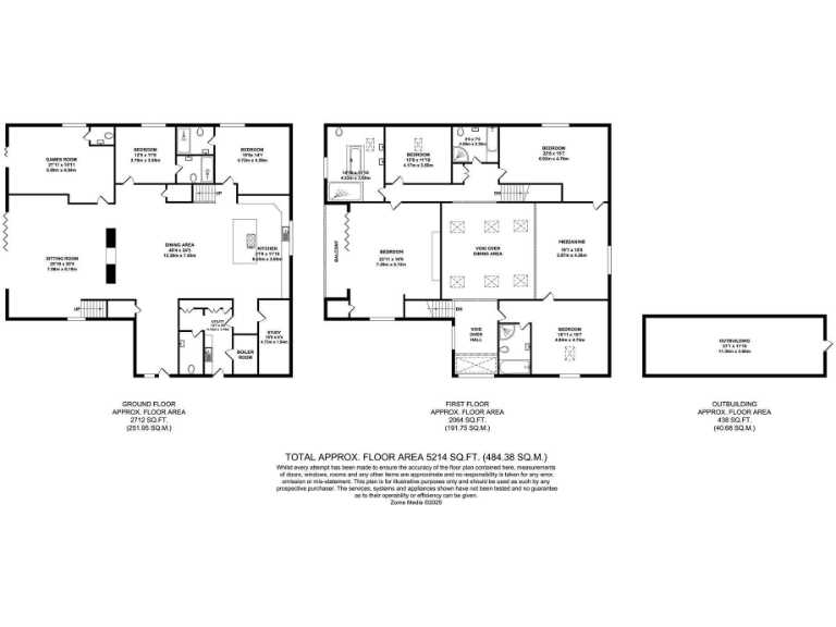
Set back on a substantial plot in Stansted, this newly built (2024) detached house combines contemporary design with generous living space. At about 5,426 sq ft the property offers six double bedrooms, three reception rooms and five bathrooms — room sizes and high ceilings suit family living and flexible home working.
The house is finished to a modern specification with underfloor heating across the ground and first floors, large windows that capture rural views, a gated driveway and detached garage. The site extends to over two acres of landscaped grounds, providing privacy and broad countryside outlooks from several rooms and a balcony.
Practical strengths include freehold tenure, chain-free sale and modern services provision; full-fibre broadband is listed as available. Local amenities, good primary and secondary schools nearby and easy road links to the M20/Bluewater add to everyday convenience.
Notable considerations: council tax is described as quite expensive and the wider area records average crime levels. While full-fibre is provided, some local data show very slow domestic broadband performance — buyers should verify speeds on site. The rural setting demands ongoing garden and grounds maintenance due to the large plot.
3 bedroom detached house for sale in NO FORWARD CHAIN - Plaxdale Green Road, Stansted, TN15 7PB, TN15 — £575,000 • 3 bed • 2 bath • 1394 ft²
6 bedroom detached house for sale in Ash Lane, Stansted, Sevenoaks, Kent, TN15 — £2,000,000 • 6 bed • 5 bath • 5500 ft²
6 bedroom detached house for sale in Well Road, Otford, Kent, TN14 — £1,300,000 • 6 bed • 3 bath • 3462 ft²
2 bedroom end of terrace house for sale in Hatham Green Lane, Stansted, Sevenoaks, TN15 — £380,000 • 2 bed • 2 bath • 809 ft²
2 bedroom terraced house for sale in Hatham Green Lane, Stansted, Sevenoaks, Kent, TN15 — £365,000 • 2 bed • 2 bath • 811 ft²
4 bedroom detached house for sale in Broadwater Road, West Malling, ME19 — £1,300,000 • 4 bed • 2 bath • 2155 ft²






















































































































































































