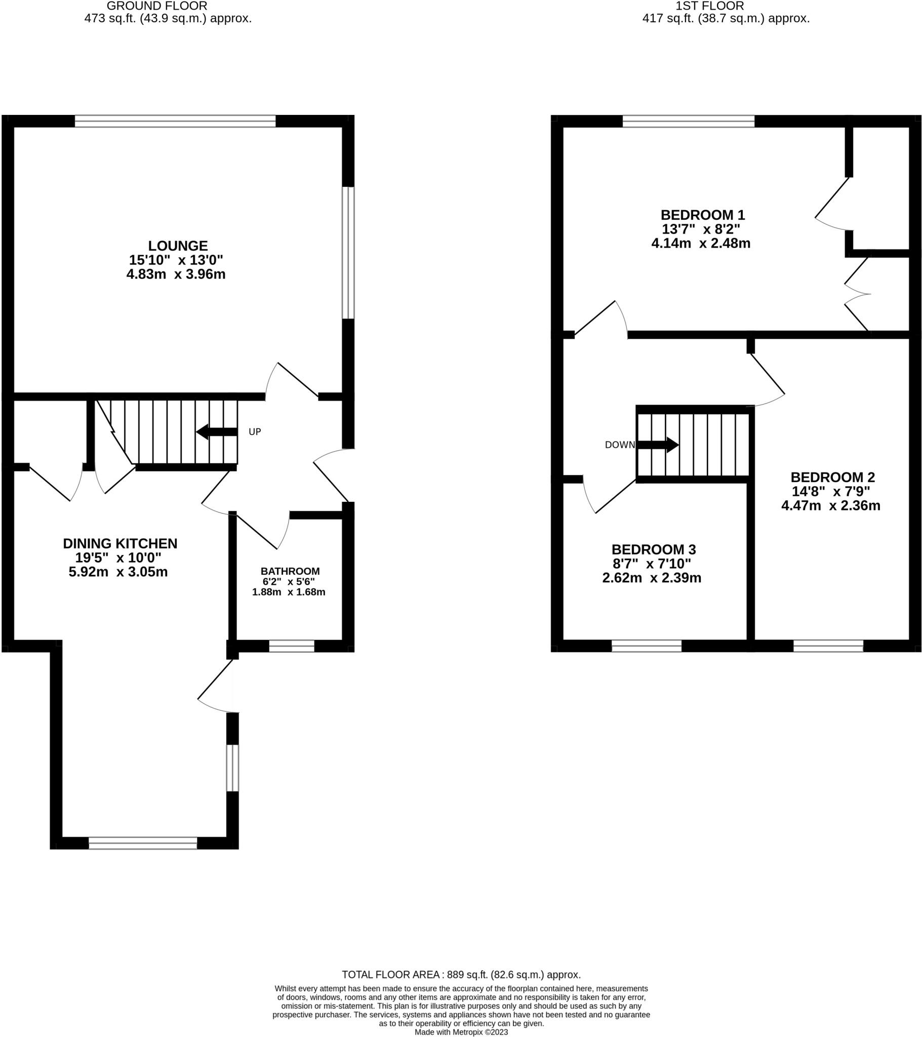
**Standout Features:**
- 3 double bedrooms, perfect for families or guests
- Spacious open-plan dining kitchen with modern appliances
- Generous lounge with a feature brick fireplace
- Well-maintained garden with a gazebo and water feature
- Detached garage and attractive resin bonded driveway
- Sought-after location near amenities and schools
- No forward chain for a quick sale
Nestled in a desirable area of Cleethorpes, this charming semi-detached bungalow offers ample space for family living. The well-presented home features a modernized open-plan dining kitchen with cream shaker-style units, ideal for family meals and entertaining. The generous lounge, adorned with a feature brick fireplace, provides a cozy spot to relax. With three spacious double bedrooms and a well-equipped ground floor bathroom, this bungalow is perfect for accommodating a growing family. Outside, enjoy leisurely summer afternoons in the pleasant rear garden that boasts a gazebo and water feature, all bathed in afternoon sunlight thanks to the westerly aspect.
While the property is move-in ready, prospective buyers might envision personal upgrades or renovations over time, adding their unique touch to this solid, well-loved family home. With no forward chain, this is a fantastic opportunity to secure your slice of Cleethorpes living quickly! Enjoy the peace of mind offered by a very low local crime rate and the comfort of proximity to reputable schools and local amenities. Don't miss out on this appealing chance—schedule a viewing today and start envisioning your future here!
 2 bedroom semi-detached bungalow for sale in Dudley Place, Cleethorpes, DN35 — £184,950 • 2 bed • 1 bath • 619 ft²
 2 bedroom semi-detached bungalow for sale in Dudley Place, Cleethorpes, DN35 — £184,950 • 2 bed • 1 bath • 619 ft² 3 bedroom detached bungalow for sale in Westbury Road, Cleethorpes, N.E. Lincs, DN35 0QL, DN35 — £244,500 • 3 bed • 1 bath • 705 ft²
 3 bedroom detached bungalow for sale in Westbury Road, Cleethorpes, N.E. Lincs, DN35 0QL, DN35 — £244,500 • 3 bed • 1 bath • 705 ft² 3 bedroom semi-detached bungalow for sale in Coniston Avenue, Grimsby, DN33 — £157,000 • 3 bed • 1 bath
 3 bedroom semi-detached bungalow for sale in Coniston Avenue, Grimsby, DN33 — £157,000 • 3 bed • 1 bath 3 bedroom semi-detached bungalow for sale in Lindum Road, Cleethorpes, DN35 — £370,000 • 3 bed • 1 bath • 1263 ft²
 3 bedroom semi-detached bungalow for sale in Lindum Road, Cleethorpes, DN35 — £370,000 • 3 bed • 1 bath • 1263 ft² 3 bedroom semi-detached bungalow for sale in Bishopthorpe Road, Cleethorpes, DN35 — £209,950 • 3 bed • 2 bath • 823 ft²
 3 bedroom semi-detached bungalow for sale in Bishopthorpe Road, Cleethorpes, DN35 — £209,950 • 3 bed • 2 bath • 823 ft² 3 bedroom semi-detached bungalow for sale in Beatty Avenue, Scartho, Grimsby, DN33 — £194,950 • 3 bed • 1 bath • 818 ft²
 3 bedroom semi-detached bungalow for sale in Beatty Avenue, Scartho, Grimsby, DN33 — £194,950 • 3 bed • 1 bath • 818 ft²


































































