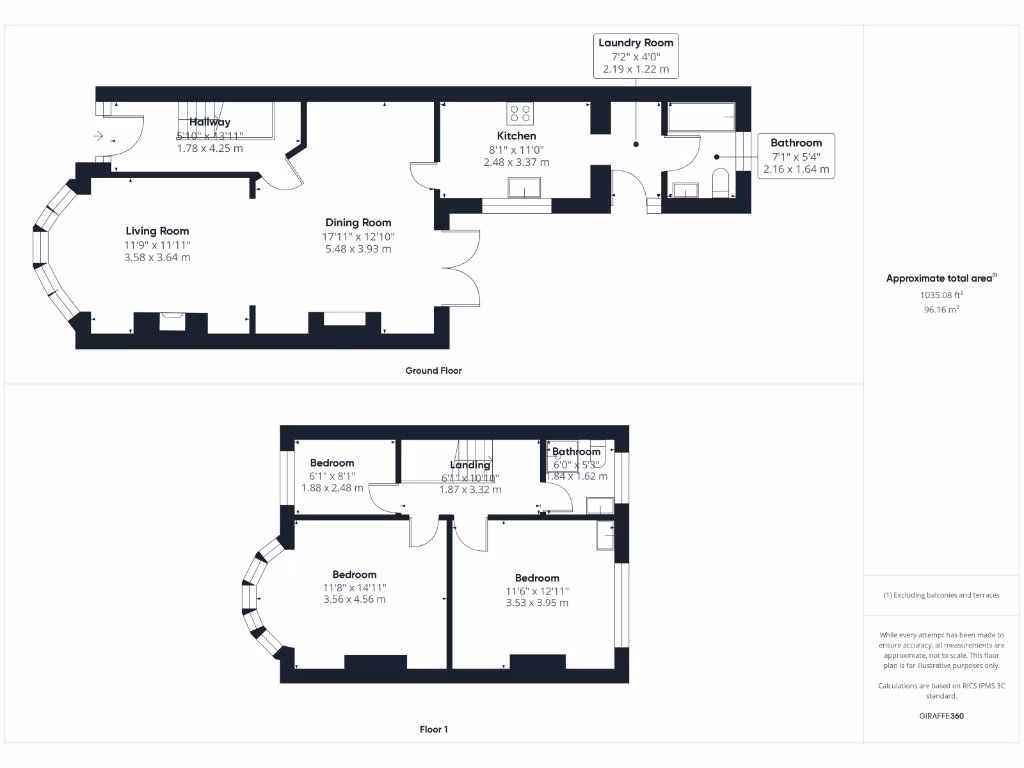
**Standout Features:**
- Traditional three-bedroom mid-townhouse
- Desirable cul-de-sac location near Beverley town center
- Modern kitchen with integrated appliances
- Spacious living room with bay window
- Potential for off-street parking (subject to permissions)
- Generous rear garden with paved patio area
- Gas central heating; extensive double glazing
**Concerns:**
- Small plot size
- No insulation (assumed) in solid brick walls
- The property may require reconfiguration or minor renovations
Nestled in a tranquil cul-de-sac, this traditional three-bedroom mid-townhouse offers a perfect blend of convenience and charm, ideal for families or first-time buyers. With a modernized kitchen and spacious living room featuring a lovely bay window, you’ll enjoy bright, airy living spaces. The dining area opens up to a private rear garden, perfect for relaxation or family gatherings. The upper floor features two well-lit double bedrooms with built-in wardrobes, complemented by a single bedroom and two bathrooms, catering to all your household needs.
Explore the possibility of off-street parking, as many similar properties have taken advantage of this setup. While the home's solid brick walls don't currently have insulation, the property is in good condition and presents an opportunity for customization and potential renovations to meet your style. Located just a short stroll from the amenities of Beverley town center and highly regarded local schools, this lovely home is not just a place to live—it's a chance to create lasting memories. Act quickly, as properties like this are in high demand!
3 bedroom house for sale in Grovehill Road, Beverley, HU17 — £250,000 • 3 bed • 1 bath • 1228 ft²
3 bedroom town house for sale in Blucher Lane, Beverley, HU17 — £250,000 • 3 bed • 2 bath • 722 ft²
3 bedroom end of terrace house for sale in Grove Park, Beverley, HU17 — £179,950 • 3 bed • 1 bath • 762 ft²
3 bedroom town house for sale in Landress Lane, Beverley, HU17 — £324,950 • 3 bed • 1 bath • 1065 ft²
3 bedroom terraced house for sale in 7 Flynn Mews, Beverley, HU17 — £240,000 • 3 bed • 1 bath • 845 ft²
3 bedroom semi-detached house for sale in Wylies Road, BEVERLEY, HU17 — £249,950 • 3 bed • 1 bath • 1550 ft²






















































